MENU
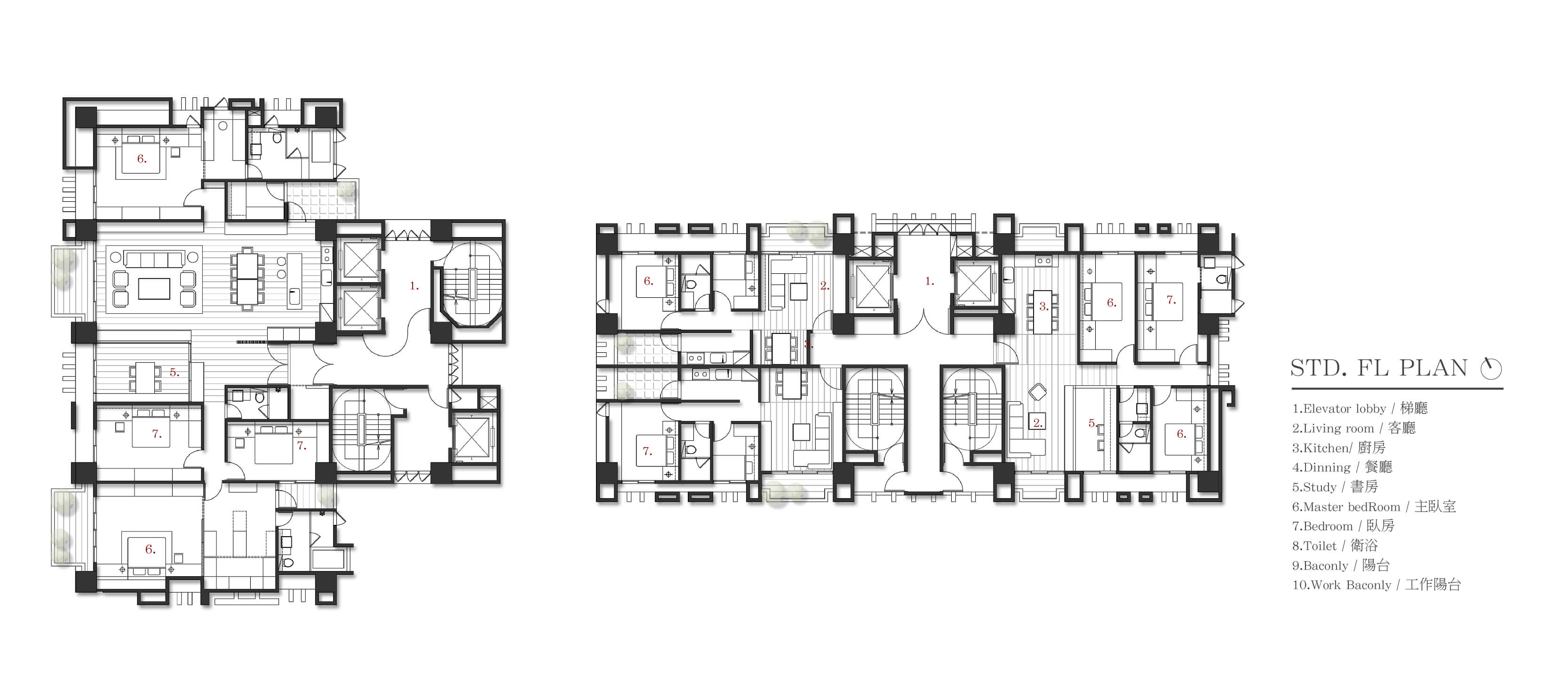
基地座落:
台灣 / 台北市 / 中正區 / 金山南路
設計時間:
2012 / 09
基地面積:
2,574m² (778.6坪)
總樓地板:
20,555m² (6217.90坪)
建築規模:
地上20層 / 地下4層 / 共80戶 / 50-100坪
建築構造 : RC(Reinforced Concerte)鋼筋混凝土構造
+
+
+
+
+
關於明森建築
事務所簡介
團隊成員
工作環境
建築思維
明森「建築風格」
以「道藝術技」論建築
城市、建築與人
住宅建築理念
豪宅與好宅
建築本質是空間
「家」-觸動人心的終極建築
解決台灣都市士地的問題
綠建築與健康建築
歷年作品
媒體報導
2025鋼構發展最新資訊
「明森建築 與台灣光罩 劃時代的合作」
明森鋼構住宅/世界級專利工法
● 明森論建築 (鋼構住宅)
● 鋼構外殼發明專利書(中/英)
明森建築推案
● 2023 明森丰川-高雄(興建+熱銷中)
● 2023 文知丘-高雄(興建+熱銷中)
● 2023 沐河-高雄(興建中)
● 2023 沐光-高雄(興建中)
● 2023 沐海-高雄(興建中)
● 2021 明森巷-台北(興建中)
2022 明森/MSA/總部大樓-高雄(已完工)
2021 青耘-高雄(已完工)
2018 明森樹-高雄(已完工)
綜合分類/
都市更新
都會大樓
社區別墅
室內設計
其它類型
CONTACT 應徵/人才&土地
中文
/
English