博觀
文化中心/sky villa/
基地方位: 東-高雄文化中心,西南-民權、青年綠園道 、當代摩登大樓
如詩的空間與人生的面貌 Poetic Space and the Different Aspects of Life
文/楊豐溢
最頂級的生活品味,趨近於自然!
哲人禪居
晨曦- 東邊的光線灑在青翠的文化中心公園,就讓陽光和風進入屋內;景觀陽台是自家庭園的天然造景,內外交融,虛實相生。繁華的道路,卻有著寧靜悠閒的空間;忙碌的都會,也能怡然而漫步……
海明威並不相鄰,我卻可以像哲學家一般沈思!
領袖行館
卓然頂天立地,宇宙星辰盡在指顧;悠遊綠水青山,眺望無垠星空。在這端望那端,八荒六合聚散等閒,楚河漢界縱橫,只是英雄疆場;四壁書房,直觀須彌,正是千里決勝帷幄!
書香別院
在陽台喝著藍山 Coffee,空氣中德布西正舉行〈月光〉Party。書房悠然抬眼,陽光點點、林蔭穿梭;浴室水盤艷紅花瓣,帶著布拉格風味的精油氣息,如光的潔白,與如希臘晴天的藍,詠唱著地中海的詩句……
我們堅信,居住建築應該揉合優美而豐富的人生情調,因為:建築可以讓人傾訴心情,頓悟當下;建築應該使人安身立命,縱橫事業,因此才能賦予它本身的存在意義。在我們每天的生活中,潤人心魄,動靜皆樂……
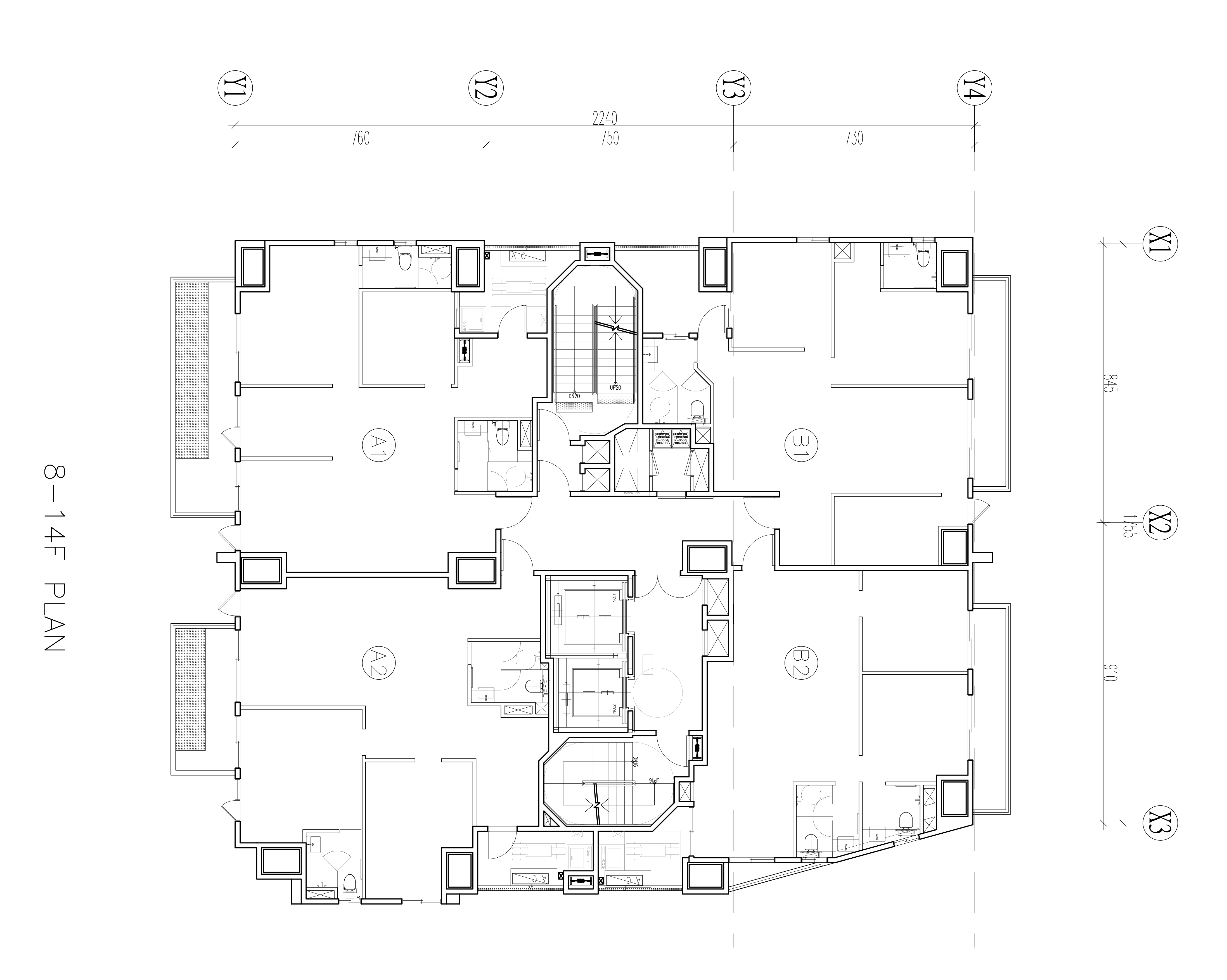
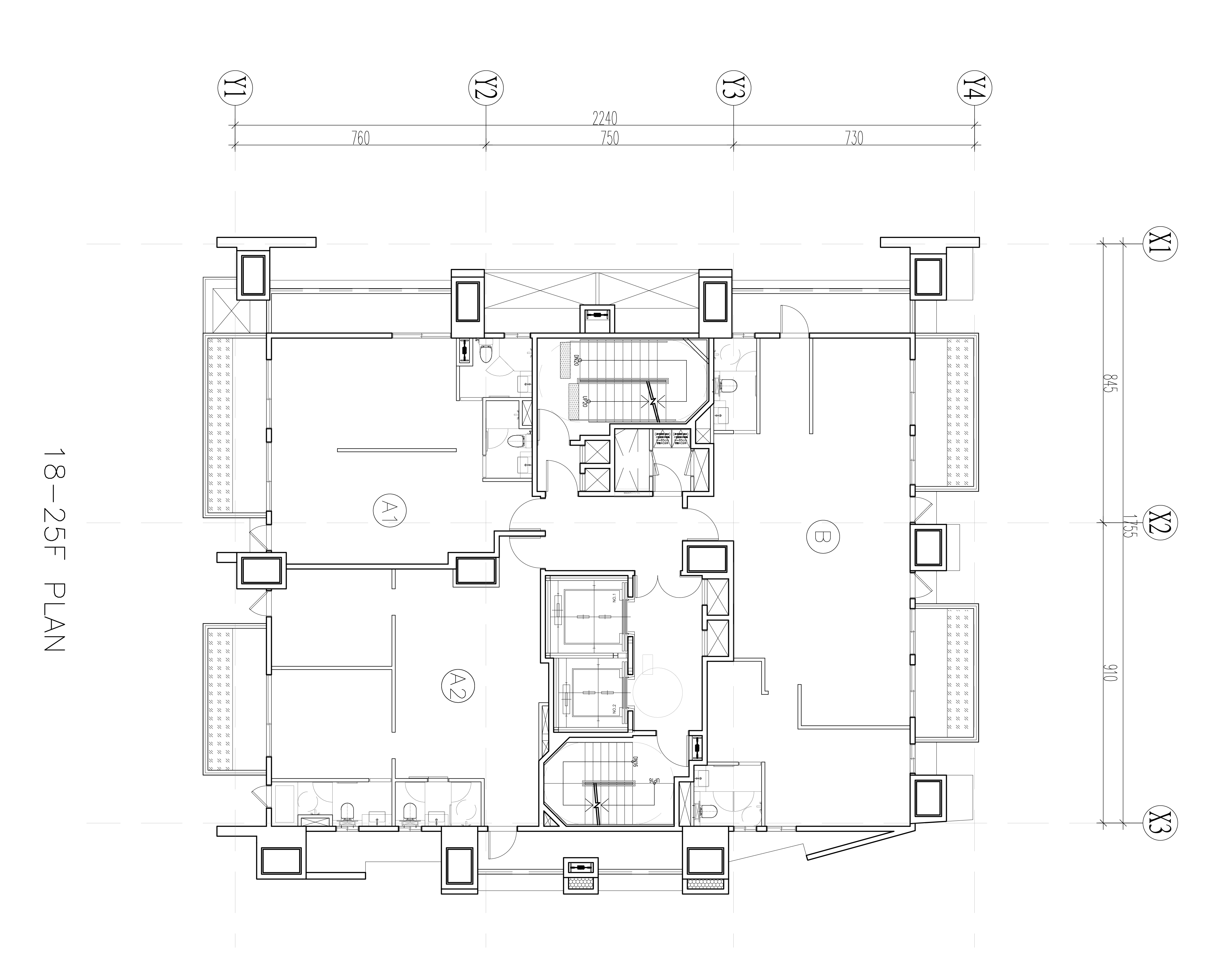
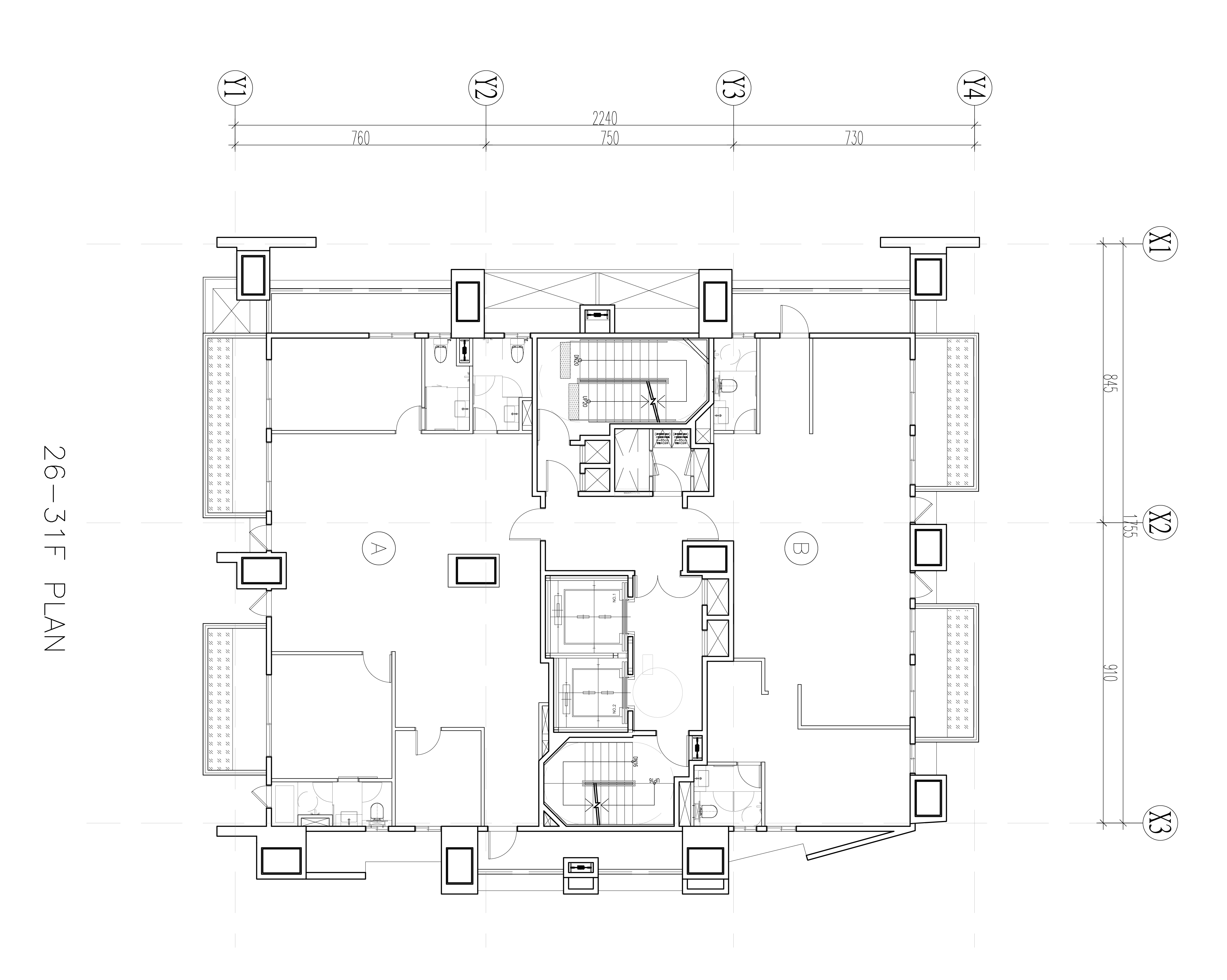
基本資料
土地坪/223坪/商五/81戶(零店面)
地上31層/地下5層
49輛/坡平-地下
36輛/倉儲-地上
1-4層/公設(大廳、環保室、健身房、交誼廳、書房及車廂、中繼層)
標準層(暫定坪數),每層設置當層環保室(暫存區):
5-15層/4併/40-48坪
16-25層/3併/35-66坪
26-31層/雙併/66-76坪
「博觀而約取,厚積而薄發」
語出蘇軾〈稼說送張琥〉一蘇東坡勉勵張琥,作學問應該要能廣博地閱讀群籍,而擇其中之精要,蓄積豐厚學力學養而不急於表現,有濃厚勸學意味的兩句!
明森 認為:人造建築,建築如人,心之所嚮、生活所向、生命所像......建築本應融入環境,矗立於大地,住宅(家空間)是人們安身立命之所,又如建築大師貝聿銘所言,建築是千秋大業,不應該嘩眾取寵!
博觀 -
自我期許為提升人們生活品質與都市環境精進,詮釋當代建築之科技、人文、藝術之演繹!
過程中,更不忘追求自然與都市的和諧關係,唯有歷久彌新與堅若磐石才能永遠為住戶守護生命與幸福...
基地位於高雄文化中心,匯聚市中心最成熟的文教住宅環境,矗立在光華青年路雙林蔭大道上-
博觀/案名同蘇東坡文章中,建築與人都是一樣,建築是如此,住戶性格亦然,正所謂「良禽擇木而居」,建築與人都是應該著重於內涵的表現!
不浮誇、師法自然、重視環境、歷久彌新.....永遠為人們安身立命之所!
專利證書:
台灣/發明專利第
I823712、I823821、I823822、I823823、I844457號
日本/發明專利 第7473695號
美國/發明專利 No.US 12,227,942 B2
大陸/新型專利 第ZL 2022 2 3481077.4號
德國/新型專利 第20 2024 002 482號
明森/博觀/高雄文化中心
Jan. 2026
明森建築









