園 芯
業主:勤寬建設
基地座落:臺灣 / 高雄市 / 苓雅區
設計時間:2017 / 09
完工時間:2020 / 02
建築規模:地上15層 / 地下3層
建築構造 : RC(Reinforced Concerte)鋼筋混凝土構造

 

一樓景觀平面

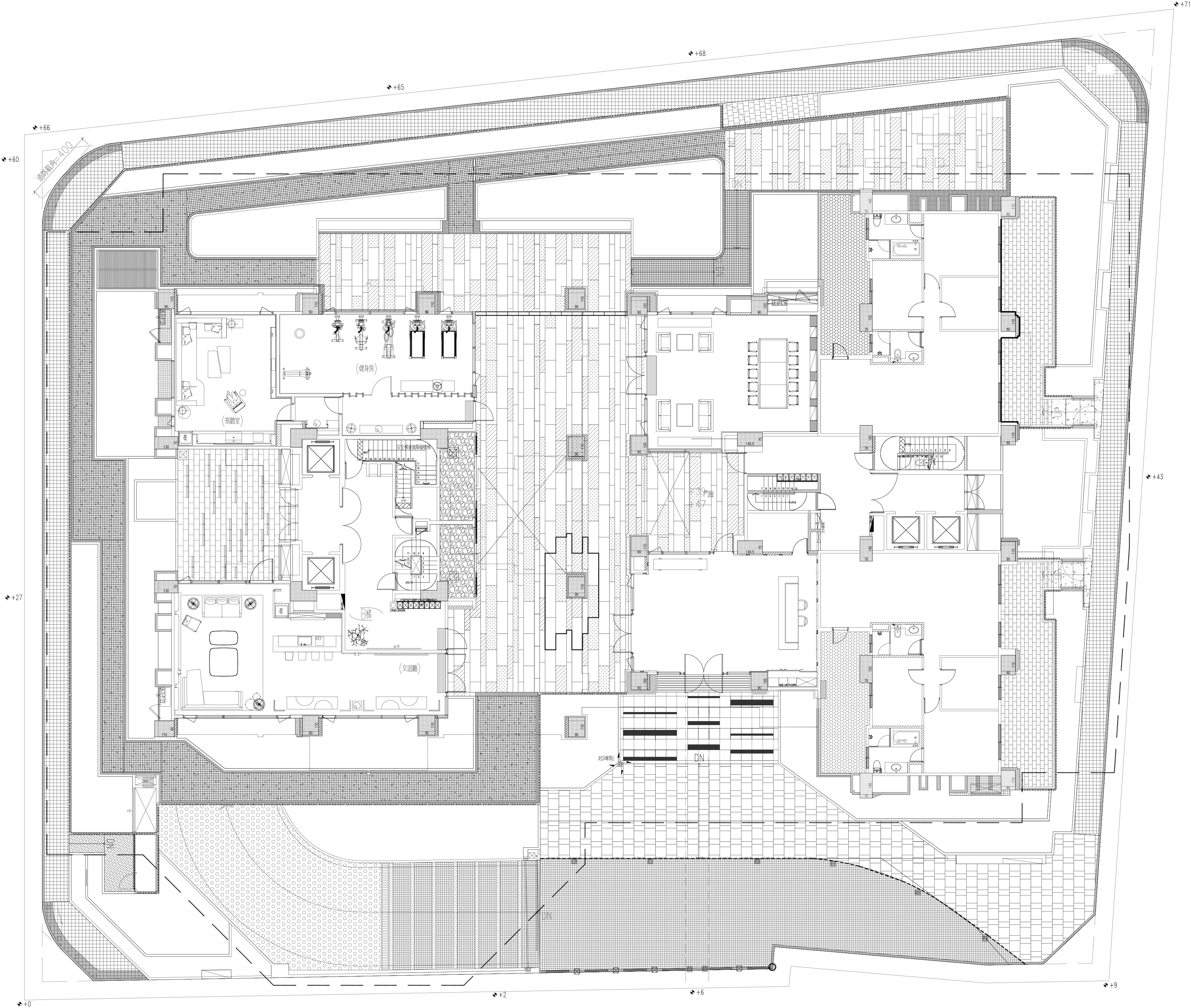
屋頂層景觀平面圖