明森 青耘
其實在四年前想做「青耘」的時候,沒人看好,也沒有人會喜歡這種「地形」…..
這不是重點,因為讓人喜歡我的建築,比喜歡我的土地重要!
台灣都市或者全世界的城市,相同的事情每天都在發生,
關於建築的美,其實重要的元素就是「幾何」!無論是平面的解套、立面的虛實、空間的凹凸…….
隨緣吧!應該讓鄰房決定自己土地的命運,都市勢必是全民參與的….
我從不等待「時機」,
我認為建築師就應該創造土地的機會,改變環境命運!
沒有人是「釘子戶」,因為…
這就是「都市」!
.........................................................................................................................................
青耘The white-最聰明的小宅…在高雄!
●Smart House 都會小宅
明森建築認為住宅應該呈現樸質的生活理念,摒除複雜的裝飾語彙、不標新立異的設計元素。住宅建築應該讓人享有舒坦、純粹、潔淨的空間;因為「家」的生活空間不應以「包裝」和「商業」的手法呈現,追求空間的「純粹感」才是住宅品質的終極目標…!
不應講究形式主義;以設計解決空間問題、以科學的角度思考都市住宅樣貌、賦予都市生活的真善美!
「青耘」即使是小宅;明森建築團隊同樣也能創造住宅的核心價值….觸動人心的終極建築-「家」!!
因此我們將青耘的設計強度提升,並達到以下幾點:
1.高效率空間、建築與室設的整合 (超強的收納)
2.流暢的動線、有次序的空間
3.良好的物理性能 (風 Wind、光 Light、視野 View)
4.內外空間的融合、各空間屬性的串連 (放大視覺長寬)
5.靈活彈性運用空間 (Open Building)
6.空中別墅的概念 (Sky Villa)
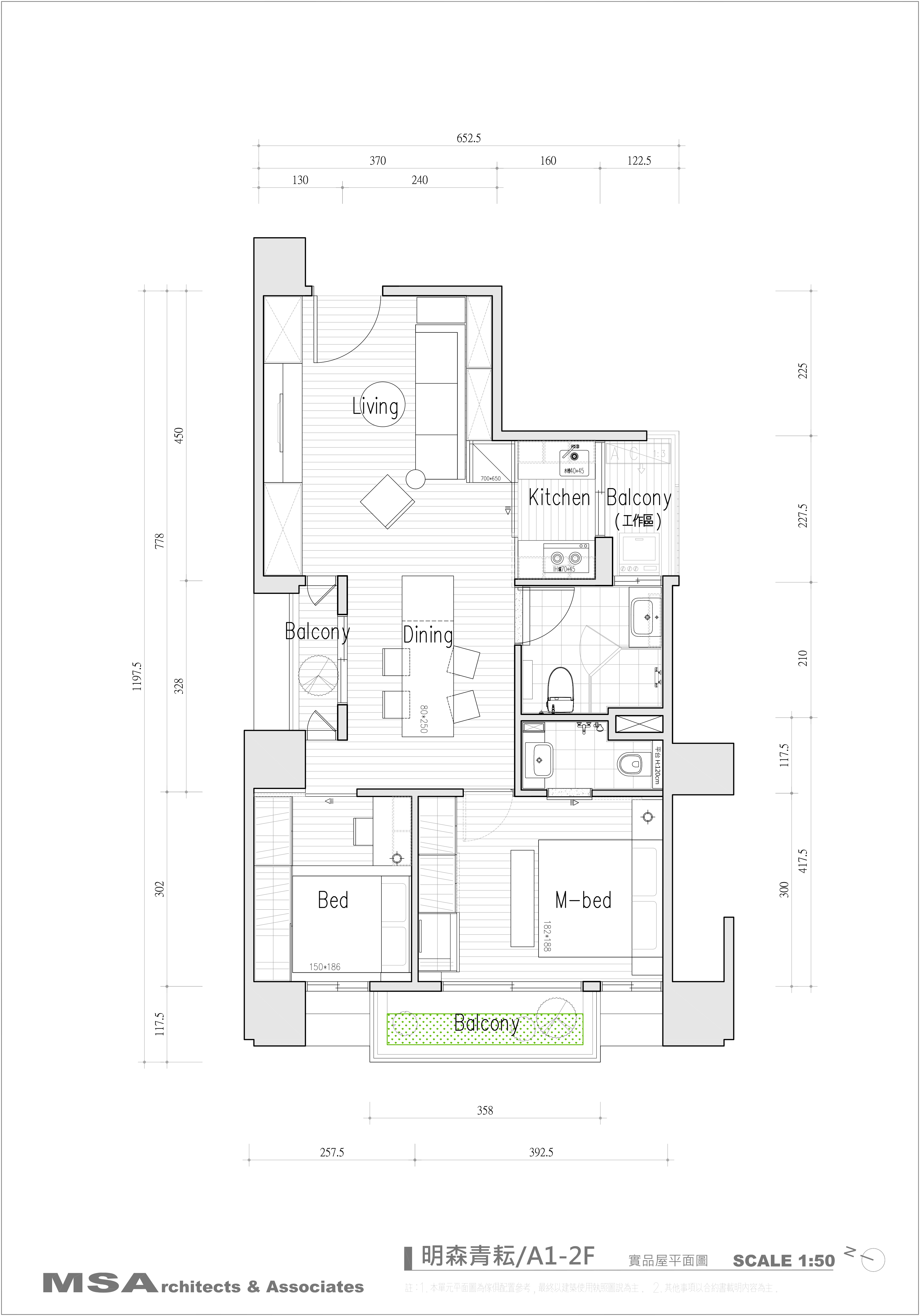
●建築平面 / 精巧六併五戶角間:
本基地為「T」形基地,前後臨路,將六併平面安排出五戶「邊間」,使住戶單元擁有良好的物理性能,如通風wind、採光light、視野view等..。在平面規劃之初,即將建築與室內同時並進,當你走入屋內,小而精巧的室內空間,沒有封閉的牆角,無需界定空間範圍vs「借景」、「穿透」的空間佈局在每個環節產生了「視覺延伸」的設計效果。建構每個單元融合成一個系統Merging systems into a stapled,「切割空間屬性」而不封閉空間界線,例如;links of LDKS(客廳living、餐廳dining、廚房kitchen、書房study)串連。「切割立面」,但不劃分屬性,例如;充滿機能性的牆嵌入牆面,房門呼應著牆面的延伸,達到視覺尺度放大的效果,如櫃子般的門(隱藏門)、純粹的白牆、溫潤的白橡地板、虛實俐落、超強收納、流暢的動線與內外交融的空間,讓室內延伸至戶外(陽台),不界定內外空間,突破小空間「狹窄」的刻板印象。
●建築外觀 / 節能、風土建築:
全棟採白色外牆⋯白色欄杆、水平格柵切割立面,使量體產生強大的立體效果,除了創造自然的陰影表情之外,也反映地域氣候特性,因為隔熱遮陽性能是亞熱帶地區建築應該呈現的外觀語彙,且白色最具環境滲透力,並有效降低外殼耗能量(低吸熱),同時滿足造型、色澤;並兼顧氣候特性謂之「風土建築」。在全球環保綠思潮之下,此觀點將成為現代建築設計手法最重要的影響因子,更是建築追求永恆的觀點!
●都心再造 / 小宅當道:
建築新舊更迭;我們試圖在舊有街道上注入新生命,從整合土地、建築、室內、景觀…行雲流水、自然合契,由內而外,呈現素白雅緻建築美學,就在舊有建築中長出一棟白色建築物,凹凸有形的深陽台上種著小樹,垂柳般的武竹詮釋了垂直綠化的層次,白色格柵如琴弦般的分割…「白、綠、木」再從外觀延伸至內部空間。
















































