寬 境
業主:勤寬建設
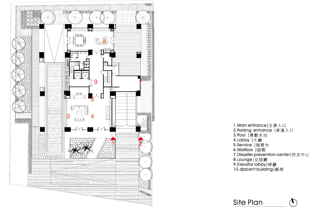
基地座落 : 臺灣 / 高雄市 / 苓雅區
設計時間 : 2012
完工時間 : 2015 / 10
基地面積 : 2502㎡ (756.8坪)
建築規模 : 地上27層 / 地下4層
建築構造 : RC(Reinforced Concerte)鋼筋混凝土構造
建築外觀
錯落的量體
四併平面為南北各兩戶住宅單元,利用框體的切割手法,使建築立面形成錯落的四個量體,任何角度都能呈現不同的錯位美學。在現代建築手法中,錯位的量體使建築立面具有立體的節奏感,也呼應了森林般的樹群,律動的立面似乎也是層層波動樹海的最佳舞伴!
區位思考
景觀優勢 / 凱旋公園第一排
本案位處高雄市河北路,南面正向凱旋公園,如森林般的樹群遠遠阻隔相鄰的中正路與凱旋路、大順路…「立於城市之中」而「藏於樹海之內」,儼然成為都會建築鬧中取靜的代表之一。
環境量體 / 低容積高樓化
基地周遭皆為低容積住宅,採低建蔽高樓化建築有利於環境的貢獻,也讓本案擁有極大的棟距;位處河北路上除可以擁有較佳的視野,亦可避開中正路繁忙嘈雜的交通,繁華與靜謐皆可兼得。










