沐河
明森鋼構外殼、台灣雷銲鋼構 世界雙專利工法
鋼結構建築外殼之構造專利工法
專利證書:
台灣/發明專利第
I823712、I823821、I823822、I823823、I844457號
日本/發明專利 第7473695號
美國/發明專利 No.US 12,227,942 B2
大陸/新型專利 第ZL 2022 2 3481077.4號
德國/新型專利 第20 2024 002 482號
發明人/文/楊豐溢
基本資料
基地座落 / 台灣/高雄市/苓雅區/河北路151號
基地面積 / 335㎡(101.34坪)
總樓地板面積 / 2164.77 ㎡(654.84坪)
公設比 / 34.78%
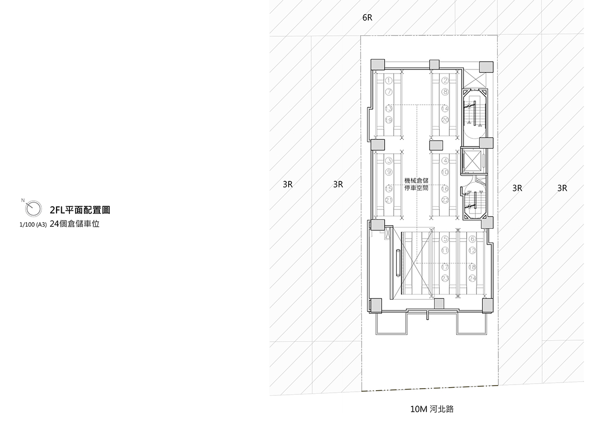
建築規模 / 地上10層,地下1層,樓高3.2m,三拼,共25戶,規劃24個倉儲車位。各戶權狀坪約: A1戶27.51坪、A2戶24.91坪、 B1戶25.05坪、B戶22.92坪 (註:有關銷售面積、外觀、平面配置..等,僅供參考,實際以銷售合約為主。)
設計時間 / 2022
完工時間 / 預計2027第二季完工
建築構造 / SS(Steel Structure)純鋼構,鋼柱SN490C(B)鋼材、抗震、環保、綠能、耐久
區位條件
文教 / 高雄師範大學、師大附中、英明國中、福東國小、五權國小
景觀 / 文化中心、凱旋公園
機構、醫療 / 高雄市衛生局、民生醫院、凱旋醫院、市立中醫醫院
商圈 / 中華市場、武廟商圈、光華夜市
交通 / 捷運-O8五塊厝站(350m)、輕軌-C32凱旋公園站(400m)、輕軌-C3衛生局站(450m)、中正交流道(1600m)
絕佳的地段
苓雅區境內機關學校眾多,是高雄的市政中樞,生活機能發展優渥成熟,且充滿大型文教設施,謂為高雄「首善之區」。
基地位於高雄市苓雅區河北路,基地之居住環境便利,區域五百公尺內擁有捷運站及輕軌站,且位處凱旋公園、五塊厝公園、民生醫院之中心點,一公里內更是概括文化中心、師範大學、以及福東國小。擁有完善的生活機能;而住所對外的視野讓生活得以悠閒、愜意,因為窗前即是綠意盎然的天然美景。
建築平面/精巧三併
本基地為矩形,但透過有技巧地安排將三戶平面設計「邊間」的平面,有條理的凹凸能夠有效控制開窗,使住戶單元皆擁有良好的物理性能,如通風、視野及採光。
平面設計思考的同時,建築與室內空間同時並進,當您進入屋內,精巧的空間設計,沒有封閉的牆角,使得柔和的光線能夠透過陽台及窗戶進入室內,沒有過多的裝飾,一切美好源於自然,侘寂之美油然而生 !
「切割空間屬性」但不封閉空間界線,例如;links of LDKS(客廳living、餐廳dining、廚房kitchen、書房study)串連。「切割立面」,但不劃分屬性,例如:充滿機能性的牆嵌入牆面,房門呼應著牆面的延伸,達到視覺尺度放大的效果,如櫃子般的門(隱藏門)、純粹的白牆、溫潤的白橡地板、虛實俐落、超強收納、流暢的動線與內外交融的空間,讓室內延伸至戶外(陽台),不界定內外空間,突破小空間「狹窄」的刻板印象。
1.非常強大的收納條件,小宅就是要「聰明」,不需要風格,建議每戶都有收納長櫃;可以是電器櫃、電視櫃、書櫃、衣櫃…有技巧地讓收納於無形,空間自然變聰明!
2.自由的房間,視覺貫穿、無需封閉、界定牆的存在,利用拉門、捲廉控制睡眠時的開啟封閉⋯
建築外觀
純白色的量體以木質色調貫穿,讓光影渲染在木質色調上,景觀陽台的凹凸,搭配色白色擴張網,具有量體層次,巧妙分割立面,且讓光線得以穿透,層次分明、自然節奏、與環境和諧…就是要讓每個人「想住」!
白色外觀有效降低外殼耗能量(不吸熱),同時創造當代建築造型與環境融合,並兼顧氣候特性謂之「風土建築」。在全球環保綠思潮之下,此觀點將成為現代建築設計手法最重要的影響因子,更是建築追求永續的觀點!
沐河何以是最聰明的小宅 :
主要訴求是在於空間的設計強度提升,並達到以下幾點:
2.流暢的動線、有次序的空間
3.良好的物理性能 (風 Wind、光 Light、視野 View)
4.內外空間的融合、各空間屬性的串連 (放大視覺長寬)
5.靈活彈性運用空間 (Open Building)
6.空中別墅的概念 (Sky Villa)
沐河強調「聰明小宅」的觀念不在於依賴電子化設備滿足所謂「智慧住宅」,而是講究設計技巧及論述...!
案名註解:
明森建築將本案取名「沐河」,以層次分明的白色建築和諧於藍天、沐浴於河北路上的綠色廊道,以白色為畫布,陽光陰影自然地展現建築的樣貌。































