沐海
明森鋼構住宅/鋼結構建築外殼之構造專利工法
專利證書:
台灣/發明專利第
I823712、I823821、I823822、I823823、I844457號
日本/發明專利 第7473695號
美國/發明專利 No.US 12,227,942 B2
大陸/新型專利 第ZL 2022 2 3481077.4號
德國/新型專利 第20 2024 002 482號
發明人/文/楊豐溢
基本資料
基地座落 / 台灣/高雄/苓雅區/苓中路21巷
基地面積 / 280m² (84.7坪)
總樓地板面積 / 839.12m² (253.84坪)
公設比 / 37.55%
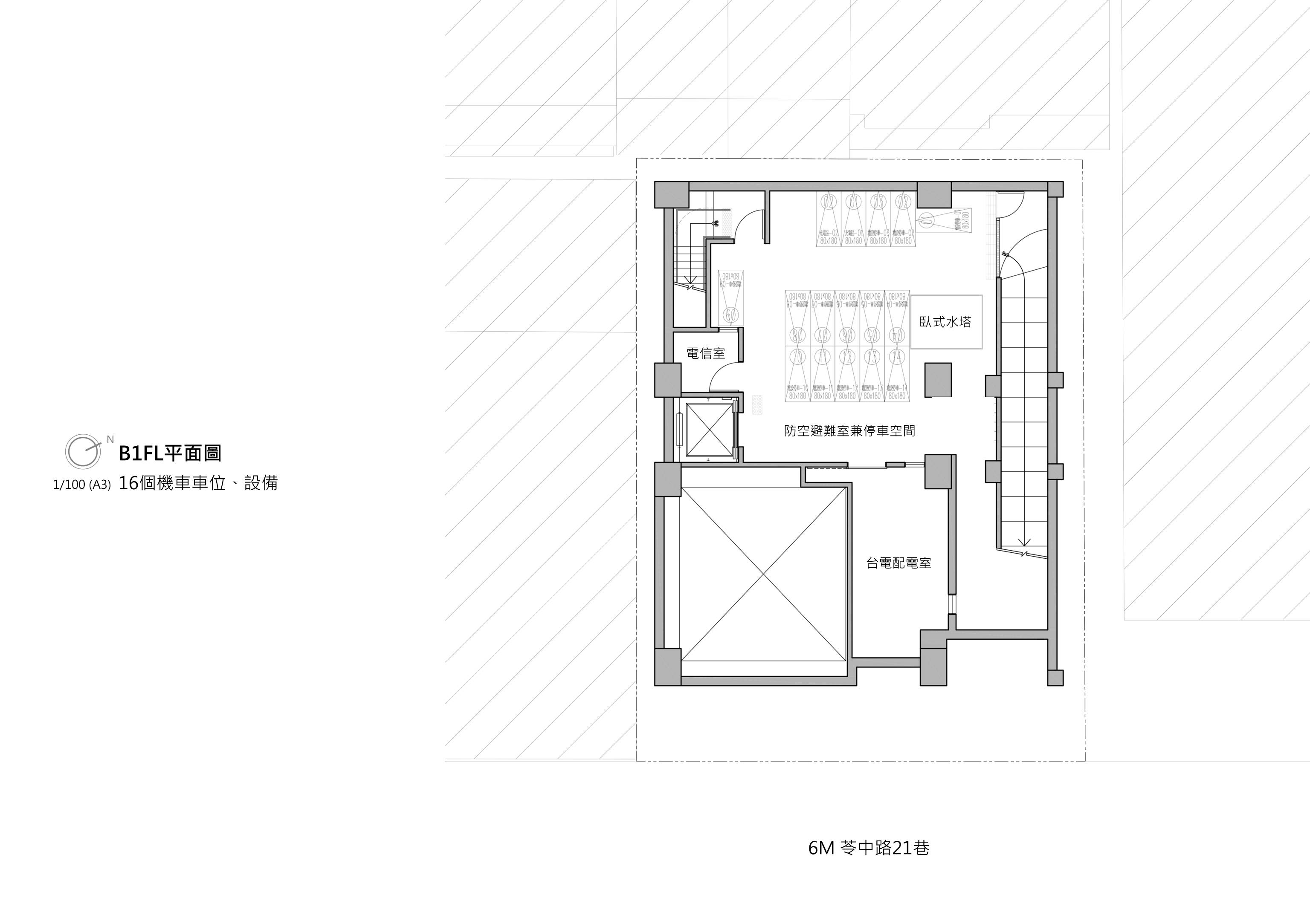
建築規模 / 地上9層,地下1層,樓高3.2m,雙併,共16戶。規劃5個機械車位,16個機車車位。各戶權狀坪約 :A戶(2-8F)-32.91坪、A戶(9F)-32.28坪、B戶-22.88坪。(註:有關銷售面積、外觀、平面配置..等,僅供參考,實際以銷售合約為主。)
設計時間 / 2022
完工時間 / 預計2025第二季完工
建築構造 / SS(Steel Structure)純鋼構,鋼柱SN490C(B)鋼材、抗震、環保、綠能、耐久
區位條件
文教 / 高雄女中、苓雅國中、成功國小、苓洲國小
景觀 / 高雄流行音樂中心、駁二藝術特區、星光水岸公園、海洋天堂公園
機構 / 港埠旅運中心、高雄展覽館、高雄市立圖書總館
商圈 / 三多商圈、漢神百貨、苓雅市場、自強夜市
醫療 / 阮綜合醫院、高雄基督教醫院
交通 / 輕軌-C9旅運中心站(350m)、捷運-Y15旅運中心站(450m)
絕佳的地段
苓雅區境內機關學校眾多,是高雄的市政中樞,生活機能發展優渥成熟,且充滿大型文教設施,謂為高雄「首善之區」。
基地位於高雄市苓雅區苓中路21巷,西南向臨海,望向新灣區海景,基地緊鄰著亞灣區域,居住環境便利,區域一公里內所及輕軌站、捷運站、旅運中心、高雄展覽館、大遠百、SOGO、圖書總館、成功國小、高雄女中、阮綜合醫院、IKEA、好事多等…交通方便且擁有完善的生活機能;而住所位處清幽讓生活得以悠閒、愜意。
未來由高雄市政府、行政院經濟部、 中油公司、 港務公司聯合開發的「2.0智慧科技創新園區」, 邀請國際大廠進駐設置總部或研發基地,發展國際研訓及應用技術管理人才中心,將成為兼具休閒觀光與金融經濟的開放水岸綠色廊帶。
建築平面/精巧雙併
本基地為矩形,但透過有技巧地安排將兩戶平面設計「邊間」的平面,有條理的凹凸能夠有效控制開窗,使住戶單元皆擁有良好的物理性能,如通風、視野及採光。
平面設計思考的同時,建築與室內空間同時並進,當您進入屋內,精巧的空間設計,沒有封閉的牆角,使得柔和的光線能夠透過陽台及窗戶進入室內,沒有過多的裝飾,一切美好源於自然,侘寂之美油然而生 !
「切割空間屬性」但不封閉空間界線,例如;links of LDKS(客廳living、餐廳dining、廚房kitchen、書房study)串連。「切割立面」,但不劃分屬性,例如:充滿機能性的牆嵌入牆面,房門呼應著牆面的延伸,達到視覺尺度放大的效果,如櫃子般的門(隱藏門)、純粹的白牆、溫潤的白橡地板、虛實俐落、超強收納、流暢的動線與內外交融的空間,讓室內延伸至戶外(陽台),不界定內外空間,突破小空間「狹窄」的刻板印象。
1.非常強大的收納條件,小宅就是要「聰明」,不需要風格,建議每戶都有收納長櫃;可以是電器櫃、電視櫃、書櫃、衣櫃…有技巧地讓收納於無形,空間自然變聰明!
2.自由的房間,視覺貫穿、無需封閉、界定牆的存在,利用拉門、捲廉控制睡眠時的開啟封閉⋯
建築外觀
純白色的量體透過陽台凹凸塑型,木質調的加入活潑了建築的表情,植栽的綠意從景觀陽台的間隙飄出,光影、綠意書寫在純白的量體上,巧妙分割立面,層次分明、自然節奏、與環境和諧…就是要讓每個人「想住」!
白色外觀有效降低外殼耗能量(不吸熱),同時創造當代建築造型與環境融合,並兼顧氣候特性謂之「風土建築」。在全球環保綠思潮之下,此觀點將成為現代建築設計手法最重要的影響因子,更是建築追求永續的觀點!
沐海何以是最聰明的小宅 :
主要訴求是在於空間的設計強度提升,並達到以下幾點:
2.流暢的動線、有次序的空間
3.良好的物理性能 (風 Wind、光 Light、視野 View)
4.內外空間的融合、各空間屬性的串連 (放大視覺長寬)
5.靈活彈性運用空間 (Open Building)
6.空中別墅的概念 (Sky Villa)
沐海強調「聰明小宅」的觀念不在於依賴電子化設備滿足所謂「智慧住宅」,而是講究設計技巧及論述...!
案名註解:
明森建築將本案取名「沐海」,以層次分明的白色建築和諧於藍天、融沐於海灣,白色為畫布, 陽光陰影自然地展現建築的樣貌。



























