明森巷
基本資料
基地座落:臺灣 / 台北市 / 中山區
基地面積:241.6㎡(73.08坪)
總樓地板面積:1491.42㎡(451.15坪)
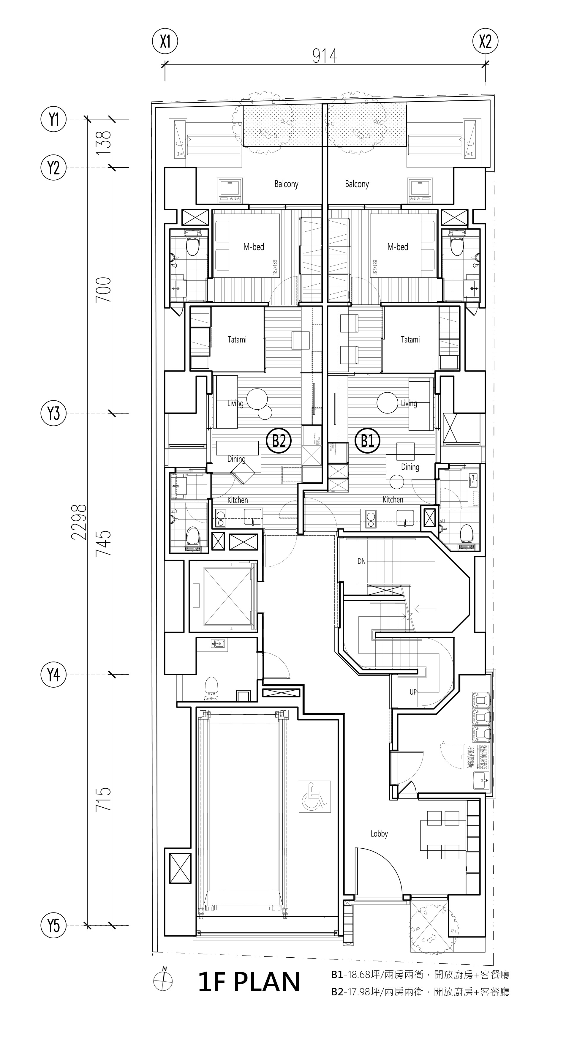
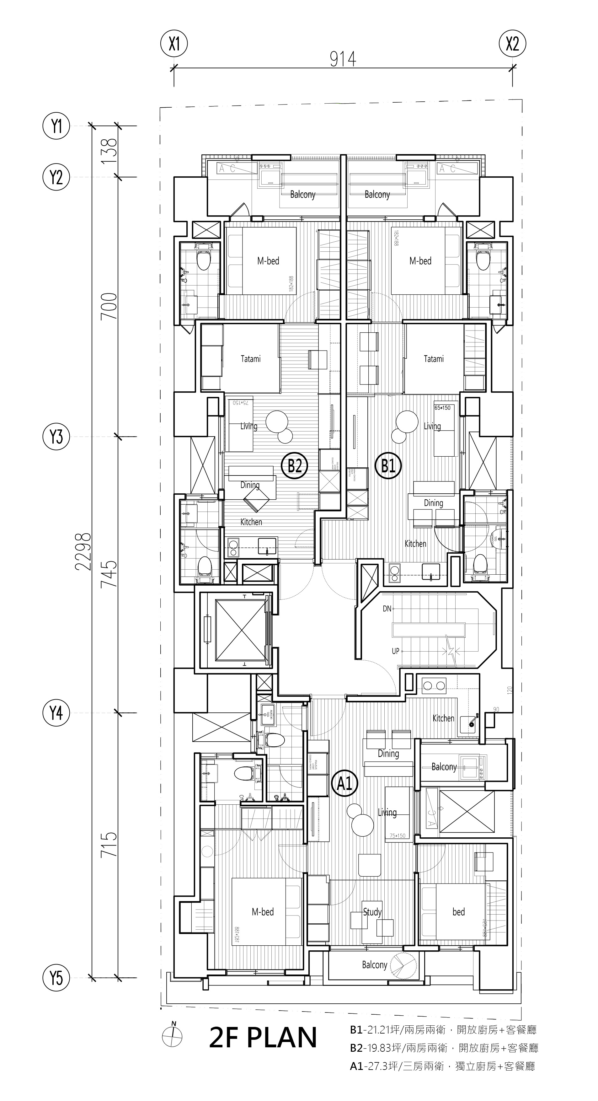
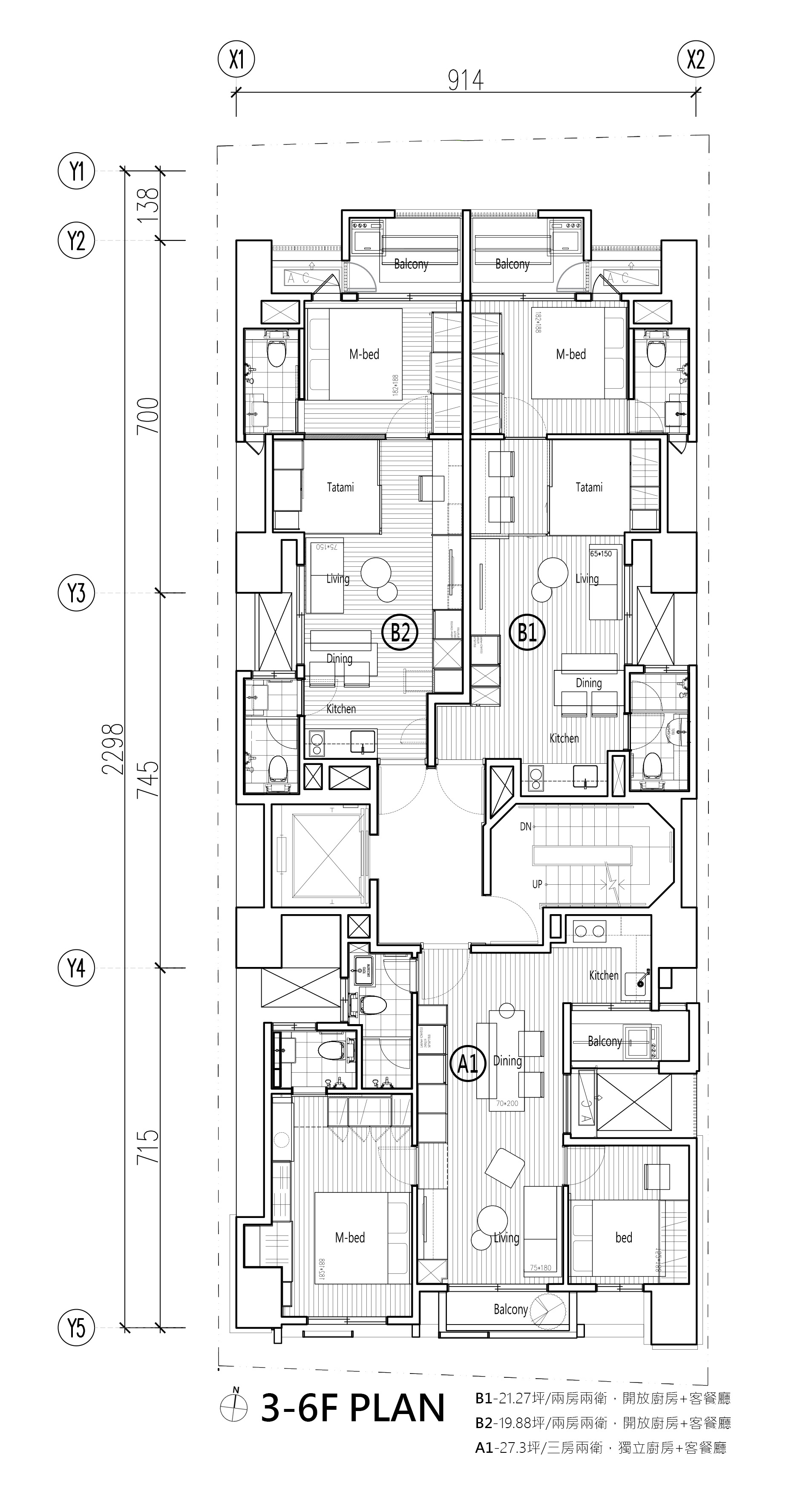
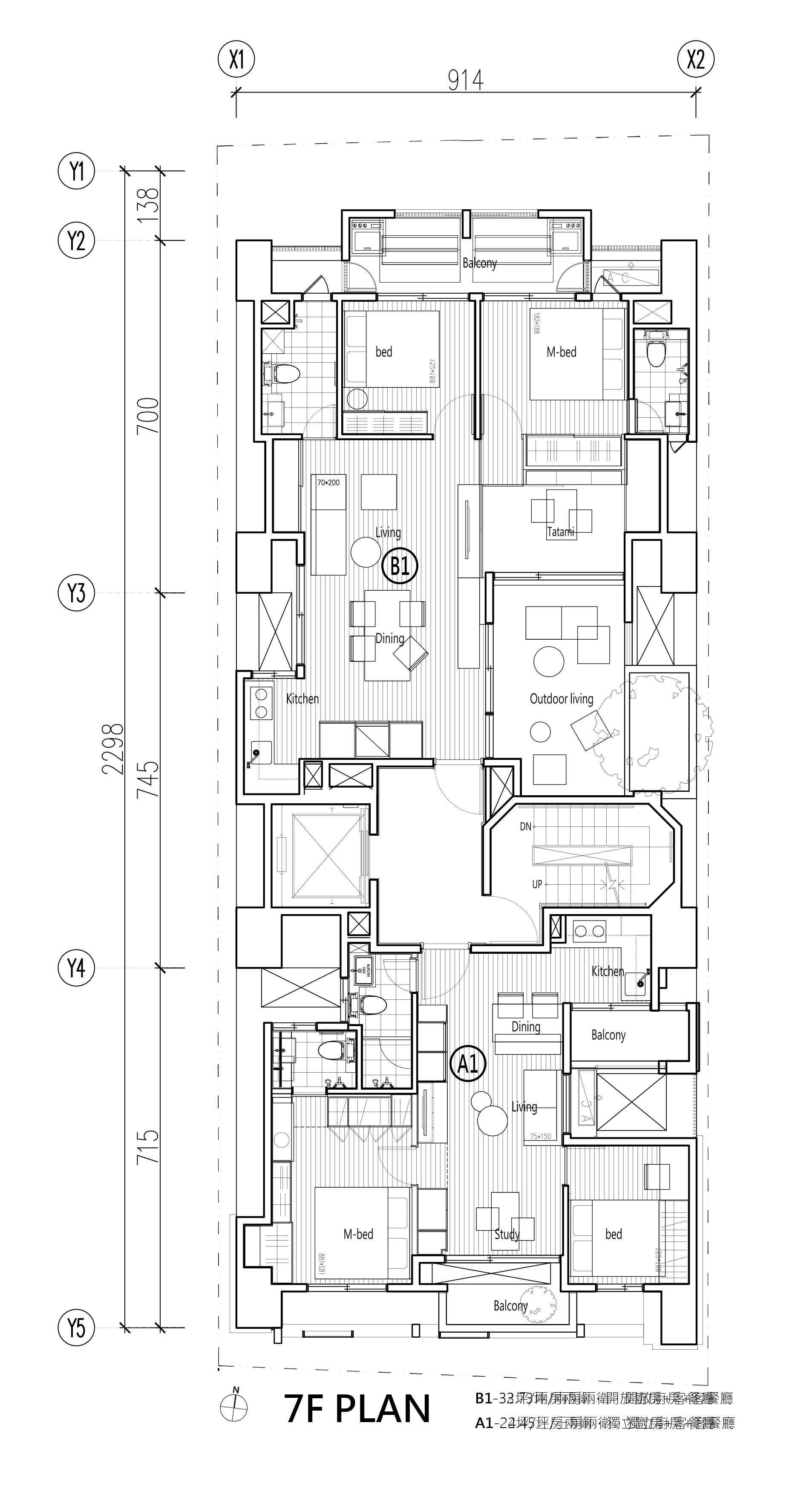
建築規模:地上7層/19戶
設計時間:2021
完工時間:預計2024/10
建築構造 : RC(Reinforced Concerte)鋼筋混凝土構造
明森巷-
台北最聰明的小宅!
文/楊豐溢2022/10/21
台北市中山區新生北路二段
/最聰明的都會小宅,明森建築繼高雄「青耘」之台北系列…
在巷弄之間的幽靜、幽玄,住宅得以悠哉⋯
創造「侘寂」美學!(註1)
在台北巷弄之間找到寂靜之美,繁華與靜謐只在方寸之間,老屋巷弄也可以豁然開朗⋯
他鄉儘管華麗,故我依然自在!
總之…
我們思考的方向是如何讓台北市的房子更「聰明」,而不是追求盲目的「豪宅」文化,而巷子凌碎、建築老朽..我們無法改變環境,但一定會感染這個巷弄;因為「明森巷」很容易接收了自然元素,如陽光打在外牆上造成的陰影、微風帶給樹木的搖曳,使得光與綠、白與木⋯!因為「柔美」才是視覺傳達給心情絕佳的能量..如此的建築當然會影響環境…
所以,她雖然長在巷子裏..因為明森建築崇尚「師法自然」之建築,無論是外在的形象或內在聰明的空間與質感,將會影響這條巷道的命運與氣場…所以她名字叫「明森巷」!
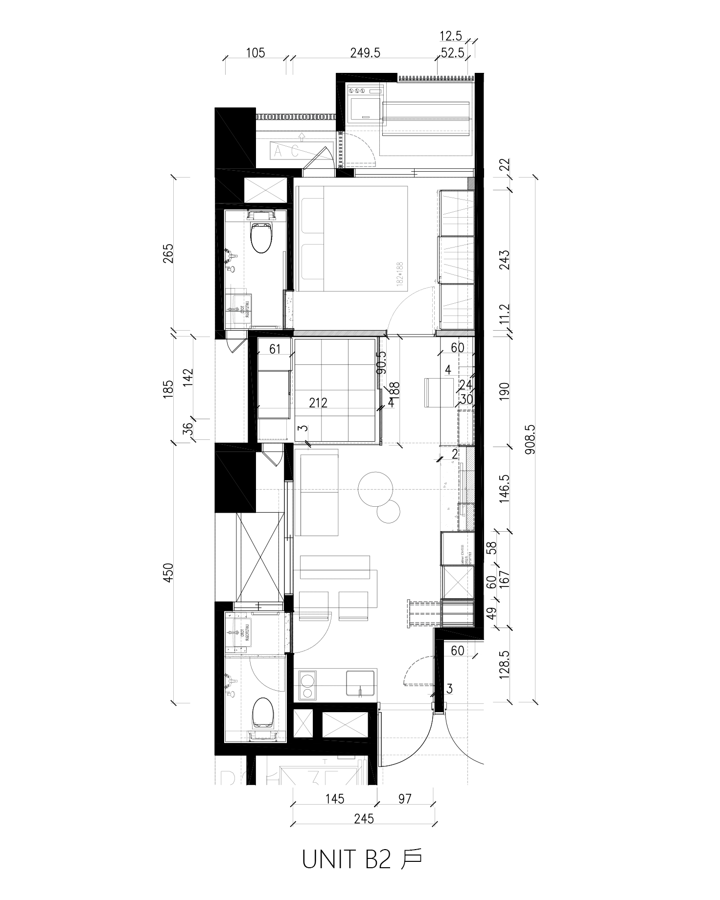
坪數資料(權狀坪/約):
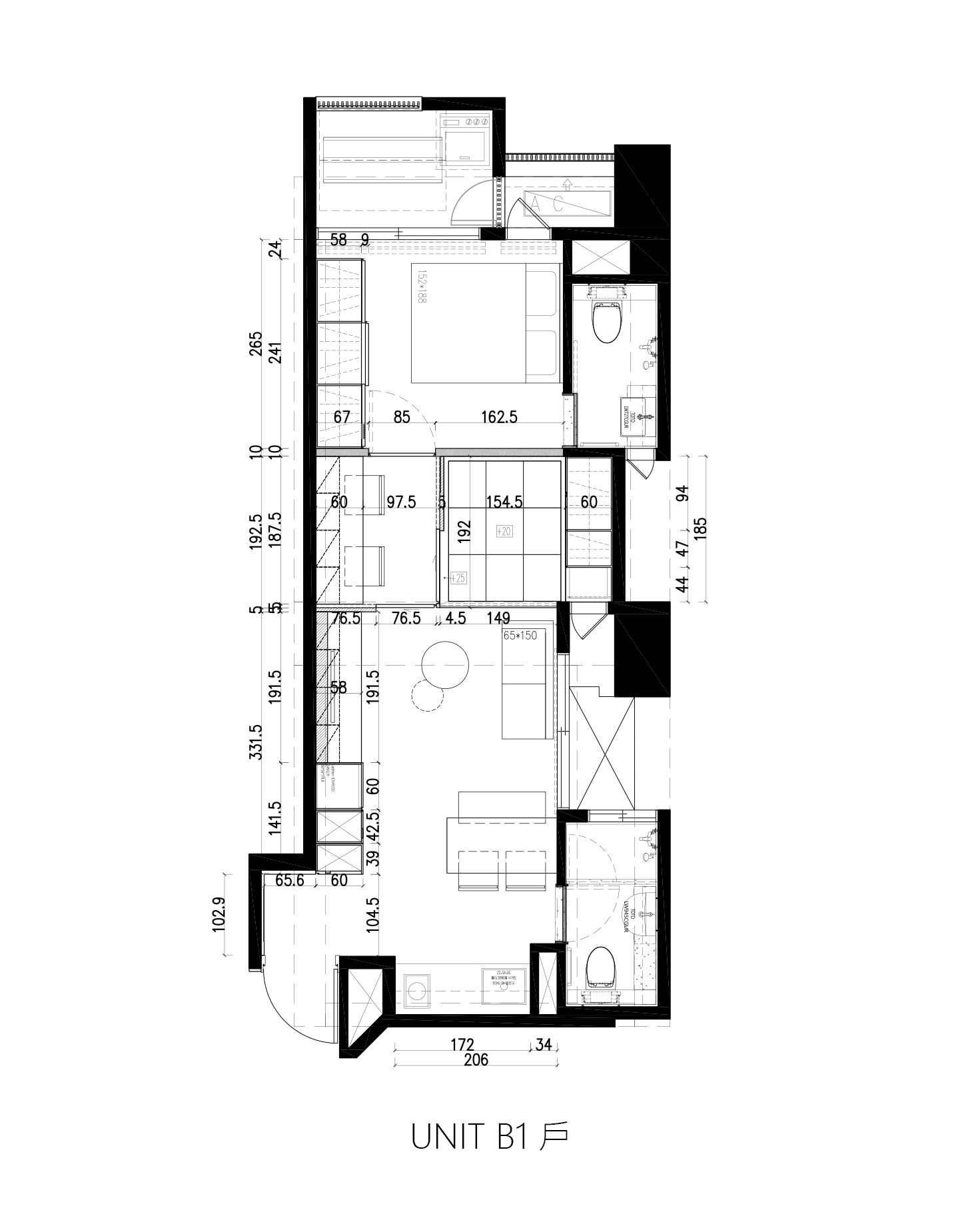
B1-21.3坪/兩房兩衛,開放廚房+客餐廳
B2-19.9坪/兩房兩衛,開放廚房+客餐廳
A1-27.3坪/三房兩衛,獨立廚房+客餐廳
註:
有關銷售面積、外觀、平面配置..等,僅供參考,實際以銷售合約為主。
- 絕佳的地段:
1.台北市中山區/生活機能完善
2.稀有台北都會精緻小宅,單純19戶,建構全E化管理,自主性及維護效率高
- 建築平面 / 精巧三併:
本基地為矩形基地,雖臨六米巷,但透過有技巧的平面安排將三戶平面設計出類「邊間」的開窗,有條理的凹凸能夠有效控制開窗,使住戶單元擁有良好的物理性能,如通風wind、採光light等..。在平面規劃之初,即將建築與室內同時並進,當你走入屋內,小而精巧的室內空間,沒有封閉的牆角,無需界定空間範圍vs「借景」、「穿透」的空間佈局在每個環節產生了「視覺延伸」的設計效果。
- 建築外觀 / 節能、風土建築(註2):
全棟採白色外牆⋯白色欄杆、水平格柵切割立面,使量體產生強大的立體效果,除了創造自然的陰影表情之外,也反映地域氣候特性,因為隔熱遮陽性能是亞熱帶地區建築應該呈現的外觀語彙,且白色最具環境滲透力,並有效降低外殼耗能量(低吸熱),同時滿足造型、色澤;並兼顧氣候特性謂之「風土建築」。在全球環保綠思潮之下,此觀點將成為現代建築設計手法最重要的影響因子,更是建築追求永恆的觀點!
最聰明的理由
- Smart House 都會小宅
明森建築認為住宅應該呈現樸質的生活理念,摒除複雜的裝飾語彙、不標新立異的設計元素。住宅建築應該讓人享有舒坦、純粹、潔淨的空間;因為「家」的生活空間不應以「包裝」和「商業」的手法呈現,追求空間的「純粹感」才是住宅品質的終極目標…!
不應講究形式主義;以設計解決空間問題、以科學的角度思考都市住宅樣貌、賦予都市生活的真善美!
「明森巷」即使是小宅;明森建築團隊同樣也能創造住宅的核心價值….觸動人心的終極建築-「家」!!
因此我們將「明森巷」的設計強度提升,並達到以下幾點:
1.高效率空間、建築與室設的整合 (超強的收納)
2.流暢的動線、有次序的空間
3.良好的物理性能 (風 Wind、光 Light、視野 View)
4.內外空間的融合、各空間屬性的串連 (放大視覺長寬)
5.靈活彈性運用空間 (Open Building)
6.空中別墅的概念 (Sky Villa)
「切割空間屬性」但不封閉空間界線,
例如;links of LDKS(客廳living、餐廳dining、廚房kitchen、書房study)串連。
「切割立面」,但不劃分屬性,
例如;充滿機能性的牆嵌入牆面,房門呼應著牆面的延伸,達到視覺尺度放大的效果,如櫃子般的門(隱藏門)、純粹的白牆、溫潤的白橡地板、虛實俐落、超強收納、流暢的動線與內外交融的空間,
讓室內延伸至戶外(陽台),不界定內外空間,突破小空間「狹窄」的刻板印象。
1.非常強大的收納條件,小宅就是要「聰明」,不需要風格..
建議每戶都有收納長櫃..
你可以是電器櫃、電視櫃、書櫃、衣櫃……….
千變萬化、收納於無形,空間自然變聰明!
2.自由的房間,視覺貫穿、無需封閉、界定牆的存在..利用拉門、捲廉控制睡眠時的開啟封閉⋯⋯
- 都心再造 / 小宅當道:
建築新舊更迭;我們試圖在舊有巷道上注入新生命,新思維、新建築、新氣象⋯從土地到建築、室內、景觀…行雲流水、自然合契,由內而外,呈現素白雅緻建築美學,就在既有巷道中長出一棟白色建築物,凹凸有形,以樸質的層次,白色線條框架分割「白、綠、木」的層次,再從外觀延伸至內部空間。
備註說明:
(註1)侘寂美學:
侘ㄔㄚˋ寂(日語:侘び寂び Wabi-sabi)是一種以接受短暫和不完美為核心的日式美學。侘寂的美有時被描述為「不完美的,無常的,不完整的」。[2]它是從佛教三法印派生的概念,特別是無常。
侘寂是對美的直覺反應,反映人生的本質。
侘寂是接受與欣賞萬物不恆常、不完美與不完整的本質。
侘寂是承認簡單、緩慢與自然生命的賜予。
《侘寂──素朴日常》
十六世紀,茶道宗師千利休借「和敬清寂」的侘茶意識,奠定了日本終極的侘寂美學。侘是清貧、粗糙,在不足中見充足;寂是面對褪色、消逝事物的心境。茶室為了滿足個人的美的需求而建,通往原始心境,並暗示了短暫、輕微事物中的美。侘寂是人類對自然、缺陷、樸實事物的嚮往,美在於素朴日常,在不完美,接受劣化,讓本質顯現。
一千年的時間,日本的美學從唯美的物哀、深遠的幽玄,走向空無的侘寂。現代美學家大西克禮旁徵博引,將「物哀、幽玄、寂」定調為日本美學三大關鍵詞。本系列爬梳三大美學的起源、概念,及不同領域的解讀或應用,內容橫越文學、歷史、心理學、哲學,是讀者掌握日本美學的獨家著作。
參考資料:
森神逍遙 『侘び然び幽玄のこころ―西洋哲學を超える上位意識』桜の花出版、2015年 ISBN 978-443420142
大西克禮 『風雅論 「さび」の研究』 岩波書店、1940
大西克禮 『萬葉集の自然感情』 岩波書店、1943
(註2)台灣風土建築:
風土建築分兩個層面:
- 文化層面(人文、地文、水文):例如在地文化、民俗風情或地質與物種等等,因環境造成的建材選樣,影響建築特質、特色或形式。
- 氣候層面(物理量、地球科學):因台灣位處地震帶,且高溫、高濕多雨的亞熱帶氣候之海島型氣候。建築設計如果能夠呼應台灣環境物理條件,例如:多設計遮陽板、隔熱材、節能材、抗震結構系統、耐候材料或環保材料…等。
- 因此,當建築師在造型上或結構及材料運用,皆能滿足或呼應上述這兩大訴求,即可視為「風土建築」!
- 另外筆者認為,為何台灣房地產的住宅違反「風土建築」?原因就是建商無謂的「豪宅」訴求,大量石材雕塑、模仿歐洲古堡、巴洛克造型或大面積耗能的玻璃帷幕外牆…等。













