明森鋼構住宅/鋼結構建築外殼之構造專利工法
專利證書:
台灣/發明專利第
I823712、I823821、I823822、I823823、I844457號
日本/發明專利 第7473695號
美國/發明專利 No.US 12,227,942 B2
大陸/新型專利 第ZL 2022 2 3481077.4號
德國/新型專利 第20 2024 002 482號
發明人/文/楊豐溢
台灣四面環海,高濕、高溫是典型亞熱帶海島型氣候,且位處於地震帶。以科學理論及角度來看,氣候、環境、物理因子會很自然的影響建築形式。其實建築是人類生活的容器,影響的層面相當廣泛,所以台灣建築在每個時代的造型、風格、結構與功能,以及社會上所展現出的宗教、政治、經濟、藝術等文化意義與內涵非常豐富又多元。
台灣在歷史上,經歷了被多國殖民統治,尤以日據時期以閩南、日本、西洋的文化為主要的影響,從引進鋼筋混凝土技術後,接著國民政府來台,台灣出現中國古典元素,又經由美國引入了國際主流的現代主義風格。現今,台灣建築走向多元化,各種風格的建築都普遍存在台灣各地。在經濟層面上,藉由其地理位置的優勢,帶來了活絡的經貿,而形成高度的商業活動。
1-1 台灣建築產業現況
1-1-1 房屋市場應重視居住的「質」
綜觀台灣歷史與環境特質,使得人民有著多國的學習力與包容性,因而造就了繁榮而多元的商業建築及文化資產….。但是,大部分房地產建築並不是所謂的「文化資產」。其中「住宅」類型,是生產最快速、最頻繁的「產品」,儼然成為都市霸主 (佔了90%以上)。而都市的困境在於;如果建商興建住宅只是商品,民眾也重視表面的包裝,或者忘記了住宅「質量」。進一步說,我們的居住環境,是否符合台灣「風土建築」(註1)?或所謂的本土價值?是否呼應台灣在科技上及經濟層面的成就?換言之,住宅市場充斥的過於短視的商業思維,導致台灣應有的住宅特質,常常被房地產文化所掩蓋。所以,台灣應有的住宅文化與質量,不容易被有條理的探討出來!
1-1-2 房屋市場的「三高」現象
在當前,台灣房屋市場面臨高房價、高空屋率、高自有率「三高」,加上人口老化與少子化,民眾對住宅需求已經在改變,使得房屋持有時間變長,而建築使用壽命卻很短。而當前國際情勢劇變,政治局勢改變了經濟局面,通膨與利率相互牽制、政策調整,都左右了房地產價格的盤整。由於都會精華區房價居高不下,許多人還是得住在市區,因此只能選擇老屋居住,實際上都更並不容易,往往還得繼續住在老屋一段很長的時間。而都市基地受限,集合住宅產權複雜,危老、都更需求迫在眉睫,但營建業嚴重缺工,通膨嚴重導致建商搶地、搶工,都市都更窒礙難行,而新興重劃區卻雨後春荀般的,如火如荼的大量興建房屋。都市也慢慢呈現越來越高的房價與越來越老的老屋,加上越來越老、越來越少的營建工人。斷工危機、投資客炒房、政府打房⋯。就是這樣,房地產文化與住宅文化永遠都是對立的矛盾的,且紊亂與多元!
1-1-3 台灣房子很短命 -「建築劣化」現象
常常聽到媒體,甚至政府稱:台北市3-40年的老屋佔了全都市建築50%以上,高雄市都更推動緩慢,政府必須加速推動危老、都更⋯等訊息。所以「都更成功率」才是政府和民眾所關心的。都更固然是任何城市的當務之急,都更成功率也是政府首要政績,但問題在於;為什麼我們沒有警覺到「30年」的都更年限是非常荒謬的?或許很多人認為,是因為早期台灣的營建技術低劣,或是建商偷工減料、法規不夠嚴謹…等因素,所以造成台灣住宅是如此的短命?
那麼我們是否應該探討,什麼原因讓都更變得如此短命的週期?是否成為一種不健康的短循環?當這般惡性循環的枷鎖發生在每個人的生活,並危及每個人的生命財產時,那麼,是否應該探討台灣建築結構根本性問題?如何因應台灣氣候環境條件、因應國際趨勢與地球困境、探討目前世界上建築結構應該走的方向⋯等。這或許就是我們為何要推動鋼結構住宅,無論是高層或中低層建築,大基地或小基地,尤其台灣都市巷弄狹小的基地如能加以運用,即能解套。我想,這將是台灣政府和建設業者必須走的道路,今天不做,明天做;明天不做,後天一定要做的事情。這也是本「發明專利工法」主要的研究動機,並且提出具體,可以執行的方法。
1-2 建築產業是地球上最大碳排量
聯合國環境規畫署(UNEP)二○二○年的報告指出,建築產業在二○一九年排放了全球的總耗能三五%,以及總溫室氣體三八%,高於工業部門和運輸的總排放量,因此建築產業的節能減排,是達成國家淨零排放的關鍵所在。(文獻1)
生命週期評估(Life Cycle Assessment, LCA)是指產品從生產服務被運用直到廢棄被處置,各階段產生出對環境的潛在衝擊的評估。以建築物為對象,並聚焦在環境衝擊之中的碳排放,可以發現,在生命週期之中,除了營運過程能源相關的碳排放(簡稱「營運碳」)之外,還包含剩餘生命週期內所產生的碳排放,稱為「隱含碳」(Embodied carbon)。(文獻2)
根據《亞太區隱含碳入門》(Asia Pacific Embodied Carbon Primer),顯示營建產業從材料生產、施工營建、日常使用、拆除到回收利用,建築物的碳排放量是地球上佔比最高的產物,其中25-28%來自於營運階段,10-12%來自於營建階段(Embodied carbon,稱為隱含碳排)。因應當今環保時代,我國現行「綠建築九大評估指標系統(EEWH)」中,包含了生物多樣性、綠化量、基地保水、日常節能、二氧化碳減量、廢棄物減量、室內環境、水資源及汙水垃圾改善等九項評估指標。從1992年「地球高峰會議」制訂的「全球氣候變化公約」到1998年「京都議定書」,各國無不積極進行二氧化碳排放減量的工作。其中「二氧化碳減量」指標的目的,是為減少建材在生產及運輸中的二氧化碳排放量而定。
1-3 綠建築的首要重點-結構體
地球暖化議題是當前地球環保最迫切的議題,而建築物該如何減少二氧化碳呢?其中最大的關鍵在於建築構造體系與建材的使用方向。所以,建築師在設計時必須考量「結構合理化」、「建築輕量化」、「耐久化」及「再生建材的使用」等四大要素。
台灣地狹人稠且四面環海,是典型的亞熱帶島嶼,而地質、氣候處於地震帶、高溫高溼,及每年夏秋季颱風環伺。以建築耐震能力而言,重點在於「結構系統設計」及「確實的施工品質」,必須同時滿足者兩個條件才是良好的結構,而不是SS或SRC就一定比RC構造安全,因為條件是相對性的,而「結構合理化」和「建築輕量化」也必須和耐震性能同時考量。
台灣三種結構系統:RC結構、SRC結構或SS結構。決定建築的結構系統才是第一要務,因為建築物從誕生到結束的過程:1.材料生產、2.設計營建、3.各種使用、4.劣化維修、5.結束拆除。在這個過程中,結構體系都是綠建築各大指標的重點,它影響建築生命週期的走勢,也改變各種數據的變化。而治標就要先治本,正確選擇結構體系才是根本之道。
1-4 台灣主要三種結構系統分析
1-4-1 RC鋼筋混凝土(Reinforced Concrete)本文簡稱RC
將鋼筋與混凝土這兩種材料組成的原因在於鋼筋抗拉與混凝土抗壓特性,這也是台灣營建業最普遍的工法,佔了全台灣90%以上(中低樓層5-15層房屋,幾乎100%)。
施工程序是利用模板作為結構模型再綁鋼筋、澆置混擬土、結構體表面裝修必須大量的泥作..防水、填縫、抹平、貼磚。營建業屬於大量的勞力密集行業,由於需要相當多模板工、鋼筋綁紮工、泥作工⋯這也是目前本國勞動力嚴重缺工的最大原因。
在結構抗震方面,自從台灣921地震以後,建築物耐震設計規範也經過多次修改,而RC結構在耐震規範中也必須具「韌性設計」要求。
1-4-2 SRC鋼骨鋼筋混凝土(Steel Reinforced Concrete)本文簡稱SRC
SRC構造的誕生,是因為台灣大樓樓層超過30層左右,必須滿足法規規範「韌性設計」,這將會造成柱梁斷面尺寸過大,而影響室內空間(尤其是地下室車位與1-8樓斷面需求更大),所以才有了SRC結構系統的原因。但實質上SRC構造與RC構造設計強度一樣,也同樣沒有消能機制,除了造成施工重複(鋼柱梁+RC包覆),營造成本增加,且工作進程、耗時耗力。
施工程序是將鋼柱及鋼梁組成的基礎構架,再用鋼筋包覆鋼骨外,組立模板後灌入混凝土,進而完成梁柱及樓地板的施作。SRC的存在也是希望綜合RC及SS結構耐震性(韌性有助於抵抗地震力)同時又希望住宅舒適度(提高剛性避免地震力風力造成建築物搖擺)其實SS工法依然可以克服這方面的問題(在下一段補充)。
台灣建商開發住宅建案,之所以依賴SRC結構,除了上述功能之外,主要的原因為:
1.濕式工法的鋼筋混凝土構造,介面處理細節相較於鋼骨、鋼材鐵件的乾式工法容易。
2.誤以為鋼柱、鋼梁結構加上RC保護,可以一勞永逸,達到防火、防水、防鏽、隔音 、耐候⋯等性能。
實際上,論環保數據SRC結構是三者最差的,以結構應力或工程施工程序並沒有比較優勢,但混凝土劣化的缺點與RC一樣同樣存在,也無法達到SS結構的耐震性能等級,諷刺的是,台灣大部分的建商將之號稱為「豪宅」專用結構。
1-4-3 SS鋼結構 (鋼骨)(SS /Steel Structure或稱SC /Steel Construction)本文簡稱SS
台灣位處於地震帶,建築結構如果採用SS(SC)鋼骨構造,將具有較佳的韌性,進而達到較好的耐震性能,通常運用在超高層建築(註2),因為超高層建築物受地震力作用相當大,耐震要求比較高;所以,SS(SC)鋼骨構造』多半運用在辦公建築或公共建築類 (百貨、飯店、大跨度體育場、工廠)。
補充上述…..SRC的系統之所以問世,原意希望綜合RC及SS結構耐震性(韌性有助於抵抗地震力),同時又希望兼顧住宅的舒適度,如提高剛性避免地震力、風力造成建築物搖晃,然而,這個部分可以皆由斜撐、制震壁抵抗建築物的變位量,可以控制在2/1000的位移量,比鋼筋混凝土變位量還低,大大可以補足鋼結構在這方面的問題。如此可見,SS結構系統是當代建築應該推展的方向,尤其住宅類。
上述這三種結構分類,只是界定在地上樓層的「主要結構」,其實它們彼此是交互運用的,如能將優點用在適合的位置即能達到「結構合理化」和「建築輕量化」與建築「耐久性」,例如以地下三層,地上15層SS鋼結構為例:由於地下結構體和地盤連結,在地震時震動週期一致,所以下部結構需要的是結構強度而不是結構韌性(韌性設計),而「鋼筋比」偏向混凝土抗壓比重,因此,低樓層或地下室之基礎性結構、包含連續壁,皆能設計相當厚度與強度的混凝土保護層。在工程實務上,台北、高雄通常為開挖深度1/20為連續壁厚度,例如連繫壁深度20公尺,厚度則達1公尺後,混凝土抗壓(註3)強度約5000psi左右。當完成下部結構時在和建築物上部結構搭接兩個梁位,使鋼柱與RC材料應力能夠完全轉換,通常於地上一樓為結構轉化層,此部分為SRC,地上二層開始則改為SS系統。
任何工法和材料都有它先天上的優缺點,只要透過好的設計和組合,發揮材料天生優點,避開材料先天缺陷,加以整合學術文獻、各類技師及專業廠商的數據與實作,只要掌握科學理論和實務性的落實,以良好的施工品質即能達到永續綠能、經濟性、耐久性之百年結構。
2-1 營運量重點-日常節能指標
另外,依九大指標中的「日常節能指標」:在建築物的建材生產到日常使用,以及最終拆除的各個階段中,耗能最大的部分其實是日常使用的「空調」與「照明」,因此以此兩項的節能效果做為評估重點,例如建物設計的外觀、採光、日曬方位以及空調與照明的節能設備使用。這項指標也同時被定義為「夏季尖峰時期空調系統與照明系統的綜合耗電效率」。
綠建築之「日常節能指標」是以最大耗電部分的空調與照明用電的節能設計為重點,並將節能評估重點設定在建築外殼節能設計、空調效率設計及照明效率設計等三大方向。
2-2 建築日常節能的重點在於「建築外殼」
建築物為提供人類在生活上的各種活動,如居住、娛樂、辦公、教育、交通、醫療、文化 …而形成的構造物,其目的在於阻絕外部氣候對內部活動的干擾,而建築外殼就是界定內部與外部的元素。「建築物外殼」依建築物節能規範設計規範之定義,建築物所直接暴露於外氣,熱能可內外相互傳透支外圍構造,包含屋頂、外牆、開口部(包含通風口、門、窗)、陽台、遮陽板、雨遮⋯等,不包括地面層以下外圍構造。
2-2-1 建築外殼之構成
建築物外殼構成要素甚多,又可區分為透光部位(玻璃窗或開口部)與不透光部位(實牆、門或屋頂樓版等)。(文獻3)
(一) 透光部分
建築物外殼中,容許光線與熱射直接穿透的部分,例如:陽台落地窗、一般玻璃窗、屋頂採光罩或開口等。
(二) 不透光部分
建築物外殼中,除掉透光部分之其他部位,包括實牆、門或屋頂樓板等。
建築外殼包含外牆,而外牆的構成亦分為開口部及非開口部(牆體部)兩大部分,開口部包含門及窗兩部分,非開口部包含所有實牆,因此,外牆將空間劃分成室內、外兩部分的構造體,當建築環境中所遭遇的音、光、熱、氣、水等自然因子,都受到建築外殼的控制才能進入室內,所以建築外殼是影響室內環境重要因素。
2-2-2 「建築外殼」必須達到良好的「性能」(稱為外殼性能):
結構強度相關性能,如外牆受張力、壓力、剪力、彎矩、扭力…之變形,以及防火、防水、防盜,還有內部結構防鏽、抗劣性能。
(二)舒適性藉由建築外殼之遮蔽與穿透兩種功能,以取得室內通風及採光等效果,除了上述的物理量之外,還必須滿足隔音、隔震性能….。
(三)環保與美觀表面材料具良好的抗劣、耐候性能才能維護建築外觀,同時也必須達到環保、綠能與材料更新、維護的機制。
3-1 鋼筋混擬土的發展
人類自文明時代以來,從古代石造、木造直到近代鋼筋混凝土(RC)的問世。自從1872年,世界第一座鋼筋混凝土結構建築在美國紐約落成,人類建築史上從此展開一個新的紀元,更在1900年之後在工程界方得到了大規模的使用。1928年,一種新型鋼筋混凝土結構形式預應力鋼筋混凝土出現,並於二次世界大戰後亦被廣泛地應用於工程實踐。
而台灣40年來的住宅建築也大量使用鋼筋混凝土結構興建,正當全台灣都在如火如荼的展開都更危老重建時,其實也沒人探討過台灣建築怎如此短命?會是建商偷工減料嗎?或者是因為法規規範不全?民眾更以為921以後修正的韌性結構設計將有了更安全,使用更久的房子。
綜觀世界開始發展「綠建築」時,各國開始邀請專家學者制定了相關法規,試圖改善目前建築產業;從設計、營建、營運使用、拆除(資源再生或廢棄處理)。首先我們得先從建築生命週期角度思考其各種結構材料本身的物理性、化學性、施工性、經濟性⋯等問題加以探討。3-2 鋼筋混凝土先天基因缺陷-中性化(註4)
由於台灣地震頻繁,當RC施工中灌漿正巧遇上地震時,混凝土和鋼筋握裹力將大大折損,嚴重影響結構強度。也因氣候關係,導致鋼筋混凝土結構物多暴露於高溫、潮濕的環境。而長時間暴露於高濕高溫環境的混凝土,其內部會產生高水分,使內部水化生成物被溶解,導致混凝土的總孔隙率或連通性增加,當混凝土長時間接觸空氣中二氧化碳,造成混凝土中性化(或稱碳化),也增加鋼筋腐蝕之機率,進而發生因腐蝕產生膨脹,使混凝土開裂、剝落(膨共),外觀開始產生白華進而掉磚,因為混凝土結構承載力降低,也喪失結構耐震性,直接危害居住使用與安全性。
3-3 推動鋼結構住宅-讓綠建築事半功倍
鋼構造的時代已經來臨,以目前地球資源、環保問題,加上鋼構具有強度高、自重輕、材料均質等力學特性的優勢,二十世紀末期由於鋼材鍛造技術及銲接技術的成熟,加上鋼構使用在建築工程興建施工時,但能縮短施工工期,且能因應將來建築物因時代更迭造成的循環重建,或者提高建築壽命、更安全、更經濟。再者,由於鋼材在生產及製作過程中所產生的污染少,又具有資源回收再生使用的好處,鋼構具有上述許多優勢,更應該是台灣及全世界的建築結構材料。(目前鋼材規範為SN鋼材,主要是用在房屋結構,尤其在台灣的氣候與地質條件)(註5)
鋼材之材料特性影響建築生命週期,也造就了現代鋼構產業的趨勢,依據OECD (Organisation for Economic Co-Operation and Development) 的統計,營建產業是全世界最大的產業之一,佔全球GDP13.4%,約7.5兆美元(WSA 2013)。同時,營建產業耗用鋼量為全世界鋼鐵產量之50%以上。鋼結構產業既是鋼鐵工業中最重要的關鍵性產業,也是營建產業中極為重要之一環,具有承上啟下帶動其他相關產業發展的關鍵特性,是一種勞力、技術、資金密集的產業,對台灣鋼鐵產業以及營建產業的重要性不言可喻。首先,台灣地區營建用鋼結構僅占全台灣鋼鐵於2013年總產量約3400萬公噸的5.0% ~ 7.5%左右,與歐美日等先進國家30%~40% (2010)左右(北歐國家甚至高達85%以上)的比例仍存在相當之差距。自921地震之後,考慮住宅制震功能性需求以及安全等因素,住宅以及非住宅建築使用鋼結構的比例已經明顯提高。而全球對於減碳及永續的要求越來越高,鋼鐵的使用不僅在減碳成效上較使用混凝土明顯有效,同時,鋼鐵的循環使用率超過90%,更是環境永續建材的最佳選擇。(文獻4)
建構完善的建築生命週期,延長建築物的壽命,從建築物誕生-興建-使用-維護-拆除...都有健全而完善的機制,如能全面推動台灣鋼構住宅,無論是都市景觀或是人民生命、財產安全乃至營建產業缺工、缺料問題。由於鋼構造的梁柱結構與構件單元可經由電腦精算,能在工廠生產及加工,有利於營建自動化發展,進而達到綠建築、地球環保之國際趨勢!
3-4 傳統帷幕牆限制了鋼構住宅的發展
鋼構造外牆一般採帷幕牆系統(如圖1),組合方式是將外牆吊掛在構件上,再固定於鋼樑,位於樓板上下之間的縫隙以隔板包覆加防火填塞作為防火區劃,由於帷幕牆自重輕,模組化單元,施工組裝快。因為單元化的構件,使得每處的接合點可調整梁柱結構和帷幕構件的施工誤差,也容易吸收層間變位,但先天的缺點式樓層接合氣密性不佳,容易造成樓層之間使用上的相互影響。
另外,商用類建築管道間、電梯、廁所、茶水間、廚房區都是集中設置,通常稱為「服務核」(Service Core)。而住宅建築有較多的「水區」需求,如廁所、浴室、陽台、廚房等,此類空間都是分散設置,而且坪數較大的住宅有可能採彈性格局,或者如國際上所稱-開放建築(Open building),因此,該樓層之樓板與外牆如果接合不佳,便容易造成樓層之間的相互影響,另一方面,住宅空間需要更高的舒適要求,如隔音、隔震、等性能,這也是商用建築與住宅建築最大的差別。
鋼結構韌性強,但缺點是變位量大,影響住宅居住舒適度,這方面其實可利用斜撐或制震壁減少建築搖擺週期,達到舒適要求。
4-1 本發明專利的內容
本發明專利利用各層樓板作為外牆的固定基礎,使得外牆為獨立系統(如圖2),樓層分段分層有利處理防火、防水、防火、隔間..等性能要求。因此本發明專利提供了解決外殼各部位結合與施工方案,包含DECK鋼承板與外牆、外牆與陽台結合,以及外部施工鷹架的安裝、固定、與拆除步驟。
另外,由於都市新舊建築交疊,基地新建建築緊貼鄰房導致外牆無法搭建鷹架施工。
如能夠善加運用本發明專利,即能將鋼構造大量運用於住宅,徹底解決帷幕牆在建築外殼構造各部位結合上的缺點,亦能克服施工環境不佳的問題。
4-2 本發明專利的目的
當數據告訴我們地球節能減碳的第一要務即為推動綠建築,而綠建築首重住宅類型,也唯有鋼結構才能讓住宅建築產生最大效益。本發明專利目的是為了提供鋼結構運用在住宅,使建築外殼各部構造的結合創造出單純化、經濟化、耐久化、系統化,釐清施工介面,並建立施工步驟。
當結構達到輕量化之後,另一個重要的指標為「日常節能」,兩大主軸-照明與空調,這也是鋼構造運用於住宅所必須克服的問題。
(外殼=外牆、開口、窗、陽台、遮陽板..選擇方位、顏色、材料特性…而台灣的環境和氣候條件…白色外牆塗料最適合亞熱帶氣候)。
4-2-1 有利推動住宅營建自動化
鋼結構系統採用高精度,可利用程式控制的機器生產,這表示所有的構構建築都是透過準確的電腦機械製造生產,並在工廠內部進行拼裝後,運至工地現場進行組裝。工地一次性組裝也能克服都市小基地施工困難,施工重機具及車輛進出動線亦能比傳統工法相對容易克服。
4-2-2使鋼結構滿足住宅性能要求
由於台灣多數住宅為鋼筋混凝土構造,而鋼構造在房屋市場除了耐震與具備環保優勢之外,其他有關居住的安全性能、舒適性、日常維護性⋯。應該採取科學實測數據來做比較,才能改變傳統習慣,逐漸影響住宅市場,進而改變業界建築工法,提高建築安全性能。何況,延長建築壽命不僅保障人民生命安全,也是增建民眾財產價值。而未來鋼結構拆除也不造成日益加重之「營建廢棄物稅」,現今地球環保意識抬頭,「碳足跡」將是RC老屋拆除的高昂的負擔(可以說是土地的負債),如此台灣住宅發展才能迎合21世紀之國際主流。
以下為鋼結構住宅各部構造的性能數據:
(一)耐震:
壽命長、韌性強,延展性佳,建築用鋼材在台灣分成兩大體系,一個是美國標準,如ASTM,A36、A572、A992⋯⋯等,另一個是台灣的標準CNS,分為一般結構用鋼材(SS系列)、銲接結構用鋼(SM系列) 以及建築結構用鋼(SN系列),其中SN鋼材就是建築結構用鋼之標準(註5),最能符合耐震設計性能需求。SN鋼材對化學成分的控制相對嚴謹,其碳、磷及硫等元素含量都比其他鋼種低很多。
鋼構韌性設計:國立台灣科技大學陳生金教授在執行「行政院國家科學委員會」時研究計畫之研究成果,以「梁翼梯形高韌性梁柱接頭」之發明,同時獲得台灣、美國、日本及歐盟等國際性專利。當這個發明之後,後續也有相關研究開始展開,至今仍為鋼結構韌性剛構架梁柱接頭之主流。
(二) 防火:
當鋼材遭遇火災時,鋼材表面溫度達300~400℃後,強度和彈性模量會明顯降低,當達500~600℃時,強度接近零,且恐導致整個建築物倒塌,因此,鋼構需要採取保護措施。一般業界在鋼構上會採取防火被覆保護,或施作防火毯、防火板、混凝土、膨脹性防火塗料或噴覆式防火材料,以提高鋼材之防火時效。
(三) 防鏽:
主要結構鋼梁鋼柱從工廠預製時,運至工地吊裝,不對鋼材做表面防鏽處裡,主要目的是讓防火被覆材料完全附著於鋼材表面,使之產生更加黏著力,包覆鋼材時更加緊密阻隔水分與空氣層達到對鋼材的防鏽功能。
(四)防水:
利用本發明專利可將外牆與樓板結合,RC止水敦與RC樓板結合,截斷水的路徑,位於多水區:陽台、浴室、廚房,採RC地板表面貼磚,外牆面掛混凝土板乾式施工,板材接合貼抗裂層,外加防水層,表面採天然塗料。
另外,當RC牆發生漏水現象時會產生毛細管原理,使得維修上難以阻絕,(俗稱抓漏)因而產生壁癌,使外牆掉磚,失去保護加速混凝土中性化,進而加速鋼筋腐蝕,破壞結構,惡性循環。而鋼構外牆為乾式施工,內部有空氣阻斷水的路進,更容易維修(容易抓漏)
(五)隔音:
外牆與隔戶牆之隔音性能:
隔音是指對聲音於物質間傳遞以隔音建材來阻隔,可防止外來噪音進入室內或室內聲音往外傳遞
我國對於高性能防音綠建材也有相當嚴謹的規範存在,有一套評定標準來審查其建材是否符合防音標準,主要先依照評定項目分為隔音材:(一)外牆、屋頂板、分戶牆、分間牆(二)門、窗(三)樓板表面材。吸音材則檢測建物內部如天花板面、牆面、地板面,其所用的材料或構造組件,評定項目為吸音材,例如穿孔石膏板、穿孔木板、玻璃棉、岩棉、穿孔鋁板、噴附木纖維、噴 附岩棉、噴附玻璃棉、礦纖板、微孔板及空間吸音體如垂吊吸音筒、吸音垂板、吸音簾等。 而評定方式須要由內政部認可之綠建材相關機構,或建材測試報告的提供,同樣依照防音的三項能力劃分(取自內政部建築研究所)
本發明專利乾式外牆及隔戶牆作法:
1.無機混凝土板1.2公分厚兩側(板厚提高至1.5cm效果極佳),(空氣層+岩棉,性能超越15RC Wall),內部60K岩棉5公分厚雙層..隔音性能51dB
(RC15公分-48-50Db,1b磚牆-35dB)
2.內部填塞岩棉也具備空氣層,可阻斷外牆板結構,聲音產生的振動傳導(類似熱傳導物理現象)。當外牆得到隔熱、隔音效果時,同時也綠建築之「日常節能指標」重要的外牆構造方式。
(六)隔熱:
一般住宅RC結構會產生白天吸熱、晚上放熱的現象,使室內空氣一直維持高溫悶熱,而鋼構造住宅因為外牆採乾式施工。
內部填塞岩棉也具備空氣層,可阻斷結構體吸熱所產生的熱傳導(類似音傳導物理現象)。當外牆得到隔熱、隔音效果時,同時也綠建築之「日常節能指標」重要的外牆構造方式。
4-2-3乾式工法讓施工更便捷
台灣大樓外牆掉磚頻傳,為何新建案還是依賴貼磚?(註6)
因為台灣的住宅大樓度部分都是RC構造,而RC外牆皆採濕式工法,也就是泥作打底,因而產生兩種原因:
1.人工打底不平整,導致建商不敢做塗料。
2.因為泥作打底的關係,導致鷹架汙染嚴重,如果採塗料,可能會造成完工後拆架時的汙染或破壞。
鋼構造外牆則採密集C型鋼固定,外牆安裝混凝土板,因為為乾式施工的關係,平整度足夠,也無泥作汙染問題,所以表面即能以天然塗料為主,貼磚的部分也只有在陽台處貼磚,使用的外牆磚吸水率必須低於0.2%,其餘皆採天然石製成的外牆塗料,並在水平處設置滴水線,讓建築外關永保如新,維修保養容易,混凝土板本身材料為無機,質地堅固,是採集自天然之石材如天然大理石、石英石…等,因此,當外牆塗料因日積月累而附著在表面的灰塵與泥砂,經過表面洗滌後即可滾刷一次後,新材料與舊材料完全可以密合。
本發明專利不建議外牆表面外掛石材或金屬鋁板,主要原因在於石材自重大,不利結構輕量化,石材為開採之礦山在許多國家是禁止開採的,如土石流、水保、生態等環境保護問題,被歸類為不環保材料。另外一個新穎的材料金屬板-鋁板,其表面烤漆含有大量有機揮發物(VOC),對環境污染極嚴重,浪費能源,雖然氟碳烤漆有許等級但畢竟還是有一定的使用年限,因為鋁板表面無法重新烤漆。
另外這兩者材料接合如果採空縫,則無法保護內部鋼材(如果是RC結構則無法保護混凝土)如果採填縫,矽利康壽命15年,日後劣化不易更新(接縫點過大)。
所以無論是石材或鋁板,或是貼磚(有掉磚問題)皆不易維修或更新,除了工程浩大,施工昂貴,且不符合鋼構環保訴求!
(二)施工快速、安全、環保:
由於本發明專利創造了鋼構外牆結合的工法,施工程序簡單、安全、快速。除了免除傳統RC工班彼此的干擾,(因為模板和鋼筋板紮有前後順序與搭配)和天候影響之外:
1.鋼構施工快速優於傳統RC主要原因在於,鋼結構梁柱單元在工廠預製完成後,立即運至工地組裝,梁柱結構及鋼承板安裝組立完成後,即可配筋並澆置混凝土完成樓地板。
2.可搭鷹架施工.
傳統鋼構建築外牆為帷幕牆系統或預鑄PC板,外部施工時採塔吊式以及搭配爬升式安裝外牆,因此外部無法搭傳統鷹架施工,本實用新型施工步驟提供了安裝外牆結合工法與並且能與鷹架安裝至拆除,工序與安全皆能夠執行。
步驟:樓板完成後可立即搭建外部施工鷹架,即可施作防火被覆,及後續組裝乾式外牆及門窗,外牆塗料…等工序。
3.有利防火被覆效能(註7)
本發明專利125C密集型鋼桿式外牆能夠快速組裝完成封閉的空間,鋼材在不受潮濕的環境之下才能不做防鏽處理,讓防火被覆完全包覆鋼材,達到最佳防火與防鏽效果(美國原廠標準做法),如採傳統帷幕牆或預鑄外牆施工,通常鋼柱及鋼梁會上一層防鏽,因為施工順序的原因,使鋼材長時間暴露外氣中,鐵件表面容易生鏽,使防火被覆無法附著在鋼材上,所以必須多增加一到菱格網使之附著於表面。
同防鏽性能:主要結構鋼梁鋼柱從工廠預製時,運至工地吊裝,不對鋼材做表面防鏽處裡,主要目的是讓防火被覆材料完全附著於鋼材表面,使之產生更加黏著力,包覆鋼材時更加緊密阻隔水分與空氣層達到對鋼材的防鏽功能。(註8)
4-3 具體實施方式
4-3-1 外殼各部構造詳圖
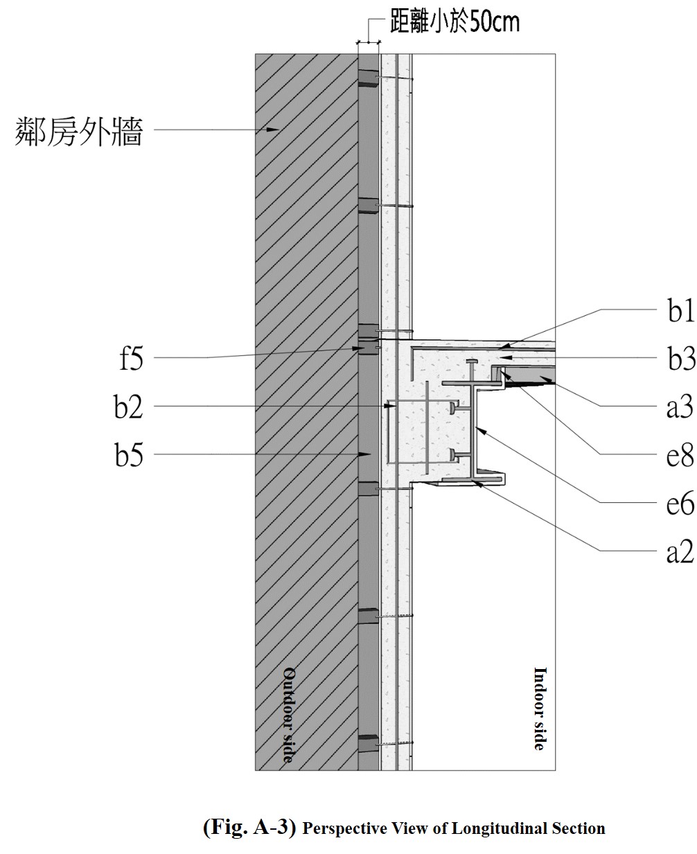
(外牆除A-3圖之外全數乾式施工)
(A圖)-H鋼梁在室內側:
因建築基地之新建建築物外牆與鄰房外牆的施工距離條件產生了三種方案,以各剖面圖:
(A-1圖)-新建建築外牆與鄰房距離大於100cm-外牆乾式施工(有外部鷹架)
(A-2圖)-新建建築外牆與鄰房距離大於50cm,小於100cm-外牆乾式施工,(免外部鷹架)
(A-3圖)-新建建築外牆與鄰房距離小於50cm-外牆濕式施工,免外部鷹架
(B圖)-H鋼梁在戶外側:
(C圖)-H鋼梁在戶外側與陽台降版結合:
(D圖)-BOX鋼柱與外牆結合:
(D-1圖)隔音區劃排除鋼柱/平剖詳圖(橫剖)
(D-2圖)包覆鋼柱/平剖詳圖(橫剖)
(D-3圖)隔音區劃排除鋼柱(柱在轉角處)/平剖詳圖(橫剖)
4-3-2 各部位名稱
a主結構鋼材
(a1)BOX鋼柱,(a2)H鋼梁,(a3)DECK鋼承樓板,(a4)DECK擋泥板
b鋼筋混凝土及混凝土(板)
(b1)DECK上方鋼筋(或點焊鋼絲網),(b2)各部配置鋼筋,(b3)混凝土,
(b4)外牆RC止水墩,(b5)混凝土外牆板,(b6)混凝土板戶外包覆鋼梁用,
(b7)矽酸鈣板室內包覆鋼梁用
c輕型鋼及各類金屬構件
(c1)125型C型鋼,(c2)Z型鐵件,(c3)特製鋁擠型條(橫料),
(c4)特製鋁擠型條(縱料),(c5)鋁企口天花,(c6)鍍鋅方管,
(c7)鋁窗固定構件,(c8)鋁窗框、門框,(c9)滴水線,
(c10)鋁格柵或沖孔鋁板,(c11)欄杆鐵件
D外飾面板及表面材
(d1)天然塗料,(d2)外牆丁掛磚,(d3)鋁板或沖孔鋁板,(d4)格柵,(d5)石材
e黏著劑、填塞材及防水層、防火層、防鏽層
(e1)乾式外牆填入岩棉60kg/m3,(e2)益膠泥,(e3)抗裂網,(e4)防水層,
(e5)外牆塗料,(e6)防火被覆,(e7)矽利康,(e8)防火填塞,(e9)門窗砍縫
f假設工程
(f1)牙條埋入件,(f2)牙條,(f3)螺帽,(f4)施工鷹架,(f5)鄰房板材固定端
4-3-3 細節與步驟
(A-1圖)- H鋼梁在室內側:新建建築外牆與鄰房距離大於100CM-外牆乾式施工(有外部鷹架),基礎結構完成後,放樣、吊裝⋯。
施工順序(詳A-1縱剖):
- (a1)BOX鋼柱+(a2)H鋼梁/各層組立。
- (a3)DECK鋼承樓板+(a4)DECK擋泥板/各層鋪設。
- 放樣配管。
- (b1)DECK上方鋼筋/鋪設各樓層鋼筋(或點焊鋼筋網)。
- (b3)混凝土/澆置各層樓板。
- (f3)施工鷹架/搭建外部鷹架,固定於DECK擋泥板(第一次固定)。
- (b4)外牆RC止水墩/植筋灌漿。
- (c2)Z型鐵件/放樣安裝。
- (e6)防火被覆/各層BOX鋼柱、H鋼梁噴覆,厚度依防火時效需求。
- (c1)125型C型鋼/放樣、間距及校正垂直線後固定。
- (c1)125型C型鋼/開口部、門或窗立面放樣(配合橫料及固定鐵件)。與地界距離不足150cm者不得開窗、開門。
- (b5)混凝土外牆板/先固定外部。
- (e2)益膠泥/填塞外部板材間縫。
- (e3)抗裂網/閉合外部板材間縫。
- (e1)乾式外牆填入岩棉60kg/m3/內部填塞兩片(可與12-14同步)。
- (b5)混凝土外牆板/固定內部。
- (c7)鋁窗固定構件/固定。
- (c8)鋁窗框、門框/安裝。
- (e9)門窗砍縫/全部填塞。
- (c9)滴水線/安裝門窗型。
- (e8)防火填塞/外牆與鋼梁或DECK、鋼柱與外牆C型鋼…間縫全部填塞。
- (e4)防水層/外牆板全棟噴覆。
- 放樣牙條固定位置。
- (f1)牙條埋入件/安裝。
- (c3)特製鋁擠型條(橫料)/安裝。
- (f2)牙條/安裝,逐一取代第一次鷹架固定端。
- (e7)矽利康/填打各部鋁窗框、門框及特製鋁擠型條。
- (d2)外牆丁掛磚/施作陽台外牆。
- (d1)天然塗料/施作外牆表面。
- (f4)施工鷹架/逐層拆除鷹架,逐一拆除(f2)牙條,同時鎖固(f3)螺帽或填補矽利康後塗料平整封堵。
- 當層外牆完工。
(A-2圖)-H鋼梁在室內側:新建建築外牆與鄰房距離大於50cm,小於100cm-外牆乾式施工,(免外部鷹架)基礎結構完成後,放樣、吊裝⋯。
施工順序(詳立剖):
- (a1)BOX鋼柱+(a2)H鋼梁/各層組立。
- (a3)DECK鋼承樓板+(a4)DECK擋泥板/各層鋪設。
- 放樣配管。
- (b1)DECK上方鋼筋/鋪設各樓層鋼筋(或點焊鋼筋網)。
- (b3)混凝土/澆置各層樓板。
- (b4)外牆RC止水墩/植筋灌漿。
- (c2)Z型鐵件/放樣安裝。
- (e6)防火被覆/各層BOX鋼柱、H鋼梁噴覆,厚度依防火時效需求。
- (c1)125型C型鋼/放樣、間距及校正垂直線後固定。
- (c1)125型C型鋼/留設施工開口(俗稱狗洞)與地界距離不足150cm者
- 不得開窗、開門。
- (b5)混凝土外牆板/先固定外部。
- (e2)益膠泥/填塞外部板材間縫。
- (e3)抗裂網/閉合外部板材間縫。
- (e1)乾式外牆填入岩棉60kg/m3/內部填塞兩片(可與12-14同步)。
- (b5)混凝土外牆板/固定內部。
- (e8)防火填塞/外牆與鋼梁或DECK、鋼柱與外牆C型鋼…間縫全部填塞。
- (e4)防水層/外牆板全棟噴覆。
- (d1)天然塗料/施作外牆表面。
- 封堵施工開口。
- 當層外牆完工。
(A-3圖)-H鋼梁在室內側:新建建築外牆與鄰房距離小於50cm-外牆濕式施工,(免外部鷹架)基礎結構完成後,放樣、吊裝⋯。
施工順序(詳立剖):
- (a1)BOX鋼柱+(a2)H鋼梁/各層組立。
- (a3)DECK鋼承樓板+(a4)DECK擋泥板/此層在(A-3圖)處,鋪設H鋼梁位置。
- 放樣配管。
- (b1)DECK上方鋼筋/鋪設各樓層鋼筋(或點焊鋼筋網)。此層在(A-3圖)處,配筋至H鋼梁位置。
- (b3)混凝土/澆置各層樓板,此層在(A-3圖)處,澆置至H鋼樑位置。
- (f5)鄰房板材固定端。
- (b5)混凝土外牆板/先固定外部外牆板於(f5)鄰房板材固定端。
- (e4)防水層/由內部施作外部之外牆板防水層。
- (b2)各部配置鋼筋/配置外牆鋼筋。
- (b5)混凝土外牆板/利用螺桿固定內部外牆混凝土板,頂至H鋼梁底水平(假固定)。
- (b3)混凝土/由直上層樓板由下澆置混凝土,澆置高出直上層樓板10cm,重複(A-3圖)逐層施作,直至突出於鄰房後,改由(A-1圖)方法接續往上樓層。
- 各層BOX鋼柱、H鋼梁噴覆,厚度依防火時效需求。
- 當層外牆完工。
(B圖)-H鋼梁在戶外側:新建建築外露梁與鄰房距離大於100cm
(有外部鷹架),基礎結構完成後,放樣、吊裝⋯。
施工順序(詳立剖):
- (a1)BOX鋼柱+(a2)H鋼梁/各層組立。
- (a3)DECK鋼承樓板+(a4)DECK擋泥板/各層鋪設。
- 放樣配管。
- (b1)DECK上方鋼筋/鋪設各樓層鋼筋(或點焊鋼筋網)。
- (b3)混凝土/澆置各層樓板。
- (f3)施工鷹架/搭建外部鷹架,固定於DECK擋泥板(第一次固定)。
- (b4)外牆RC止水墩/植筋灌漿。
- (c2)Z型鐵件/放樣安裝。
- (e6)防火被覆/各層BOX鋼柱、H鋼梁噴覆,厚度依防火時效需求。
- (c1)125型C型鋼/放樣、間距及校正垂直線後固定。
- (c1)125型C型鋼/開口部、門或窗立面放樣(配合橫料及固定鐵件)。與地界距離不足150cm者不得開窗、開門。
- (b5)混凝土外牆板/先固定外部。
- (e2)益膠泥/填塞外部板材間縫。
- (e3)抗裂網/閉合外部板材間縫。
- (e1)乾式外牆填入岩棉60kg/m3/內部填塞兩片(可與12-14同步)。
- (b5)混凝土外牆板/固定內部。
- (c7)鋁窗固定構件/固定。
- (c8)鋁窗框、門框/安裝。
- (e9)門窗砍縫/全部填塞。
- (c9)滴水線/安裝門窗型。
- (e8)防火填塞/外牆與鋼梁或DECK、鋼柱與外牆C型鋼…間縫全部填塞。
- 下列為包覆外露梁之工序
- (c6)鍍鋅方管/固定於外牆C型鋼與H鋼梁
- (b6)混凝土板戶外包覆鋼梁用/直接鎖固
- (c9)滴水線/固定於外露梁上方DECK混凝土表層,滴水線板固定後可直接貼磚或貼混凝土板,滴水線(接續處務必施打矽利康密合)。
- (e4)防水層/外牆板全棟噴覆。
- 放樣牙條固定位置。
- (f1)牙條埋入件/安裝。
- (f2)牙條/安裝,逐一取代第一次鷹架固定端。
- (e7)矽利康/填打各部鋁窗框、門框(接續處務必施打矽利康密合)。
- (d2)外牆丁掛磚/施作陽台外牆。
- (d1)天然塗料/施作外牆表面。
- (f4)施工鷹架/逐層拆除鷹架,逐一拆除(f2)牙條,同時鎖固(f3)螺帽或填補矽利康後塗料平整封堵。
- 當層外牆完工。
(C圖)-H鋼梁在戶外側與陽台降版結合:新建建築外露梁與鄰房距離大於100cm
(有外部鷹架),基礎結構完成後,放樣、吊裝⋯。
施工順序(詳立剖):
- (a1)BOX鋼柱+(a2)H鋼梁/各層組立,包含陽台降板懸臂梁。
- (a3)DECK鋼承樓板+(a4)DECK擋泥板/各層鋪設,包含陽台降板懸臂梁上方DECK 。
- 放樣配管。
- (b1)DECK上方鋼筋/鋪設各樓層鋼筋(或點焊鋼筋網)。
- (b3)混凝土/澆置各層樓板。
- (f3)施工鷹架/搭建外部鷹架,固定於DECK擋泥板(第一次固定)。
- (b4)外牆RC止水墩/植筋灌漿。
- (c2)Z型鐵件/放樣安裝。
- (e6)防火被覆/各層BOX鋼柱、H鋼梁噴覆,厚度依防火時效需求。
- (c1)125型C型鋼/放樣、間距及校正垂直線後固定。
- (c1)125型C型鋼/開口部、門或窗立面放樣(配合橫料及固定鐵件)。與地界距離不足150cm者不得開窗、開門。
- (b5)混凝土外牆板/先固定外部。
- (e2)益膠泥/填塞外部板材間縫。
- (e3)抗裂網/閉合外部板材間縫。
- (e1)乾式外牆填入岩棉60kg/m3/內部填塞兩片(可與12-14同步)。
- (b5)混凝土外牆板/固定內部。
- (c7)鋁窗固定構件/固定。
- (c8)鋁窗框、門框/安裝。
- (e9)門窗砍縫/全部填塞。
- (c9)滴水線/安裝門窗型。
- (e8)防火填塞/外牆與鋼梁或DECK、鋼柱與外牆C型鋼…間縫全部填塞。
- 下列為包覆外露梁之工序
- (c6)鍍鋅方管/固定於外牆C型鋼與H鋼梁
- (b6)混凝土板戶外包覆鋼梁用/直接鎖固
- (c9)滴水線/固定於外露梁上方DECK混凝土表層,滴水線板固定後可直接貼磚或貼混凝土板,滴水線(接續處務必施打矽利康密合)。
- (e4)防水層/外牆板全棟噴覆。
- 放樣牙條固定位置。
- (f1)牙條埋入件/安裝外牆部分。
- (f2)牙條/安裝,逐一取代第一次鷹架固定端。
- (e7)矽利康/填打各部鋁窗框、門框(接續處務必施打矽利康密合)。
- (d2)外牆丁掛磚/施作陽台外牆。
- (c10)鋁格柵或沖孔鋁板,或(c11)欄杆鐵件/在陽台止水敦完成即可安裝此 工項。
- (d1)天然塗料/施作外牆表面。
- (f4)施工鷹架/逐層拆除鷹架,逐一拆除(f2)牙條,同時鎖固(f3)螺帽或填補矽利康後塗料平整封堵。
- 當層外牆完工。
備註說明:
(註1)台灣風土建築:
風土建築分兩個層面:
- 文化層面(人文、地文、水文):例如在地文化、民俗風情或地質與物種等等,因環境造成的建材選樣,影響建築特質、特色或形式。
- 氣候層面(物理量、地球科學):因台灣位處地震帶,且高溫、高濕多雨的亞熱帶氣候之海島型氣候。建築設計如果能夠呼應台灣環境物理條件,例如:多設計遮陽板、隔熱材、節能材、抗震結構系統、耐候材料或環保材料…等。
因此,當建築師在造型上或結構及材料運用,皆能滿足或呼應上述這兩大訴求,即可視為「風土建築」!
另外筆者認為,為何台灣房地產的住宅違反「風土建築」?原因就是建商無謂的「豪宅」訴求,大量石材雕塑、模仿歐洲古堡、巴洛克造型或大面積耗能的玻璃帷幕外牆…等。
(註2)台灣高層建築定義:
依台灣技術規則,建築高度50公尺或15層以上建築物為高層建築,而「超高層建築」其實並未有明確的規範,業界的共識是超過100公尺高的建築就屬於超高層建築,而建築高度120公尺以上,在申請建築執照時則需作環境影響評估,在結構方面,120公尺高度通常也是RC結構的極限值,普遍在120-150公尺則會考慮SRC結構,150公尺則以SS結構。
(註3)混凝土抗壓強度
一般而言,建築物每層混凝土用量是隨樓層而調整,由於低樓層必須具備較大的壓力及地震力,結構設計以最適強度與鋼筋配比達到平衡,韌性設計的結構才符合規範。
所以並不是混凝土強度愈強愈好,而是依據建築結構設計而定。
「混凝土設計強度」,單位是kg/cm2 (每平方公分可以承載多少公斤的重壓)。常見的混凝土設計強度為140~350kg/cm2 (公制單位),若換算成英制單位,則約是2000~5000 psi ,一般常見的透天厝用的混凝土設計強度大都是210 kg/cm2 (約3000 psi)。大樓七樓以上4000psi(280/cm2),以下和地下室連續壁5000psi(350kg/cm2)。
(註4)二氧化碳(CO2)在混凝土中的關係
混凝土發生中性化時,是由最外層漸漸向內侵入,當中性化層到達鋼筋時,腐蝕便開始進行。所以,中性化之進行速度決定了鋼筋腐蝕發生之時間。中性化之進行速度與甚多因素有關,但追根究底,則和二氧化碳(CO2)在混凝土中反應及擴散之速度有關。任何促進CO2擴散及反應之因素,會促使中性化之速度加快。中性化之速率和時間之關係式可以下式簡單示之:D=K開根號t/式中 D =中性化深度 K =中性化係數 t =時間由上式可以看出,當保護層愈厚,鋼筋表面混凝土中性化之速率便愈慢。而且每當保護層增加一倍,中性化速率便延緩四倍。K值則和二氧化碳滲透速度、混凝土中氫氧化鈣有關。綜合而言,影響混凝土中性化之因素約有下述數項:(1)外在環境;(2)水泥之成份;(3)混凝土中之水泥含量;(4)混凝土之滲透率;(5)混凝土之細密度;(6)混凝土中之裂縫;和(7)保護層厚度。(文獻5)
(註5)鋼材耐震性能
SN鋼材目前主要是用在房屋結構、廠房、車站等其他建築物,大樓及大型建築物已經使用普遍,使用等級為SN490B或C等級,如興建中的雲林高鐵,採用SN490B、C系列鋼材。但低矮層使用之SN400系列鋼材,國內雖有鋼鐵廠生產,但只有少數消費者知曉,以前都是以 SS400、SM400或ASTM A36興建,在日本低矮層建築使用鋼結構比例不低,但在阪神地震中,前述鋼材已被證實不具耐震能力,且之後設計之低矮層建築物都已SN鋼材,目前國內生產鏈已供應,將來設計者應優先採用SN等級之鋼材。
耐震建築結構鋼材規範國家標準
台灣內政部營建署自1997年起即參考日本SN鋼材標準,建立我國耐震建築結構鋼材規範國家標準(標準編號CNS 13812 G3262)。並自2003年起逐漸研修,擬對建築物之重要鋼骨結構,逐步引導使用SN等級的鋼材。在2014年,CNS 13812增添了降伏強度250 N/mm2等級的SN400YB、SN 400YC及降伏強度325 N/mm2等級的SN490YB、SN 490YC鋼材選項,作為耐震鋼材的標準。
台灣位於環太平洋地震帶,全球八0%的淺層地震都發生在這裡。九二一地震與阪神地震同屬淺層地震,都曾造成大規模的破壞性傷亡。因此,日本於阪神地震後,針對建築鋼材的耐震度與安全性制定更高標準,就是現今唯一符合耐震建築標準的「SN規格鋼材」。
SN鋼材全面提升鋼鐵「強度」、「韌性」、「銲接性」
H型鋼鋼材有分A36、A572G50、SS400、SM400A、SM490A、SN400YB、SN490B
(文獻6)
(註6)為何台灣大樓外牆磚常常掉磚?
台灣住宅大樓外牆磚掉落事件頻傳, RC結構外牆磚掉落的原因很多,除了本文上述提到的混凝土中性化問題之外,還有貼磚黏著性問題與磚本身材質的問題,而材質問題關鍵在於材料的「吸水率」。當在做貼磚作業時,打底粉刷層過分乾燥或丁掛磚本身的吸水性過大,導致磚膠泥的水份被吸收而失去接著強度:膠泥硬化所需的水份,如被底床或磁磚所吸收,則硬化不能完全,這是因為膠泥的硬化作用是水和反應,因此缺乏水份則效果盡失,造成外牆磚的脫落。
丁掛磚貼著用的膠泥因保水性差、乾燥快速,在磚貼附前即已硬化,缺乏接著強度:一般使用海菜粉調拌膠泥,此海菜粉就是保水劑,用來增長膠泥的塗裝時間 (Working Time) ,增加作業效率。但如果使用保水性差的海菜粉,會使膠泥在附著前就硬化。
加上台灣地震頻繁,相對溼度高,常有颱風,多雨,此時建商興建房屋時,如果選擇丁掛磚只重視表面質感,而不重視「吸水率」的數據,,將導致掉磚危險,當建築外牆失去表面層的保護也加速混凝土的劣化即「中性化」,進而造成掉磚現象。
補充說明:(低吸水率和燒窯時間成反比,即吸水率越低,燒窯時間越長。而燒窯時間和價格呈正比,即時間越長價格越貴。)
(註7)建築構造防火時效說明:
第三節 防火構造
技術規則第三章-建築物之防火/第六十九條表列建築物應為防火構造。建築物依使用類組,結構部位及總樓地板面積、建築樓高分別規定防火時效。
無論是RC、SRC、SS三種都是必須符合法規規範,防火性能是相對條件,依據建築技術規則的規定,防火時效由上至下逐漸增加。頂部四個樓層之時效為1小時;接下來的十個樓層為2小時;其餘均為3小時。
RC和SRC本身的鋼材以混凝土做為達到防火時效的材料,而SS係以防火被覆或防火漆作為保護,本實用新型以防火被覆為主要材料(材料防水性與保護性、耐久性佳,若加以利用混凝土板保護,使之不受外力,則能永久覆著於鋼材表面)。
(註8)鋼材的防火和防鏽有直接關連性:
防火被覆材料以台灣知名品牌為主,內含有水泥、蛭石及纖維與特殊之無機防火材料為主,物性優異,施工乾燥後堅固而質輕,耐衝擊、抗壓及抗彎能力更是高人一等,且內含抗裂纖維堅固而強韌,遭重擊而不剝落,即使經三小時火焰燃燒仍具相當物性,不粉化或鬆軟,可耐火場之對流風,並確保其防火力有利其防水性及耐候性。
防火漆和防火被覆比較
1.價格:
防火漆的價格是被覆的3-5倍,通常用在廠房,需要鋼構裸露的需求才會使用防火漆。
2.耐用度:防火漆壽命7-8年,如果無法在這方面得到良好的維護性,防火功能等同失效。而防火被覆如果不受外力破壞,可以永久使用,鋼構壽命多久,防火被覆就是多久。
3.防火被覆如果使用在住宅,無論要不要包覆,表面都要有一層透明保護漆,如果要裸露梁,可以再上一層壓克力漆。
參考文獻
(文獻1)林憲德/永續環境/今周刊/日期:2021-12-15
(文獻2):林盈秀/台達電子文教基金會
建築物生命週期評估 揪出高達28%被忽略的「隱含碳」
(文獻3):楊豐溢Feng-yi Yang
既有建築外殼改修構法之探討-以雙層壁為例
Improvement exterior wall original construction methods-A case study of double walls system
(文獻4):黃炎重Yen- Chung Huang
鋼鐵產業電子化採購系統之評估與建立
The Planning and Design of E-Procurement System of Steel Making Industrial
(文獻5):徐耀賜、茍昌煥、吳東昇
混凝土橋梁檢測時常見之結構損傷模式(三)
(文獻6):維基百科&陳正平/技師報No.46建築結構用軋鋼料SN系列鋼材特性
MSA Steel Structure Residential / Steel Structure Building Shell Structural Patented Construction Method
Patent certificate:
Republic of China Patent Certificate/Invention Patent
No. I823712, I823821, I823822, I823823
China/New Model No. ZL 2022 2 3481077.4
Inventions from the United States and Japan are under review
Inventor / 楊豐溢
Chapter 1 Research Motivation
Surrounded by sea, and sitting on an earthquake zone, Taiwan has high temperature and humidity typical of sub-tropical island climate. From a scientific perspective, architectural style is naturally influenced by climate, environment and physical factors. In fact, buildings are containers of human living, tied to many factors on many levels. This is why, in every era, Taiwan’s buildings are richly diverse in their design, style, structure and functionality, and in the religious, political, economic and artistic significance and substance they present in society.
1-1. Current situation of Taiwan’s construction industry
Dominated by colonial rules, Taiwan’s history is especially influenced by Minnan, Japanese and Western culture during the Japanese Occupation. Since the introduction of reinforced concrete to Taiwan, followed by classical Chinese elements with the arrival of the KMT government in Taiwan, and then the American modernist style that is mainstream worldwide, Taiwan’s architecture has become more diverse today. Many different styles of architecture can be easily found in Taiwan. In terms of economy, Taiwan’s geographical advantage has brought vibrant trade and high level of commercial activity.
Taiwan’s history and environmental characteristics have given its people the ability to learn from many countries and a high level of inclusiveness, resulting in bustling and diverse development of commercial buildings and cultural assets. However, most real estate buildings are not “cultural assets”. In fact, “residential housing” is the quickest and most frequently produced “product”, accounting for over 90% of urban construction. The problem with urban construction is, when construction firms only build housing as products, the public will only pay attention to their exterior packaging, forgetting the “quality” of the housing. People neglect to question if our living environment is compatible with Taiwan’s “local architecture” (Note 1), whether it has Taiwanese value, and whether it corresponds to Taiwan’s technological and economic accomplishments. In other words, the housing market is fraught with overly short-sighted business thinking, resulting in actual Taiwanese housing characteristics being often obscured by real estate culture, and difficulty in having Taiwan’s housing culture and quality being explored in a systematic manner.
At present, Taiwan’s housing market is facing a “triple high” problem, i.e. high housing price, high vacancy rate and high ownership rate. This, exacerbated by aging population and low birth rate, have changed the public’s housing needs, extending the period of housing ownership even when the lifespan of buildings is very short. With drastic changes in the international situation, political influence on economy, counter effect of inflation and interest rates on each other, and policy adjustment, are swaying overall property prices. While property prices in the city center remain high, many people who have to live in the city are forced to live in old houses, often for a long time as urban redevelopment is difficult due to limited urban sites and complication of ownership in multi-unit housing. Faced with old and unsafe buildings, and urgent need for urban redevelopment, severe manpower shortage in the construction industry and inflation have resulted in developers scrambling for building sites and manpower, making urban redevelopment even more difficult. With the emergence of many redevelopment zones and abundance of housing being built, increasingly higher housing prices goes hand in hand with increasingly older housing. In addition, increasingly older and fewer construction workers, manpower shortage, property speculation and the government’s property cooling measures continue to ensure the contradiction, and chaotic and complex conflict, between real estate culture and housing culture.
We often hear the media or even the government saying that old houses that are 30~40 years old account for over 50% of buildings in Taipei City, urban redevelopment in Kaohsiung is progressing slowly at a snail’s pace, the government must push for faster urban redevelopment and address the issue of unsafe and old buildings, etc. Thus, what the government and the public care about is the “success rate of urban redevelopment”. While urban redevelopment is a priority for any city, its success rate is also prime demonstration of the government’s accomplishment. However, the question is, why does no one think the “30 years” requirement for urban redevelopment is absolutely ridiculous? Perhaps many people believe that the short lifespan of Taiwan’s houses is due to poor construction skill in early years, construction firms cutting corners, and lax legal requirements.
Perhaps we should then explore what makes the urban redevelopment cycle so short. Is it an unhealthy short cycle? When such a vicious cycle enslaves everyone’s life, and threatens one’s life and property, we should examine the fundamental problems in the structure of Taiwan’s buildings. We should explore the direction for building structures worldwide in light of Taiwan’s climate and environmental conditions, global trends and Earth’s challenges. This is perhaps why we are pushing for steel-structure housing, whether for high-rise or low-to-medium-altitude buildings, for big construction sites or small construction sites. It is in fact an ideal solution for small, narrow sites within the lanes and alleys of Taiwan’s cities. Eventually, the Taiwan government and all construction firms will have to take this path, and this is the primary research motivation for this “invention patent”, which also provides the specific, implementable method.
1-2. Construction industry is world’s largest carbon emissions source
The United Nations Environment Program (UNEP) report in 202 pointed out that the buildings and construction industry is responsible for 35% of final energy use and 38% of energy-related carbon dioxide emissions globally in 2019, higher than “other industry” and “transport” sectors. Thus, energy conservation and emissions reduction are the key to achieving net zero emissions. (References 1)
Life Cycle Assessment (LCA) refers to the assessment of the potential environmental impact of products and services during their entire life cycle from production and usage to waste disposal. When focusing on the environmental impact of carbon emissions from buildings, it is observed that besides “operational carbon”, which is energy-related carbon emissions from their operational phase, there is “embodied carbon”, which is carbon emissions from other stages of the life cycle (non-operational phase”. (References 2)
According to Asia Pacific Embodied Carbon Primer, carbon emissions of buildings, from material production, construction, daily usage, demolition to recycling, is the highest on Earth, of which 25-28% comes from the operational phase and 10-12% from the non-operational phase (embodied carbon). In light of environmental challenges of our times, Taiwan has implemented the EEWH green building certification system which covers nine indicators, including biodiversity, foliage, water conservation, energy savings, carbon dioxide emissions reduction, construction waste reduction, indoor environment quality, water conservation, and garbage and sewage improvements. From the UN Framework Convention on Climate Change (UNFCCC) accomplished by the Earth Summit in 1992 to the Kyoto Protocol in 1998, nations worldwide have been actively reducing carbon dioxide emissions. In particular, the purpose of establishing the “carbon dioxide emissions reduction” indicator is to reduce carbon dioxide emissions of building materials during production and transportation.
1-3. Key element of green building - Structure
Global warming is currently the most urgent issue in environmental protection. How then do you reduce carbon dioxide produced by buildings? The key lies in the building structure and construction materials used. When designing buildings, architects must consider four major factors, i.e. structural rationality, architectural lightness, durability and use of recycled materials.
Being a small island nation with high population density, Taiwan is warm and humid as is typical of sub-tropical islands. It is also located directly over an earthquake zone and surrounded by typhoons every summer to autumn. In terms of earthquake resistance, the emphasis is on “structural system design” and “construction quality”. A good structure is one that satisfy both conditions. Neither SS nor SRC is absolutely safer than RC construction as conditions are relative. “Structural rationality” and “architectural lightness” must also be considered with earthquake resistance in mind.
There are three structural systems in Taiwan, i.e. RC structure, SRC structure and SS structure, but the priority is in deciding the structural system of buildings. Throughout the process from a building’s birth to end-of-life, including 1. Material production, 2. Design and construction, 3. Various types of usage, 4. Deterioration and repair, 5. Deconstruction, structural system remains an important focus in major indicators of green buildings. Thus, choosing the right structural system is the fundamental solution.
1-4. Analysis of three major structural systems in Taiwan
1-4-1. Reinforced concrete (RC)
Steel is combined with concrete as steel has tensile strength while concrete has compressive strength. This is the most common construction method used in Taiwan, accounting for over 90% of constructions in Taiwan (virtually 100% for buildings that are 5-15-story high).
The procedure involves structure forming, tying steel bars and pouring concrete. Tremendous concrete work, waterproofing, gap filling, smoothing and tiling are required to fix the structure’s surface. Construction industry is a highly labor-intensive industry, requiring many form setters, steel fixers and concreters, which is the greatest reason why Taiwan is facing severe labor shortage.
In terms of earthquake resistance, the design specifications for earthquake resistance of buildings have gone through many modifications since the September 21, 1999, earthquake in Taiwan. In the current design specifications, “resilience design” has become a mandatory requirement for RC structures.
1-4-2. Steel reinforced concrete (SRC)
SRC structure has been introduced because buildings that are over 30 stories high in Taiwan must meet the requirement for “resilience design”, which will cause an excessively large beam/column cross section that affect indoor space (particularly for basement parking space and first-to-eighth stories). However, both SRC and RC structures are equally strong and neither have energy dissipation capacity. Besides creating repetitive work (steel beams/columns + RC encasement) and increasing operating costs, it is also time- and labor-consuming.
The procedure involves encasing a basic structure consisting of steel beams/columns with steel bars, pouring concrete on the formwork, and completing work on beams/columns and floors. The existence of SRC aims to combine the earthquake resistance of RC and SS structures (resilience aids in resisting earthquake vibration) and housing comfort (increasing tensile strength to prevent buildings from being swayed by earthquake and wind). However, SS structural system can overcome these problems (elaborated in the next section).
In addition to the above-described functions, Taiwan housing developers rely on SRC structure mainly because:
- The wet process used in SRC structure is easier than the dry process used in steel structure.
- Misunderstanding that the combination of steel beams/columns plus RC protection is the solution once and for all, achieving fire proofing, water proofing, rust proofing, sound proofing, climate proofing, etc.
The truth is, in terms of environmental friendliness, SRC is the worst of the three. Not only does it not have any advantage in structural stress and construction procedure, it has the same problem as RC of concrete deterioration and is not as earthquake resistant as SS structure. Ironically, most developers in Taiwan refer to it as the designated structure for luxury housing.
1-4-3. Steel structure (SS)/ steel construction (SC)
As Taiwan is situated in an active seismic area, using SS/SC structure will provide better resilience, achieving more desirable earthquake resistance. It is generally used in supertall buildings (Note 2) because such buildings are greatly affected by earthquake movements and require higher earthquake resistance. Thus, SS/SC structure is mostly used for office buildings or public constructions (e.g. shopping mall, hotel, long-span sports stadium and factory).
Elaborating on the above, the original intention of the SRC system is to combine the earthquake resistance of RC and SS structures (resilience helps to resist earthquake vibration) with the comfort of residential housing (increasing tensile strength to prevent swaying due to earthquake and wind). However, these can be done with diagonal bracing and seismic damper as well, controlling displacement at 0.002%, which is lower than displacement of reinforced concrete, greatly making up for the weakness of SS. Clearly, SS structural system should be the future direction of modern buildings, especially for residential buildings.
The three types of structure described above only refer to the “main structure” above ground but they are in fact interchangeable. “Structure rationality”, “architectural lightness” and “durability of buildings” are achieved when their advantages are used in the right place. For instance, for a steel structure building with three basement levels and 15 above-ground levels, the below-ground structure requires tensile strength rather than resilience (resilience design) because it is connected with the land and will have the same oscillation frequency in an earthquake, and will tend to have more concrete for compressive strength in its reinforcement ratio. Therefore, in low-altitude buildings or basements, the basic structure, including diaphragm wall, may be constructed with thick and strong concrete layer. In practice, the diaphragm wall is usually 1/20 of the excavated depth in Taipei and Kaohsiung, and compressive strength of the concrete (Note 3) is approximately 5000psi. When the bottom structure is completed, it will connect with two beams in the top structure, allowing complete transfer of stress between steel columns and RC material. Normally, the first level above ground is where the structure change occurs; this part will be SRC and SS system will be used above the second floor.
All construction methods and materials have their inherent strengths and weaknesses. Excellent design and optimal combination can maximize advantages of materials and avoid their disadvantages. This, plus the integration of scientific theories in practice with academic references, and data and implementation by various skilled workers and manufacturers, will achieve high-quality construction that is sustainable, economic and durable.
Chapter 2 Green Building and Building Shell
2-1. Key point in operational carbon – energy savings indicator
According to one of the nine EEWH indicators – energy savings, the most energy-consuming activities throughout the stages from construction material production to daily usage, and final deconstruction, are “air conditioning” and “lighting”. Thus, the energy conservation effect of these two activities is the focus of assessment, e.g. exterior design of building, natural lighting, direction of sunlight exposure, and use of energy-efficient air conditioning and lighting design. This indicator is also defined as the “combined energy-consumption efficiency of air conditioning system and lighting system during peak summer”.
The “energy-savings indicator” of green buildings is targeted at energy-saving design for air conditioning and lighting, and energy-savings is mainly assessed in three ways, i.e. energy-saving design of building shell, air conditioning efficiency design and lighting efficiency design.
2-2. “Building shell” is the focus of energy-savings for buildings
A building is a structure that provides for various activities in human living, e.g. dwelling, entertainment, office work, education, transportation, healthcare and culture. The purpose of a building is to block out the interference of external climate on internal activities, and the building shell is the element that separates the internal from the external. According to the Building Energy Conservation Design and Technical Specifications, “building shell” is defined as the outer construction of a building which is directly exposed to the atmosphere and allows heat transfer between the interior and exterior, including roof, exterior wall, openings (including air vent, door and window), balcony, visor and awning; but does not include the outer construction below the ground level.
2-2-1. Composition of building shell
The building shell is composed of many components, which may be distinguished as transparent parts (glass window or opening) and non-transparent parts (solid wall, door or roof/ floor structure). (References 3)
(1) Transparent parts
Parts of the building shell that allow light and heat to penetrate directly, e.g. full-height balcony window, normal glass window and roof skylight or opening.
(2) Non-transparent parts
Other parts, excluding transparent parts, of the building shell, including solid wall, door or roof/ floor structure.
The building shell also includes the exterior wall, which is comprised of openings and non-openings (wall structure). Openings consist of doors and windows, while non-openings consist of all solid walls. Thus, the exterior wall divides space into indoor and outdoor space. Since all natural factors, such as sound, light, heat, air and water in the environment, can only enter the indoor space through the building shell, it has critical effect on indoor environment.
2-2-2. Building shell must have good performance (“shell performance”)
(1) Safety
Performance related to structural strength, such as distortion of exterior wall from tension, stress, shear force, bending moment and torsion, fire resistance, water resistance, theft resistance, and rust resistance and deterioration resistance of the interior structure.
(2) Comfort
Achieving indoor ventilation and natural lighting through the covering effect and penetrating effect of building shell. Besides indoor ventilation and natural lighting, it must also be able to insulate sound and vibration.
(3) Environmentally friendly and attractive
Surface materials must be resistant to deterioration and climate to maintain the building’s exterior. They must also be environmentally friendly, use green energy, and allow for material upgrading and maintenance.
Chapter 3 Background/ Industry Predicament & Development
3-1. Development of reinforced concrete
Since human civilization, the construction industry has evolved from stone construction and wood construction in ancient times to the reinforced concrete (RC) construction in modern times. A new chapter in construction history began when the world’s first reinforced concrete building was erected in New York in 1872. After 1900, reinforced concrete was used on a large scale. In 1928, a new type of reinforced concrete structure called prestressed concrete was introduced, and became widely adopted after World War II.
In Taiwan, reinforced concrete is also widely used in constructing residential buildings in the last 40 years. Even as the entire nation is grappling with the issue of urban redevelopment for old and unsafe buildings, no one seems to explore the reason why Taiwan’s buildings are so short-lived. Is it because construction firms cut corners or there is a lack of regulatory clarity? The public even thought that the resilient structural design revised after the September 21 Earthquake would ensure safer and more durable housing.
When the world started developing “green buildings”, experts and academicians were invited to establish related regulatory requirements to improve the current construction industry, covering design, construction, operation/usage and dismantling (recycling or waste disposal). Firstly, we must consider the physical, chemical, implementability and economic issues of structural materials from the perspective of a building’s lifecycle.
3-2. Inherent defect in reinforced concrete – neutralization (Note 4)
Due to frequent earthquakes in Taiwan, if an earthquake occurs during concrete pouring, it will greatly reduce the bonding between concrete and steel bars, severely undermining structural strength. Furthermore, due to Taiwan’s climate, reinforced concrete structures are mostly exposed in warm and humid environment, producing high moisture content and causing hydration products to dissolve, which leads to increase in concrete porosity and pore network connectivity. When concrete is exposed to carbon dioxide in air over a long period of time, neutralization (or carbonization) will occur. This will increase the chances of steel corrosion, resulting in steel expansion and concrete cracking and spalling, which in turn leads to efflorescence and tiles falling off. Reduced load capacity and loss of earthquake resistance in the concrete structure will directly diminish the use and safety of housing.
3-3. Promote steel structured housing – boosting green building efforts
In view of the current resource and environmental problems our world is facing, and given the advantages of steel structures (including high strength, low unit weight and material homogeneity), the time has come for steel structure construction. Maturity of steel-making and welding techniques by the end of the 20th century, shortened construction time with the use of steel structure, recyclability of steel when the time comes for reconstruction of buildings, and increased lifespan of buildings, make steel safer and more economic. Furthermore, steel causes less pollution during its production and can be recycled. With so many advantages, it should be the chosen material for building structures in Taiwan and the rest of the world. (Current specification for steel is SN-grade steel, which is mainly used for housing structures, especially given Taiwan’s climate and geologic conditions) (Note 5)
Characteristics of steel affect the life cycle of buildings and shape trends in today steel construction industry. According to OECD (Organisation for Economic Co-operation and Development) statistics, the construction industry is the world’s largest industry, accounting for 13.4% of the world’s GDP, which is approximately USD7.5 trillion (WSA 2013). Meanwhile, the construction industry consumes over 50% of the world’s steel. Not only is the steel structure industry the most important sector in the steel-making industry, it is also a critical part of the construction industry. Steel structure industry is a labor-, technology- and capital-intensive industry which has key influence over the development of other related industries, making it pivotal to Taiwan’s steel-making industry and construction industry. However, steel structure used for construction only accounts for 5.0~7.5% of the approximately 34 million tonnes of steel produced in Taiwan in 2013, which is much less than the 30~40% (2010) in developed countries in Europe, United States and Japan (it is even up to 85% in the Nordic countries). Since the September 21 Earthquake, there has been a significant increase in the use of steel structure in both residential and non-residential buildings due to requirements for earthquake resistance and safety. With increasingly greater demand for carbon reduction and sustainability worldwide, the use of steel is not only significantly more effective than concrete in terms of carbon reduction, its over 90% recyclability also makes it the best choice in terms of sustainable material. (References 4)
A well-planned life cycle, from a building’s production, construction, use and maintenance to its dismantling, will prolong its lifespan. The full-scale implementation of steel structure housing in Taiwan will not only improve the urban landscape and protect life and property, but also solve the problem of manpower and material shortage. Since the beam/column structure and structural components can be calculated by computers, and produced and processed in factories, it will facilitate the automation of the construction industry, resulting in green buildings and environmental protection.
3-4. Traditional curtain wall limits development of steel-structure housing
Steel-structure exterior wall normally adopts a curtain wall system (see Fig.1). It is assembled by hanging the exterior wall on structural components and anchored to steel beams. The gap between two floors is encased by partition with fireproof filling to compartmentalize between floors. Due to its own lightweight and modularity, construction and assembly of the curtain wall is fast. With modular components, each joint allows for adjustment of construction deviation in the beam/column structure and curtain wall components, and facilitates absorption of displacements between floors. However, poor air tightness between floors is an inherent problem which can cause the use of one floor to affect the use of another.
Furthermore, the shafts, elevators, toilets, pantries and kitchen areas in a commercial building are centrally located, often called the service core; whereas in residential buildings, there is greater demand for “water area”, such as toilet, bathroom, balcony and kitchen, and these spaces are located separately. In larger residential buildings, a flexible layout may be adopted, or an “open building” approach may be taken. Thus, inadequate connection between the floor slabs and the exterior wall can easily increase interaction between floors. Residential spaces also have greater demand for comfort, including sound insulation and vibration damping, which is the greatest difference between commercial buildings and residential buildings.
Steel structure provides strong resilience but is prone to larger displacement, affecting the comfort of living. However, this may be counteracted by using diagonal bracing and seismic damper to reduce building oscillation.
Chapter 4 Research Content & Purpose
4-1. Content of this invention patent
This invention patent utilizes the floor slabs on each level as the anchorage, making the exterior wall an independent system (see Fig.2). Separating the floors into different sections and levels facilitates fire prevention, waterproofing and partitioning. This invention patent provides a solution for connecting structural parts and construction of shell, including deck and exterior wall, exterior wall and balcony connection, and installation, anchoring and dismantling of scaffolding for exterior construction.
Due to the mixture of old and new buildings in the city, sites for new buildings are in close proximity to adjacent buildings, making it impossible to erect scaffolding on the exterior wall.
With this invention patent, steel structures may be widely used in residential buildings, problems with connection of various structural parts of the curtain wall can be solved, and difficulty of the construction environment can be overcome.
4-2. Purpose of this invention patent
Statistics have shown that the first priority of energy conservation and carbon reduction is the push for green buildings. With residential buildings being the focus of green buildings, only steel structure can maximize the effectiveness of residential buildings. The purpose of this invention patent is to allow the utilization of steel structure for residential buildings, creating a simplified, economic, durable and systematic connection of structural parts of the building shell, clarify the construction approach, and establish the construction steps.
After achieving structural lightness, another important indicator is “energy savings”, which is primarily in terms of lighting and air conditioning, and these are the problems the use of steel structure for residential buildings needs to overcome.
(Shell = exterior wall, opening, window, balcony, visor, choosing direction, color, material characteristics, Taiwan’s environment and climate conditions, white exterior wall is most suitable for sub-tropical climate)
4-2-1. Facilitates push for automation in construction of residential buildings
Steel structures are produced by high-precision and programmable machines. This means that all steel structure buildings are assembled on site after they are manufactured by high-precision computerized machines, assembled within the factory and delivered to the construction site. One-time assembly on the construction site also overcomes the problem of difficulty in implementation on a small urban site. Accessibility for construction machines and vehicles is also easier to overcome than traditional construction method.
4-2-2. Fulfilling functional requirements of housing
As most houses in Taiwan are built using reinforced concrete, steel structure’s only known advantages in the housing market are earthquake resistance and sustainability. Other housing-related requirements, such as safety, comfort and daily maintenance, should be compared using scientific data in order to change traditional habits and gradually influence the housing market, eventually changing construction method used in the industry and improving building safety. Moreover, extending the lifespan of buildings not only safeguard human lives but also increase property values; and deconstruction of steel structures in the future will not cause increasingly heavier “construction waste tax”. With growing environmental awareness, carbon footprint will be a high price (in other words, land liability) in dismantling old RC houses. Only then can Taiwan’s housing development connect with the global mainstream in the 21st century.
The following are performance data for structural parts of steel structure:
(1) Earthquake resistance:
Steel has a long lifespan, and is highly resilient and ductile. In Taiwan, construction steel follows two systems, i.e. the US system (e.g. ASTM, A36, A572 and A992) and Taiwan’s CNS standard (SS for general structure steel, SM for welded structure steel and SN for building structure steel). In particular, SN steel is the standard steel for building structures (Note 5) and is most earthquake resistant. There is more stringent control over the chemical composition of SN steel. Its contents of carbon, phosphor and sulfur are much lower than other types of steel.
Steel structure resilience design: Professor Sheng-jin Chen from National Taiwan University of Science and Technology, for his research funded by Taiwan’s National Science Council, received international patents in Taiwan, US, Japan and EU for his invention of “steel beam-to-column connection” method using flange plates and web plates. Many related studies have followed his research and it is still the mainstream method for steel beam-to-column connection used today.
(2) Fire resistance:
In the event of a fire, when the surface temperature of steel reaches 300~400℃, its strength and elastic modulus will significantly reduce; and when it reaches 500~600℃, it has close to zero strength and will likely cause the entire building to collapse. Thus, protective measures are required for steel structures. Usually, it is some form of fireproofing, including fireproof blanket, fireproof board, concrete, intumescent fireproof coating or sprayed-on fireproofing, which will increase the fire resistance of steel.
(3) Rust resistance:
When the main structure’s steel beams/columns are prefabricated and transported to the construction site, the steel surfaces are not treated with rust resistance. The main purpose is to enable fireproof material to fully attach to steel surfaces, creating greater adhesion so that it blocks out moisture and air to achieve rust resistance.
(4) Water resistance:
This invention patent allows the exterior wall to be joined with the floor slabs. RC flashing and RC floor slabs combine to cut off the path of water. In wet areas, such as balcony, bathroom and kitchen, tiles are adhered to RC floor surface. Dry construction is used for the exterior wall. Anti-crack layer and waterproof layer are added to the slabs, and natural coating is applied to the surface.
When leakage occurs in an RC wall, capillary action will make it difficult to find the sources of leak, resulting in efflorescence and falling tiles. Loss of protection will accelerate concrete neutralization, speeding up steel bar corrosion and structural damage. With dry construction on the exterior wall of steel structure, air in the interior will block the flow of water, making maintenance easier (easier to find sources of leak).
(5) Sound insulation:
Sound insulation of exterior wall and demising wall:
Sound insulation refers to the impediment of sound transfer through matter by using soundproof construction material to prevent sound from entering or exiting a room.
There are stringent guidelines on high-performance soundproof green building materials in Taiwan. Items used to assess the soundproofing compliance of building materials are mainly divided into three categories, i.e. soundproofing material, sound-absorbing material and spatial sound-absorbing object. Soundproofing materials include (1) exterior wall, roof panel, demising wall and partition wall, (2) door and window, and (3) surface material of floor slab. Sound-absorbing materials are materials or structural parts of ceiling panel surface, wall surface and floor surface that absorb sound, e.g. perforated gypsum board, perforated wood panel, glass wool, stone wool, perforated aluminum panel, sprayed-on wood fiber, sprayed-on stone wool, sprayed-on glass wool, mineral fiber board and microporous board. Sound-absorbing objects include hanging acoustic barrel, hanging acoustic panel and sound-absorbing curtain. Assessment of compliance based on the three categories of soundproofing should be provided in construction material test report or certification from green construction material institution approved by the Ministry of the Interior. (Information taken from Architecture and Building Research Institute, Ministry of the Interior)
Dry construction method for exterior wall and demising wall in this invention patent:
- Inorganic concrete panel 1.2cm thick both sides (increasing panel thickness to 1.5cm produces excellent result), (air layer + stone wool, outperform 15RC wall), interior dual-layer 5cm-thick 60K stone wool. Sound insulation 51dB
(RC15cm – 48~50dB, 1b brick wall – 35dB)
- Stone wool infill also has air layer that impedes the transmission of sound vibration (similar to heat conduction) from the exterior wall panel structure. By insulating heat and sound, the exterior wall has complied with the “energy savings” requirement for green buildings.
(6) Heat insulation:
In general, RC-structure residential buildings will absorb heat in the day and releases heat at night, making interior air hot and humid. Due to dry construction in the exterior wall and stone wool infill with air layer, steel structure buildings can prevent heat conduction (similar to sound transfer) from heat absorbed by the structure. By insulating heat and sound, the exterior wall has complied with the “energy savings” requirement for green buildings.
4-2-3. Dry construction makes implementation faster and easier
(1) Replacing traditional tiles with eco-friendly coating:
Despite frequent news of falling tiles from exterior walls of buildings in Taiwan, why are tiles still used for new buildings? (Note 6)
This is because most residential buildings in Taiwan are RC structures. Since all RC exterior walls use wet construction, i.e. wet-work foundation, two problems can occur:
- Construction firm dare not apply coating as surface evenness cannot be achieved with manual foundation laying.
- The implementation of wet work can severely smudge the scaffolding. If coating is applied, it may be tainted or damaged after completion when the scaffolding is being dismantled.
With a steel structure, the exterior wall is installed with concrete panel anchored with closely arranged C-shape steel. Due to the use of dry construction, there is adequate evenness and no smudging from wet cement. Thus, natural coating is applied on most surfaces except the balcony areas, where tiles with water absorbency of under 0.2% are used. Coating on the exterior wall is made from natural stones. Water drip line on horizontal areas is also designed to keep exterior of building good as new and makes maintenance easy. As the concrete panel itself is inorganic and durable, and made of natural stone, such as marble and quartz, when the exterior coating becomes dusty and sandy over time, it can be washed and coated again and the new material will combine completely with the old material.
For this invention patent, neither stone nor aluminum panel is recommended for the exterior wall surface. This is mainly because the unit weight of stone is high, which does not contribute to structural lightness. Moreover, stone mining is also banned in many countries as it can cause soil erosion, and water conservation and ecological problems, which is why stone is classified as not environmentally friendly. Another novel material – aluminum panel, wastes energy and pollutes the environment because its baked paint surface contains large quantity of harmful volatile organic compounds (VOC). Even though there are permitted baking fluorocarbon paints, their lifespan is limited and re-baking the paint on aluminum panel is not possible.
When joining either of these two materials to the building structure, if the gap is left open, the interior steel cannot be protected (the concrete cannot be protected if it is RC structure); if the gap is filled with silicone, it will last only 15 years and is difficult to refill when it deteriorates in the future (as the joint is too large).
Thus, maintenance and upgrading are difficult whether stone or aluminum panel, or tiles (tiles may fall off), is used. Not only is the construction massive and expensive, it also does not fit in with the environmental requirements of steel structures.
(1) Implementation is fast, safe and environmentally friendly:
The method of connecting exterior wall to the steel structure as created in this invention patent is easy, safe and fast to implement. Besides eliminating the disruption caused by changing work shifts in traditional RC construction (specific work sequence and coordination is required due to formwork and steel bar tying) and weather conditions:
- Steel structure is faster to erect than traditional RC structure mainly because beams/columns for steel structure are prefabricated and delivered to construction site to assemble. After the beam/column structure and decks are installed, and reinforcement is done, concrete is poured to form floor slabs.
- Scaffolding may be erected
With traditional steel structure building, the exterior wall is either a curtain wall system or prefabricated PC panel, requiring tower crane and climbing platform for external work because traditional scaffolding cannot be used. In this invention patent, the methods for exterior wall connection, and installation and dismantling of scaffolding, are provided.
Steps: After completing floor slabs, scaffolding for exterior work may be erected immediately to implement fireproof covering, and subsequent dry construction for exterior wall and doors/windows, exterior wall coating, etc.
- Improved fireproofing performance (Note 7)
This invention patent’s 125C intensive-type steel-rod exterior wall can be quickly assembled to create a fully sealed space. Anti-rust treatment can only be exempted if steel is in a completely dry environment. Optimal fire and rust prevention is achieved when steel is completed encapsulated by fireproofing material (original US manufacturer’s standard method). For traditional curtain wall or precast exterior wall, normally an anti-rust layer is applied to the steel beams/columns. Due to the sequence of work implementation, the steel may be exposed in the air for a long time, causing steel surfaces to rust and fireproof covering cannot be applied on the steel, thus requiring an additional layer of diamond mesh to facilitate adhesion.
Equivalent to rust prevention: When the main structure’s steel beams/columns are prefabricated and transported to the construction site, the steel surfaces are not treated with rust resistance. The main purpose is to enable fireproof material to fully attach to steel surfaces, creating greater adhesion so that it blocks out moisture and air to achieve rust resistance. (Note 8)
4-3. Specific embodiment
4-3-1. Detail drawing of shell structures
(All dry construction except Fig. A-3 of exterior wall)
(Fig. A) – H-shape steel beam on indoor side:
Three implementation solutions, and their respective sectional drawings, are provided due to the distance between exterior wall of new building and exterior wall of adjacent building:
(Fig. A-1) – When distance between exterior wall of new building and exterior wall of adjacent building is greater than 100cm – Dry construction on the exterior wall (with external scaffolding)
(Fig. A-2) – When distance between exterior wall of new building and exterior wall of adjacent building is greater than 50cm but smaller than 100cm – Dry construction on the exterior wall (external scaffolding not required)
(Fig. A-3) – When distance between exterior wall of new building and that of adjacent building is smaller than 50cm – Wet construction on exterior wall (external scaffolding not required)
(Fig. B) – H-shape steel beam on outdoor side:
(Fig. C) – H-shape steel beam on outdoor side connecting to balcony sunken slab:
(Fig. D) – Box-type steel column connecting to exterior wall:
(Fig. D-1) Sound insulation zoning excluding steel column/ sectional detail drawing (cross-section)
(Fig. D-2) Encased steel column/ sectional detail drawing (cross-section)
(Fig. D-3) Sound insulation zoning excluding steel column (column located at the corner)/ sectional detail drawing (cross-section)
4-3-2. Name of parts
Main structure steel
(a1) Box-type steel column, (a2) H-shape steel beam, (a3) Deck, (a4) Deck apron
Reinforced concrete and concrete (slab)
(b1) Steel bars on top of deck (or welded wire mesh), (b2) Steel bars for various parts, (b3) Concrete
(b4) Exterior wall RC flashing, (b5) Concrete exterior wall panel, (b6) Concrete slabs for encasing outdoor steel beam,(b7) Calcium silicate boards for encasing steel beam
Lightweight steel and various metallic components
(c1) Type-125 C-shape steel, (c2) Z-shape metal parts, (c3) Customized extruded aluminum bars (transom),(c4) Customized extruded aluminum bars (mullion), (c5) Corrugated aluminum ceiling, (c6) Zinc-plated square tubing,(c7) Aluminum window anchoring components, (c8) Aluminum window/ door frame, (c9) Water drip line,(c10) Aluminum grille or perforated aluminum board, (c11) Metal railing components
Façade panel and materials
(d1) Natural coating, (d2) Exterior wall tiles, (d3) Aluminum panel or perforated aluminum panel, (d4) Grille, (d5) Stone
Adhesive, filler and waterproof layer/ fireproof layer/ rustproof layer
(e1) Dry-type exterior wall with 60kg/m3 stone wool infill, (e2) High-polymer mortar, (e3) Anti-crack mesh, (e4) Waterproof layer,(e5) Exterior wall coating, (e6) Fireproof covering, (e7) Silicone, (e8) Fireproof infill, (e9) Door/window caulk
Falsework
(f1) Thread plug, (f2) Threaded bolt, (f3) Nut, (f4) Scaffolding, (f5) Adjacent unit slab anchoring end
4-3-3. Details and steps
(Fig. A-1) – H-shape beam on indoor side: When distance between exterior wall of new building and exterior wall of adjacent building is greater than 100cm – Dry construction on the exterior wall (with external scaffolding). After basic structure is completed, proceed with setting out, hoisting, etc.
Construction sequence (see Fig. A-1 for detail):
- (a1) Box-type steel column + (a2) H-shape steel beam/ Assemble for each floor.
- (a3) Deck + (a4) Deck apron/ Install for each floor.
- Setting out and piping construction.
- (b1) Steel bar on top of deck/ Lay out steel bars for each floor (or welded wire mesh).
- (b3) Concrete/ Pour concrete for each floor.
- (f3) Scaffolding/ Erect external scaffolding, anchor on deck apron (first anchoring).
- (b4) Exterior wall RC flashing/ Rebar grouting.
- (c2) Z-shape metal parts/ Setting out and installation.
- (e6) Fireproof covering/ Spray on box-type steel columns and H-shape steel beams on each floor, thickness depends on required period of fire resistance.
- (c1) Type-125 C-shape steel/ Anchor after setting out, spacing and calibrating vertical line.
- (c1) Type-125 C-shape steel/ Set out elevation of openings, doors and windows (combined with transoms and anchoring components). Doors/ windows can only be installed at least 150cm above ground.
- (b5) Concrete exterior wall panel/ Anchor exterior first.
- (e2) High-polymer mortar/ Fill in gaps in exterior slabs.
- (e3) Anti-crack mesh/ Seal gaps in exterior slabs.
- (e1) Dry-type exterior wall with 60kg/m3 stone wool infill/ Place two pieces inside (implement same time as step 12-14).
- (b5) Concrete exterior wall panel/ Anchor interior.
- (c7) Aluminum window anchoring components/ Anchor.
- (c8) Aluminum window/ door frame/ Install.
- (e9) Door/window caulk/ Fill in completely.
- (c9) Water drip line/ Install type for doors/ windows.
- (e8) Fireproof infill/ Fill in all gaps between exterior wall and steel beams/ deck, between steel column and exterior wall C-shape steel, etc.
- (e4) Waterproof layer/ Spray on entire exterior wall panel.
- Set out positions of threaded bolts.
- (f1) Thread plug/ Install.
- (c3) Customized extruded aluminum bars (transom)/ Install.
- (f2) Threaded bolts/ Install, one-by-one replacing first scaffolding anchoring ends.
- (e7) Silicone/ Fill in various aluminum window/ door frames and customized extruded aluminum bars.
- (d2) Exterior wall tiles/ Construct exterior wall of balcony.
- (d1) Natural coating/ Apply on exterior wall surface.
- (f4) Scaffolding/ Dismantle scaffolding on each floor and remove (f2) threaded bolt one by one while screwing in (f3) nuts or applying silicone followed by coating to seal completely.
- Construction of exterior wall for current floor completed.
Construction sequence (see elevation/ sectional drawings):
- (a1) Box-type steel column + (a2) H-shape steel beam/ Assemble for each floor.
- (a3) Deck + (a4) Deck apron/ Install for each floor.
- Setting out and piping construction.
- (b1) Steel bar on top of deck/ Lay out steel bars for each floor (or welded wire mesh).
- (b3) Concrete/ Pour concrete for each floor.
- (b4) Exterior wall RC flashing/ Rebar grouting.
- (c2) Z-shape metal parts/ Setting out and installation.
- (e6) Fireproof covering/ Spray on box-type steel columns and H-shape steel beams on each floor, thickness depends on required period of fire resistance.
- (c1) Type-125 C-shape steel/ Anchor after setting out, spacing and calibrating vertical line.
- (c1) Type-125 C-shape steel/ Knock out openings.
- Doors/ windows can only be installed at least 150cm above ground.
- (b5) Concrete exterior wall panel/ Anchor exterior first.
- (e2) High-polymer mortar/ Fill in gaps in exterior slabs.
- (e3) Anti-crack mesh/ Seal gaps in exterior slabs.
- (e1) Dry-type exterior wall with 60kg/m3 stone wool infill/ Place two pieces inside (implement same time as step 12-14).
- (b5) Concrete exterior wall panel/ Anchor interior.
- (e8) Fireproof infill/ Fill in all gaps between exterior wall and steel beams/ deck, between steel column and exterior wall C-shape steel, etc.
- (e4) Waterproof layer/ Spray on entire exterior wall panel.
- (d1) Natural coating/ Apply on exterior wall surface.
- Seal knock-out openings.
- Construction of exterior wall for current floor completed.
(Fig. A-3) - H-shape steel beam on indoor side: When distance between exterior wall of new building and that of adjacent building is smaller than 50cm – Wet construction on exterior wall (external scaffolding not required). After basic structure is completed, proceed with setting out, hoisting, etc.
Construction sequence (see elevation/ sectional drawings):
- (a1) Box-type steel column + (a2) H-shape steel beam/ Assemble for each floor.
- (a3) Deck + (a4) Deck apron/ This floor is the H-shape steel beam position in Fig. A-3.
- Setting out and piping construction.
- (b1) Steel bar on top of deck/ Lay out steel bars for each floor (or welded wire mesh). Provide steel reinforcement for H-shape steel beam position in Fig. A-3.
- (b3) Concrete/ Pour concrete for each floor. Pour concrete at H-shape steel beam position in Fig. A-3.
- (f5) Adjacent unit slab anchoring end.
- (b5) Concrete exterior wall panel/ Anchor exterior wall panel on (f5) adjacent unit slab anchoring end first.
- (e4) Waterproof layer/ Apply waterproof layer on exterior wall panel from interior.
- (b2) Steel bars for various parts/ Install steel bars for exterior wall.
- (b5) Concrete exterior wall panel/ Fasten interior of exterior wall concrete panel using threaded rods and push till horizontal base of H-shape steel beam (temporary fastening).
- (b3) Concrete/ Start pouring concrete from the floor slab directly above. When the concrete poured is 10cm higher than the floor slab directly above, repeat (Fig. A-3) for each floor. When floor slabs become more protruded than adjacent unit, switch to method in Fig. A-1 for floors above.
- Spray fireproof covering on box-type steel columns and H-shape steel beams on each floor, thickness depends on required period of fire resistance.
- Construction of exterior wall for current floor completed.
(Fig. B) – H-shape steel beam on outdoor side: When distance between exposed beam of new building and adjacent building is greater than 100cm (with external scaffolding). After basic structure is completed, proceed with setting out, hoisting, etc.
Construction sequence (see elevation/ sectional drawings):
- (a1) Box-type steel column + (a2) H-shape steel beam/ Assemble for each floor.
- (a3) Deck + (a4) Deck apron/ Install for each floor.
- Setting out and piping construction.
- (b1) Steel bar on top of deck/ Lay out steel bars for each floor (or welded wire mesh).
- (b3) Concrete/ Pour concrete for each floor.
- (f3) Scaffolding/ Erect external scaffolding, anchor on deck apron (first anchoring).
- (b4) Exterior wall RC flashing/ Rebar grouting.
- (c2) Z-shape metal parts/ Setting out and installation.
- (e6) Fireproof covering/ Spray on box-type steel columns and H-shape steel beams on each floor, thickness depends on required period of fire resistance.
- (c1) Type-125 C-shape steel/ Anchor after setting out, spacing and calibrating vertical line.
- (c1) Type-125 C-shape steel/ Set out elevation of openings, doors and windows (combined with transoms and anchoring components). Doors/ windows can only be installed at least 150cm above ground.
- (b5) Concrete exterior wall panel/ Anchor exterior first.
- (e2) High-polymer mortar/ Fill in gaps in exterior slabs.
- (e3) Anti-crack mesh/ Seal gaps in exterior slabs.
- (e1) Dry-type exterior wall with 60kg/m3 stone wool infill/ Place two pieces inside (implement same time as step 12-14).
- (b5) Concrete exterior wall panel/ Anchor interior.
- (c7) Aluminum window anchoring components/ Anchor.
- (c8) Aluminum window/ door frame/ Install.
- (e9) Door/window caulk/ Fill in completely.
- (c9) Water drip line/ Install type for doors/ windows.
- (e8) Fireproof infill/ Fill in all gaps between exterior wall and steel beams/ deck, between steel column and exterior wall C-shape steel, etc.
- The following is the work sequence for encasing exposed beam.
- (c6) Zinc-plated square tubing/ Fasten on exterior wall C-shape steel and H-shape beam.
- (b6) Concrete slabs for encasing outdoor steel beam/ Fasten directly.
- (c9) Water drip line/ Fasten on the concrete surface of deck above the exposed beam. After fastening the water drip line, tiles or concrete board may be pasted directly. Silicone should be applied to the joints along the water drip line for sealing purpose.
- (e4) Waterproof layer/ Spray on entire exterior wall panel.
- Set out positions for fastening threaded bolts.
- (f1) Thread plug/ Install.
- (f2) Threaded bolts/ Install, one-by-one replacing first scaffolding anchoring ends.
- (e7) Silicone/ Fill in various aluminum window/ door frames (apply silicone to joints for sealing purpose).
- (d2) Exterior wall tiles/ Construct exterior wall of balcony.
- (d1) Natural coating/ Apply on exterior wall surface.
- (f4) Scaffolding/ Dismantle scaffolding on each floor and remove (f2) threaded bolt one by one while screwing in (f3) nuts or applying silicone followed by coating to seal completely.
- Construction of exterior wall for current floor completed.
(Fig. C) – H-shape steel beam on outdoor side connecting to balcony sunken slab:
When distance between exposed beam of new building and adjacent building is greater than 100cm (With external scaffolding). After basic structure is completed, proceed with setting out, hoisting, etc.
Construction sequence (see elevation/ sectional drawings):
- (a1) Box-type steel column + (a2) H-shape steel beam/ Assemble for each floor, including balcony sunken slab’s cantilever beam.
- (a3) Deck + (a4) Deck apron/ Install for each floor, including deck on top of balcony sunken slab’s cantilever beam.
- Setting out and piping construction.
- (b1) Steel bar on top of deck/ Lay out steel bars for each floor (or welded wire mesh).
- (b3) Concrete/ Pour concrete for each floor.
- (f3) Scaffolding/ Erect external scaffolding, anchor on deck apron (first anchoring).
- (b4) Exterior wall RC flashing/ Rebar grouting.
- (c2) Z-shape metal parts/ Setting out and installation.
- (e6) Fireproof covering/ Spray on box-type steel columns and H-shape steel beams on each floor, thickness depends on required period of fire resistance.
- (c1) Type-125 C-shape steel/ Anchor after setting out, spacing and calibrating vertical line.
- (c1) Type-125 C-shape steel/ Set out elevation of openings, doors and windows (combined with transoms and anchoring components). Doors/ windows can only be installed at least 150cm above ground.
- (b5) Concrete exterior wall panel/ Anchor exterior first.
- (e2) High-polymer mortar/ Fill in gaps in exterior slabs.
- (e3) Anti-crack mesh/ Seal gaps in exterior slabs.
- (e1) Dry-type exterior wall with 60kg/m3 stone wool infill/ Place two pieces inside (implement same time as step 12-14).
- (b5) Concrete exterior wall panel/ Anchor interior.
- (c7) Aluminum window anchoring components/ Anchor.
- (c8) Aluminum window/ door frame/ Install.
- (e9) Door/window caulk/ Fill in completely.
- (c9) Water drip line/ Install type for doors/ windows.
- (e8) Fireproof infill/ Fill in all gaps between exterior wall and steel beams/ deck, between steel column and exterior wall C-shape steel, etc.
- The following is the work sequence for encasing exposed beam.
- (c6) Zinc-plated square tubing/ Fasten on exterior wall C-shape steel and H-shape beam.
- (b6) Concrete slabs for encasing outdoor steel beam/ Fasten directly.
- (c9) Water drip line/ Fasten on the concrete surface of deck above the exposed beam. After fastening the water drip line, tiles or concrete board may be pasted directly. Silicone should be applied to the joints along the water drip line for sealing purpose.
- (e4) Waterproof layer/ Spray on entire exterior wall panel.
- Set out positions for fastening threaded bolts.
- (f1) Thread plug/ Install on exterior wall.
- (f2) Threaded bolts/ Install, one-by-one replacing first scaffolding anchoring ends.
- (e7) Silicone/ Fill in various aluminum window/ door frames (apply silicone to joints for sealing purpose).
- (d2) Exterior wall tiles/ Construct exterior wall of balcony.
- (c10) Aluminum grille or perforated aluminum board, or (c11) metal railing components/ Installed after balcony flashing is completed.
- (d1) Natural coating/ Apply on exterior wall surface.
- (f4) Scaffolding/ Dismantle scaffolding on each floor and remove (f2) threaded bolt one by one while screwing in (f3) nuts or applying silicone followed by coating to seal completely.
Construction of exterior wall for current floor completed.
(Fig. D) – Box-type steel column connecting to exterior wall:
(Fig. D-1) Sound insulation zoning excluding steel column/ sectional detail drawing
Remark:
(Note 1) Taiwanese local architecture:
There are two aspects of local architecture:
- Cultural aspect (human culture, land culture, water culture): For instance, local culture, folk customs, geological conditions and species. The choice of building materials due to the environment affects architectural characteristics, style and design.
- Climate aspect (physical quantity, Earth science): Due to Taiwan being in an earthquake zone and having a subtropical island climate that is warm and humid, architectural design should be compatible with Taiwan’s environmental and physical conditions, including having more designs such as visor, heat insulation, energy conservation, earthquake-resistant structural system, weather-resistant materials and eco-friendly materials.
If a building can fulfil these two prerequisites in terms of design, structure and materials, it is considered “local architecture”.
Why then are Taiwan’s residential property going against the concept of “local architecture”? The reason is construction firms’ senseless pursuit of “luxury housing”, using huge quantity of stones, imitating European castles, Baroque design, large energy-consuming glass curtain wall, etc.
(Note 2) Definition of high-rise building in Taiwan:
According to Taiwan’s building technical regulations, buildings over 50m or 15 stories are considered high-rise buildings but there is no specific regulation for “supertall buildings”. The consensus within the industry is any building over 100m is considered a supertall building. When applying for building permit for buildings over 120m, an environmental impact assessment is required. In terms of structure, 120m is the maximum limit for RC structure. Normally, SRC structure will be considered for buildings that are 120-150m tall, and SS structure is adopted for buildings over 150m.
(Note 3) Compressive strength of concrete
In general, the amount of concrete used for each building floor is adjusted according to the building height, which means the lower floors need greater compressive strength and earthquake-resistance. A compliant structure is one that has the most suitable strength and steel ratio to achieve balance and resilience.
Thus, higher compressive strength is not necessarily better; it depends on the structural design of the building.
The unit for “design compressive strength of concrete” is kg/cm2 (the kilogram weight each square meter of concrete holds). Usually, the design compressive strength of concrete is 140~350kg/cm2 (metric unit); or approximately 2000~5000psi if converted to Imperial unit. In Taiwan, a normal house usually has a design compressive strength of 210kg/cm2 (approximately 3000psi); a seven-story building has 4000psi (280kg/cm2), and lower altitude buildings and basement diaphragm wall have 5000psi (350kg/cm2).
(Note 4) Effect of carbon dioxide on concrete
The neutralization of concrete starts from the outermost layer, moving inward gradually. When neutralization reaches the steel bars, corrosion will begin. Thus, the speed of neutralization determines when steel corrosion will occur. The speed of neutralization is related to many factors but fundamentally, it has to do with the reaction of carbon dioxide in concrete and the speed of its spread. Any factor that promotes carbon dioxide spread and reaction will accelerate the speed of neutralization. The relationship between the speed and time of neutralization may be simply expressed as follows: D = K , where D= neutralized depth, K= neutralization ratio, t = time. The mathematical model shows that thicker protective layer will result in slower concrete neutralization of steel surface. K value, on the other hand, is related to calcium hydroxide in concrete and the penetration speed of carbon dioxide. In general, factors affecting concrete neutralization include: (1) External environment; (2) Composition of cement; (3) Cement content in concrete; (4) Concrete permeability; (5) Concrete density; (6) Cracks in concrete; and (7) Thickness of protective layer. (References 5)
(Note 5) Earthquake-resistance of steel
SN-grade steel is mainly used for housing structure, factory, bus stop, etc. It is already commonly used for buildings and large constructions. Grades used are either SN490B or C. For instance, the Yunlin high-speed rail that is being constructed uses SN490B and C steel. However, few consumers know that SN400 series steel used for lower floors is manufactured in Taiwan. In the past, SS400, SM400 and ASTM A36 are used for construction. In Japan, steel structure is widely used in low-rise buildings. However, it was proven during the Great Hanshin Earthquake that the above-described steels are not earthquake-resistant. Consequently, all low-rise buildings constructed after the earthquake use SN steel. Currently, Taiwan has established a supply chain for SN steel and future architects should prioritize the use of SN grade steel.
National standard for earthquake-resistant steel specifications
Since 1997, the Construction and Planning Agency, Ministry of the Interior, has taken Japan’s SN steel standards into consideration when establishing Taiwan’s national standard for earthquake-resistant building structure steel specifications (CNS 13812 G3262). Furthermore, since 2003, it has been studying the gradual implementation of SN-grade steel for critical steel structure of buildings. In 2014, CNS 13812 added SN400YB and SN400YC steels which have yield strength of 250 N/mm2, and SN490YB and SN490YC steels which have yield strength of 325 N/mm2, as standards for earthquake-resistant steel.
Taiwan is located within the Circum-Pacific Belt where 80% of the world’s shallow earthquakes occur. Both the September 21 Earthquake and the Great Hanshin Earthquake were shallow earthquakes which have caused massive destruction and huge casualties. Since the Great Hanshin Earthquake, Japan has raised its standard for earthquake resistance and safety of construction steel, and SN-grade steel is the only steel that complies with its earthquake-resistance building standard.
SN-grade steel improves the strength, resilience and weldability of steel.
H-type steel is categorized into A36, A572G50, SS400, SM400A, SM490A, SN400YB and SN490B
(References 6)
(Note 6) Why do tiles often drop from exterior walls of buildings in Taiwan?
Falling tiles from exterior walls of residential buildings in Taiwan is a frequent occurrence. There are many reasons for the falling tiles in RC structure. Besides the concrete neutralization issue described above, the adhesion of the tiles and the material of the tiles are problems as well. In terms of material, the crux of the problem is the material’s “water absorbency”. When pasting tiles, if the base finishing coat is too dry or the wall tiles themselves are too absorbent, the moisture in the tile mortar will be absorbed and loses its adhesive strength. If the moisture required for the mortar to harden is absorbed by the base coating or tiles, the hardening will be incomplete. As the hardening of mortar requires hydration reaction, the loss of moisture will negate its effect, causing tiles to fall off.
Due to the poor water retention of the mortar used for pasting wall tiles, it dries up quickly before hardening and lacks adhesive strength. Normally, seaweed powder is blended into the mortar as a water retaining agent to increase the mortar’s working time and efficiency. However, using seaweed powder with poor water retention will cause the mortar to dry up before it can adhere.
With high frequency of earthquake and typhoon, and relatively high humidity and rainy weather, in Taiwan, if construction firms only pay attention to surface quality of wall tiles and not their water absorbency when building houses, it will lead to the risk of falling tiles. The loss of surface protection on a building’s exterior wall will accelerate deterioration or neutralization of concrete, resulting in falling tiles.
Additional note: Water absorbency is inversely related to firing time, i.e. longer firing time results in lower water absorbency. However, firing time is directly related to price, i.e. longer firing time leads to higher price.
(Note 7) Duration of fire resistance for building structures:
Chapter 3 Fire-resistant structure
Chapter 3 – Fire Resistance of Buildings in the Building Technical Regulations/ Article 69 states that buildings shall be fire-resistant structures. Duration of fire resistance is specified in accordance with the building’s type of use, structural part and total floor area/ building height.
All types of building structures must comply with the regulations, whether RC, SRC or SS. In accordance with the Building Technical Regulations, fire-resistance duration shall gradually increase from the top down. The fire-resistance duration shall be one hour for the top four floors, followed by two hours for the next 10 floors, and three hours for the other floors below.
For RC and SRC structures, concrete is used to achieve fire-resistance duration; and for SS structure, fireproof covering or fireproof paint is used as protection. In this invention patent, fireproof covering is the main material used (it has excellent water resistance, protection and durability, and when protected by concrete board from external forces, it can permanently cover steel surfaces).
(Note 8) Water-resistance and rust-resistance of steel are directly related:
The material used for fireproof covering is from a well-known brand in Taiwan. It contains cement, vermiculite and fibers, and unique inorganic fireproof material. After application and drying, it is strong and lightweight, and highly resistant to impact, compression and bending. Containing anti-crack fiber, it is strong and resilient, and does not peel off when sustaining impact. Even when burned for three hours, it remains intact, does not pulverize or become soft. It is also resistant to convection currents in a fire, and its fire-resistance facilitates water-resistance and weather-resistance.
Comparison between fireproof paint and fireproof covering
1.Price:
Fireproof paint is 3-5 times the price of fireproof covering and is normally used in factories. It is required when there is a need for exposed steel structure.
- Durability: Fireproof paint has a lifespan of 7-8 years. If it cannot be maintained properly, it will lose its fire-resistance.
On the other hand, fireproof covering may last forever if it is not damaged by external forces. Its fire resistance will last as long as the lifespan of the steel structure.
- If fireproof covering is used on residential buildings, a layer of transparent protective paint is required on the surface whether encasing is implemented. If beam needs to be exposed, another layer of acrylic paint may be applied.
References
(References 1): Lin Hsien-te/ Sustainable Environment/ Business Today /Date: 12-15-2021
(References 2): Lin Ying-hsiu/ Delta Electronics Foundation
Building Life Cycle Assessment – Uncovering Up to 28% of “Hidden Carbon”
(References 3): Feng-yi Yang
Improvement Exterior Wall Original Construction Methods-A Case Study of Double Walls System
(References 4): Yen- Chung Huang
The Planning and Design of E-Procurement System of Steel Making Industrial
(References 5): Hsu Yao-tzu, Gou Chang-huan, Wu Tung-sheng
Structural Failure Modes Commonly Seen During Concrete Bridge Inspection (3)
(References 6): Wikipedia & Chen Cheng-ping/ Engineers Times No.46 Characteristics of SN-series Steel Used for Building Structu


























