- 鋼構住宅之論述
明森對於建築的思辨,建立在與每個人切身的問題 -「家」,因為這是「生命」與「財產」安全之議題…
台灣屬海島型國家、氣候高濕高溫,位處於地震帶、都市地狹人稠;關於住宅,應該先對正確的建築結構加以探討,純鋼構SS(Steel Structure)建築即具優勢,如:結構的耐久性、綠建築核心價值、營建業的淨零碳排、營建自動化的推展。
在過去,混凝土構造(RC/SRC)因為造價相對便宜或施工程序相對簡單,造成建築業界的依賴,但殊不知RC是造成建築短命的主因,因為混凝土先天中性化的基因,導致鋼筋生鏽、進而外觀掉磚、結構應力不足抗震力折損,而建築物生命週期短,除了不環保之外,也讓建築折舊,遑論資產保值? 且營建過程中高碳排,材料不可回收等,相當不利營建業淨零碳排的國際趨勢。
那麼台灣除了超高層住宅之外,為何全數皆為RC或SRC呢?這關鍵在於「建築外殼」問題…因此,明森鋼結構之外殼發明專利工法因應而生,我們堅信,這將是台灣住宅全面鋼構啟動的鑰匙!
「明森論建築」,我們以宏觀而深入淺出的論述來探討此建築議題。
註:鋼筋混凝土構造(RC)/鋼骨鋼筋混凝土構造(SRC)/純鋼構構造(SS)
明森鋼構住宅/鋼結構建築外殼之構造專利工法
台灣/發明專利第
I823712、I823821、I823822、I823823、I844457號
日本/發明專利 第7473695號
美國/發明專利 No.US 12,227,942 B2
大陸/新型專利 第ZL 2022 2 3481077.4號
德國/新型專利 第20 2024 002 482號
發明人/文/楊豐溢
目錄
第一章 台灣都市發展脈絡
1-1、台灣建築產業現況
1-2、都市之困境與機會
第二章 綠建築與建築外殼
2-1、營運量重點-日常節能指標
2-2、建築日常節能的重點在於「建築外殼」
第三章 鋼構住宅
3-1、建築產業是地球上最大碳排量
3-2、綠建築的首要重點 - 結構體
3-3、台灣主要三種結構系統分析
3-4、鋼筋混凝土先天基因缺陷-中性化
3-5、推動鋼結構住宅-讓綠建築事半功倍
3-6、民眾對於鋼構建築的認知
3-7、傳統帷幕牆限制了鋼構住宅的發展
第四章 「明森鋼構外殼專利工法」研究內容與目的
4-1、本發明專利的內容
4-2、本發明專利的目的
4-3、具體實施方式
第五章 「鋼構雷射銲接」
5-1、明森與台灣光罩合作 -「鋼構雷射銲接」技術
5-2、高能雷射銲接效益評估 - 以H型鋼為例
5-3、2024 雷射銲接量產線正式啟動
5-4、國家地震中心 - 實尺寸梁柱接合耐震測試
第六章 實際操作案例 - 以「沐海」案為例
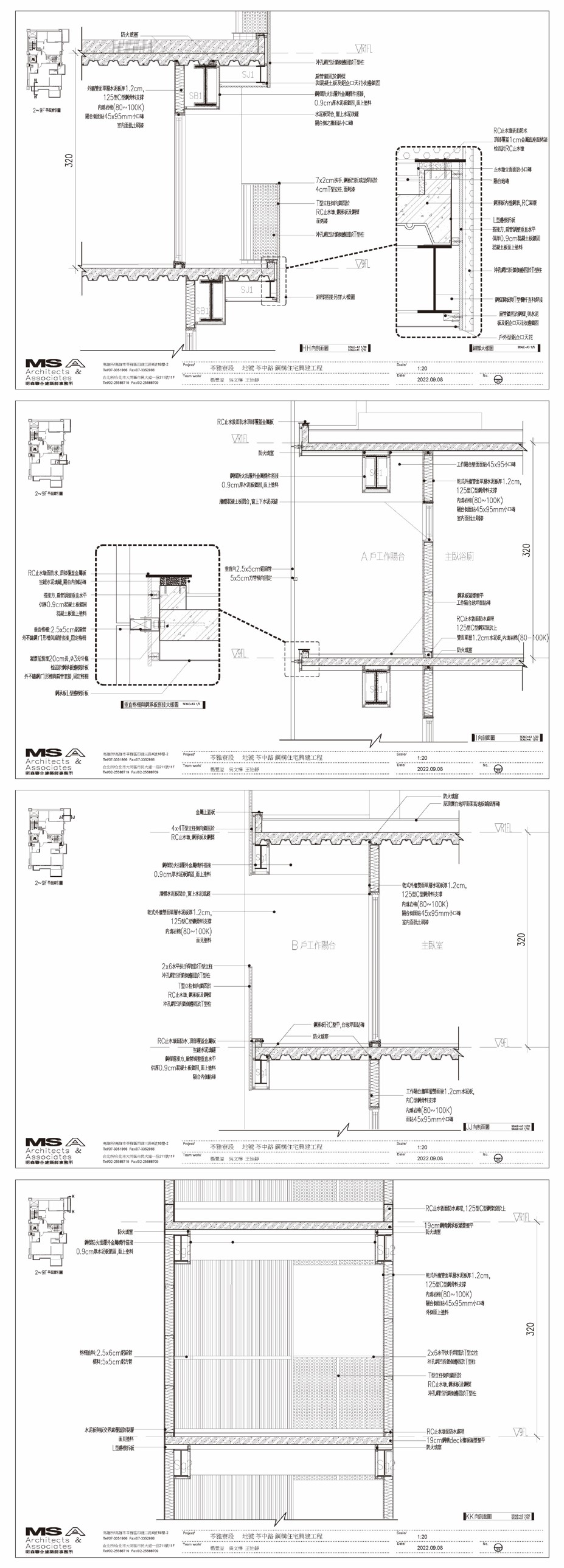
6-1、鋼構剖面大樣
一.台灣都市發展脈絡
台灣建築產業現況
住宅才是都市核心
台灣都市90%以上的建築都是住宅類型,所以住宅問題就是都市核心問題 !
而住宅就是「家」空間,因此,「家」是觸動人心的終極建築!

房屋市場的「三高」現象
在當前,台灣房屋市場面臨高房價、高空屋率、高自有率「三高」,加上人口老化與少子化,民眾對住宅需求已經在改變,使得房屋持有時間變長,而建築使用壽命卻很短。而當前國際情勢劇變,政治局勢改變了經濟局面,通膨與利率相互牽制、政策調整,都左右了房地產價格的盤整。
由於都會精華區房價居高不下,許多人還是得住在市區,因此只能選擇老屋居住,實際上都更並不容易,往往還得繼續住在老屋一段很長的時間。而都市基地受限,集合住宅產權複雜,危老、都更需求迫在眉睫,但營建業嚴重缺工,通膨嚴重導致建商搶地、搶工,都市都更窒礙難行,而新興重劃區卻雨後春荀般的,如火如荼的大量興建房屋。
都市也慢慢呈現越來越高的房價與越來越老的老屋,加上越來越老、越來越少的營建工人。斷工危機、投資客炒房、政府打房⋯。就是這樣,房地產文化與住宅文化永遠都是對立的矛盾的,且紊亂與多元!
台灣房子很短命 -「建築劣化」現象
常常聽到媒體,甚至政府稱:台北市3-40年的老屋佔了全都市建築50%以上,高雄市都更推動緩慢,政府必須加速推動危老、都更⋯等訊息。所以「都更成功率」才是政府和民眾所關心的。都更固然是任何城市的當務之急,都更成功率也是政府首要政績,但問題在於;為什麼我們沒有警覺到「30年」的都更年限是非常荒謬的?或許很多人認為,是因為早期台灣的營建技術低劣,或是建商偷工減料、法規不夠嚴謹…等因素,所以造成台灣住宅是如此的短命?
那麼我們是否應該探討,什麼原因讓都更變得如此短命的週期?是否成為一種不健康的短循環?當這般惡性循環的枷鎖發生在每個人的生活,並危及每個人的生命財產時,那麼,是否應該探討台灣建築結構根本性問題?如何因應台灣氣候環境條件、因應國際趨勢與地球困境、探討目前世界上建築結構應該走的方向⋯等。這或許就是我們為何要推動鋼結構住宅,無論是高層或中低層建築,大基地或小基地,尤其台灣都市巷弄狹小的基地如能加以運用,即能解套。我想,這將是台灣政府和建設業者必須走的道路,今天不做,明天做;明天不做,後天一定要做的事情。這也是本「發明專利工法」主要的研究動機,並且提出具體,可以執行的方法。
都市之困境與機會
台灣這四十年來都市發展脈絡:
早期台灣唯二直轄市,具備完整都市計畫的城市
(1.)道路系統(2.)捷運路網(3.)都市使用分區,例如高雄市:商1~商五,住1~住五,用以控制城市人口密度、綠覆率、土地容受力-即建蔽率、容積率、建築高度…
這兩大城市又以高樓化之居多,而台灣住宅以鋼筋混凝土(RC)為主要構造,近期高層建築則以鋼骨鋼筋混凝土構造(SRC)為大宗,而這兩種結構都需要大量的混凝土包覆,及提供抗壓強度。
都市之困境 - 混凝土建築使用壽命短,且集合住宅都更不易
大樓很難使用五十年,在使用三十年後,建築外牆開始產生白華而造成丁掛磚掉落,因而產生行人或住戶安全威脅…RC 和 SRC構造,在台灣的氣候及地震帶的影響下,極易造成混凝土中性化,進而導致掉磚、鋼筋生鏽、結構耐震不足,建築生命週期隨之減短。
混凝土構造在適當的維護下,亦能夠延長建築物的使用年限,但集合住宅的建築維護執行不易,因此產生出許多難以更新的老舊社區,形成都市防災缺口。

都市之困境 - 房地產文化亂象
屋市場投資客短線炒作 (短視近利),其實建築物的生命週期短,房屋抗通膨,不動產保值的觀念不正確,因為都市住宅以大樓為主,而大樓建築壽命短,折舊率高,而土地持分的產權效益不高,且都更成功率低。
都市之機會 - 建築汰舊換新效率高 = 活化都市土地機會大
相對其他國家,台灣勞動成本低,而當前台北與高雄在早期開發的RC大樓最多,需要更新的老舊建築越多,商機越大,活化都市土地、成就現代化都市、環保建築汰舊換新效率高、機會大,因此全面推動台灣都市SS結構系統運用於住宅類,這將是營建產業勢在必行的趨勢。
台北、高雄近四十年來的RC構造全面的老化是全面鋼構化的轉型契機,產官學界應認清台灣氣候條件與產業優勢,而房地產業界產生混沌不明的模糊狀態,我們將以全方位的專業體系落實明森鋼構住宅做為短中期目標。
綠建築與建築外殼
營運量重點-日常節能指標
依九大指標中的「日常節能指標」:在建築物的建材生產到日常使用,以及最終拆除的各個階段中,耗能最大的部分其實是日常使用的「空調」與「照明」,因此以此兩項的節能效果做為評估重點,例如建物設計的外觀、採光、日曬方位以及空調與照明的節能設備使用。這項指標也同時被定義為「夏季尖峰時期空調系統與照明系統的綜合耗電效率」。
綠建築之「日常節能指標」是以最大耗電部分的空調與照明用電的節能設計為重點,並將節能評估重點設定在建築外殼節能設計、空調效率設計及照明效率設計等三大方向。
建築日常節能的重點在於「建築外殼」
建築物為提供人類在生活上的各種活動,如居住、娛樂、辦公、教育、交通、醫療、文化 …而形成的構造物,其目的在於阻絕外部氣候對內部活動的干擾,而建築外殼就是界定內部與外部的元素。「建築物外殼」依建築物節能規範設計規範之定義,建築物所直接暴露於外氣,熱能可內外相互傳透支外圍構造,包含屋頂、外牆、開口部(包含通風口、門、窗)、陽台、遮陽板、雨遮⋯等,不包括地面層以下外圍構造。
建築外殼之構成
建築物外殼構成要素甚多,又可區分為透光部位(玻璃窗或開口部)與不透光部位(實牆、門或屋頂樓版等)。(文獻3)
(一) 透光部分
建築物外殼中,容許光線與熱射直接穿透的部分,例如:陽台落地窗、一般玻璃窗、屋頂採光罩或開口等。
(二) 不透光部分
建築物外殼中,除掉透光部分之其他部位,包括實牆、門或屋頂樓板等。
建築外殼包含外牆,而外牆的構成亦分為開口部及非開口部(牆體部)兩大部分,開口部包含門及窗兩部分,非開口部包含所有實牆,因此,外牆將空間劃分成室內、外兩部分的構造體,當建築環境中所遭遇的音、光、熱、氣、水等自然因子,都受到建築外殼的控制才能進入室內,所以建築外殼是影響室內環境重要因素。
「建築外殼」必須達到良好的「性能」(稱為外殼性能):
一.安全性
結構強度相關性能,如外牆受張力、壓力、剪力、彎矩、扭力…之變形,以及防火、防水、防盜,還有內部結構防鏽、抗劣性能。
二.舒適性
藉由建築外殼之遮蔽與穿透兩種功能,以取得室內通風及採光等效果,除了上述的物理量之外,還必須滿足隔音、隔震性能….。
三.環保與美觀
表面材料具良好的抗劣、耐候性能才能維護建築外觀,同時也必須達到環保、綠能與材料更新、維護的機制。
建築產業是地球上最大碳排量
聯合國環境規畫署(UNEP)二○二○年的報告指出,建築產業在二○一九年排放了全球的總耗能三五%,以及總溫室氣體三八%,高於工業部門和運輸的總排放量,因此建築產業的節能減排,是達成國家淨零排放的關鍵所在。(文獻1)
生命週期評估(Life Cycle Assessment, LCA)是指產品從生產服務被運用直到廢棄被處置,各階段產生出對環境的潛在衝擊的評估。以建築物為對象,並聚焦在環境衝擊之中的碳排放,可以發現,在生命週期之中,除了營運過程能源相關的碳排放(簡稱「營運碳」)之外,還包含剩餘生命週期內所產生的碳排放,稱為「隱含碳」(Embodied carbon)。(文獻2)
根據《亞太區隱含碳入門》(Asia Pacific Embodied Carbon Primer),顯示營建產業從材料生產、施工營建、日常使用、拆除到回收利用,建築物的碳排放量是地球上佔比最高的產物,其中25-28%來自於營運階段,10-12%來自於營建階段(Embodied carbon,稱為隱含碳排)。因應當今環保時代,我國現行「綠建築九大評估指標系統(EEWH)」中,包含了生物多樣性、綠化量、基地保水、日常節能、二氧化碳減量、廢棄物減量、室內環境、水資源及汙水垃圾改善等九項評估指標。從1992年「地球高峰會議」制訂的「全球氣候變化公約」到1998年「京都議定書」,各國無不積極進行二氧化碳排放減量的工作。其中「二氧化碳減量」指標的目的,是為減少建材在生產及運輸中的二氧化碳排放量而定。

綠建築的首要重點-結構體
地球暖化議題是當前地球環保最迫切的議題,而建築物該如何減少二氧化碳呢?其中最大的關鍵在於建築構造體系與建材的使用方向。所以,建築師在設計時必須考量「結構合理化」、「建築輕量化」、「耐久化」及「再生建材的使用」等四大要素。
台灣地狹人稠且四面環海,是典型的亞熱帶島嶼,而地質、氣候處於地震帶、高溫高溼,及每年夏秋季颱風環伺。以建築耐震能力而言,重點在於「結構系統設計」及「確實的施工品質」,必須同時滿足者兩個條件才是良好的結構,而不是SS或SRC就一定比RC構造安全,因為條件是相對性的,而「結構合理化」和「建築輕量化」也必須和耐震性能同時考量。
台灣三種結構系統:RC結構、SRC結構或SS結構。決定建築的結構系統才是第一要務,因為建築物從誕生到結束的過程:1.材料生產、2.設計營建、3.各種使用、4.劣化維修、5.結束拆除。在這個過程中,結構體系都是綠建築各大指標的重點,它影響建築生命週期的走勢,也改變各種數據的變化。而治標就要先治本,正確選擇結構體系才是根本之道。
台灣主要三種結構系統分析
RC鋼筋混凝土(Reinforced Concrete)本文簡稱RC
將鋼筋與混凝土這兩種材料組成的原因在於鋼筋抗拉與混凝土抗壓特性,這也是台灣營建業最普遍的工法,佔了全台灣90%以上(中低樓層5-15層房屋,幾乎100%)。
施工程序是利用模板作為結構模型再綁鋼筋、澆置混擬土、結構體表面裝修必須大量的泥作..防水、填縫、抹平、貼磚。營建業屬於大量的勞力密集行業,由於需要相當多模板工、鋼筋綁紮工、泥作工⋯這也是目前本國勞動力嚴重缺工的最大原因。
在結構抗震方面,自從台灣921地震以後,建築物耐震設計規範也經過多次修改,而RC結構在耐震規範中也必須具「韌性設計」要求。
SRC鋼骨鋼筋混凝土(Steel Reinforced Concrete)本文簡稱SRC
SRC構造的誕生,是因為台灣大樓樓層超過30層左右,必須滿足法規規範「韌性設計」,這將會造成柱梁斷面尺寸過大,而影響室內空間(尤其是地下室車位與1-8樓斷面需求更大),所以才有了SRC結構系統的原因。但實質上SRC構造與RC構造設計強度一樣,也同樣沒有消能機制,除了造成施工重複(鋼柱梁+RC包覆),營造成本增加,且工作進程、耗時耗力。
施工程序是將鋼柱及鋼梁組成的基礎構架,再用鋼筋包覆鋼骨外,組立模板後灌入混凝土,進而完成梁柱及樓地板的施作。SRC的存在也是希望綜合RC及SS結構耐震性(韌性有助於抵抗地震力)同時又希望住宅舒適度(提高剛性避免地震力風力造成建築物搖擺)其實SS工法依然可以克服這方面的問題(在下一段補充)。
台灣建商開發住宅建案,之所以依賴SRC結構,除了上述功能之外,主要的原因為:
1.濕式工法的鋼筋混凝土構造,介面處理細節相較於鋼骨、鋼材鐵件的乾式工法容易。
2.誤以為鋼柱、鋼梁結構加上RC保護,可以一勞永逸,達到防火、防水、防鏽、隔音 、耐候⋯等性能。
實際上,論環保數據SRC結構是三者最差的,以結構應力或工程施工程序並沒有比較優勢,但混凝土劣化的缺點與RC一樣同樣存在,也無法達到SS結構的耐震性能等級,諷刺的是,台灣大部分的建商將之號稱為「豪宅」專用結構。
SS鋼結構 (鋼骨)(SS /Steel Structure或稱SC /Steel Construction)本文簡稱SS
台灣位處於地震帶,建築結構如果採用SS(SC)鋼骨構造,將具有較佳的韌性,進而達到較好的耐震性能,通常運用在超高層建築(註2),因為超高層建築物受地震力作用相當大,耐震要求比較高;所以,SS(SC)鋼骨構造』多半運用在辦公建築或公共建築類 (百貨、飯店、大跨度體育場、工廠)。
補充上述…..SRC的系統之所以問世,原意希望綜合RC及SS結構耐震性(韌性有助於抵抗地震力),同時又希望兼顧住宅的舒適度,如提高剛性避免地震力、風力造成建築物搖晃,然而,這個部分可以皆由斜撐、制震壁抵抗建築物的變位量,可以控制在2/1000的位移量,比鋼筋混凝土變位量還低,大大可以補足鋼結構在這方面的問題。如此可見,SS結構系統是當代建築應該推展的方向,尤其住宅類。
上述這三種結構分類,只是界定在地上樓層的「主要結構」,其實它們彼此是交互運用的,如能將優點用在適合的位置即能達到「結構合理化」和「建築輕量化」與建築「耐久性」,例如以地下三層,地上15層SS鋼結構為例:由於地下結構體和地盤連結,在地震時震動週期一致,所以下部結構需要的是結構強度而不是結構韌性(韌性設計),而「鋼筋比」偏向混凝土抗壓比重,因此,低樓層或地下室之基礎性結構、包含連續壁,皆能設計相當厚度與強度的混凝土保護層。在工程實務上,台北、高雄通常為開挖深度1/20為連續壁厚度,例如連繫壁深度20公尺,厚度則達1公尺後,混凝土抗壓(註3)強度約5000psi左右。當完成下部結構時在和建築物上部結構搭接兩個梁位,使鋼柱與RC材料應力能夠完全轉換,通常於地上一樓為結構轉化層,此部分為SRC,地上二層開始則改為SS系統。
任何工法和材料都有它先天上的優缺點,只要透過好的設計和組合,發揮材料天生優點,避開材料先天缺陷,加以整合學術文獻、各類技師及專業廠商的數據與實作,只要掌握科學理論和實務性的落實,以良好的施工品質即能達到永續綠能、經濟性、耐久性之百年結構。
鋼筋混凝土先天基因缺陷-中性化(註4)
由於台灣地震頻繁,當RC施工中灌漿正巧遇上地震時,混凝土和鋼筋握裹力將大大折損,嚴重影響結構強度。也因氣候關係,導致鋼筋混凝土結構物多暴露於高溫、潮濕的環境。而長時間暴露於高濕高溫環境的混凝土,其內部會產生高水分,使內部水化生成物被溶解,導致混凝土的總孔隙率或連通性增加,當混凝土長時間接觸空氣中二氧化碳,造成混凝土中性化(或稱碳化),也增加鋼筋腐蝕之機率,進而發生因腐蝕產生膨脹,使混凝土開裂、剝落(膨共),外觀開始產生白華進而掉磚,因為混凝土結構承載力降低,也喪失結構耐震性,直接危害居住使用與安全性。
推動鋼結構住宅-讓綠建築事半功倍
鋼構造的時代已經來臨,以目前地球資源、環保問題,加上鋼構具有強度高、自重輕、材料均質等力學特性的優勢,二十世紀末期由於鋼材鍛造技術及銲接技術的成熟,加上鋼構使用在建築工程興建施工時,但能縮短施工工期,且能因應將來建築物因時代更迭造成的循環重建,或者提高建築壽命、更安全、更經濟。
再者,由於鋼材在生產及製作過程中所產生的污染少,又具有資源回收再生使用的好處,鋼構具有上述許多優勢,更應該是台灣及全世界的建築結構材料。(目前鋼材規範為SN鋼材,主要是用在房屋結構,尤其在台灣的氣候與地質條件)(註5)。
鋼材之材料特性影響建築生命週期,也造就了現代鋼構產業的趨勢,依據OECD (Organisation for Economic Co-Operation and Development) 的統計,營建產業是全世界最大的產業之一,佔全球GDP13.4%,約7.5兆美元(WSA 2013)。同時,營建產業耗用鋼量為全世界鋼鐵產量之50%以上。
鋼結構產業既是鋼鐵工業中最重要的關鍵性產業,也是營建產業中極為重要之一環,具有承上啟下帶動其他相關產業發展的關鍵特性,是一種勞力、技術、資金密集的產業,對台灣鋼鐵產業以及營建產業的重要性不言可喻。首先,台灣地區營建用鋼結構僅占全台灣鋼鐵於2013年總產量約3400萬公噸的5.0% ~ 7.5%左右,與歐美日等先進國家30%~40% (2010)左右(北歐國家甚至高達85%以上)的比例仍存在相當之差距。自921地震之後,考慮住宅制震功能性需求以及安全等因素,住宅以及非住宅建築使用鋼結構的比例已經明顯提高。而全球對於減碳及永續的要求越來越高,鋼鐵的使用不僅在減碳成效上較使用混凝土明顯有效,同時,鋼鐵的循環使用率超過90%,更是環境永續建材的最佳選擇。(文獻4)
建構完善的建築生命週期,延長建築物的壽命,從建築物誕生-興建-使用-維護-拆除...都有健全而完善的機制,如能全面推動台灣鋼構住宅,無論是都市景觀或是人民生命、財產安全乃至營建產業缺工、缺料問題。由於鋼構造的梁柱結構與構件單元可經由電腦精算,能在工廠生產及加工,有利於營建自動化發展,進而達到綠建築、地球環保之國際趨勢。
民眾對於鋼構建築的認知
一般台灣民眾對鋼構建築的認知,就是超高層商用建築 (SS),或1、2樓鐵皮屋,或將鋼骨鋼筋混凝土 (SRC) 歸類為鋼構建築,然而一般 SS 鋼構建築物外牆通常使用帷幕牆系統,例如台北101大樓、高雄85大樓…等,然而,帷幕外牆有漏水連貫性問題、矽利康劣化、鋁板老舊無法上塗裝… 等問題導致無法使用在住宅類建築。
傳統帷幕牆限制了鋼構住宅的發展
鋼構造外牆一般採帷幕牆系統(如圖1),組合方式是將外牆吊掛在構件上,再固定於鋼樑,位於樓板上下之間的縫隙以隔板包覆加防火填塞作為防火區劃,由於帷幕牆自重輕,模組化單元,施工組裝快。因為單元化的構件,使得每處的接合點可調整梁柱結構和帷幕構件的施工誤差,也容易吸收層間變位,但先天的缺點式樓層接合氣密性不佳,容易造成樓層之間使用上的相互影響。
另外,商用類建築管道間、電梯、廁所、茶水間、廚房區都是集中設置,通常稱為「服務核」(Service Core)。而住宅建築有較多的「水區」需求,如廁所、浴室、陽台、廚房等,此類空間都是分散設置,而且坪數較大的住宅有可能採彈性格局,或者如國際上所稱-開放建築(Open building),因此,該樓層之樓板與外牆如果接合不佳,便容易造成樓層之間的相互影響,另一方面,住宅空間需要更高的舒適要求,如隔音、隔震、等性能,這也是商用建築與住宅建築最大的差別。
鋼結構韌性強,但缺點是變位量大,影響住宅居住舒適度,這方面其實可利用斜撐或制震壁減少建築搖擺週期,達到舒適要求。

本發明專利的內容
本發明專利利用各層樓板作為外牆的固定基礎,使得外牆為獨立系統(如圖2),樓層分段分層有利處理防火、防水、防火、隔間..等性能要求。因此本發明專利提供了解決外殼各部位結合與施工方案,包含DECK鋼承板與外牆、外牆與陽台結合,以及外部施工鷹架的安裝、固定、與拆除步驟。
另外,由於都市新舊建築交疊,基地新建建築緊貼鄰房導致外牆無法搭建鷹架施工。
如能夠善加運用本發明專利,即能將鋼構造大量運用於住宅,徹底解決帷幕牆在建築外殼構造各部位結合上的缺點,亦能克服施工環境不佳的問題。
本發明專利的目的
當數據告訴我們地球節能減碳的第一要務即為推動綠建築,而綠建築首重住宅類型,也唯有鋼結構才能讓住宅建築產生最大效益。本發明專利目的是為了提供鋼結構運用在住宅,使建築外殼各部構造的結合創造出單純化、經濟化、耐久化、系統化,釐清施工介面,並建立施工步驟。
當結構達到輕量化之後,另一個重要的指標為「日常節能」,兩大主軸-照明與空調,這也是鋼構造運用於住宅所必須克服的問題。
(外殼=外牆、開口、窗、陽台、遮陽板..選擇方位、顏色、材料特性…而台灣的環境和氣候條件…白色外牆塗料最適合亞熱帶氣候)。
提高建築外殼性能、耐震
由於台灣多數住宅為鋼筋混凝土構造,而鋼構造在房屋市場除了耐震與具備環保優勢之外,其他有關居住的安全性能、舒適性、日常維護性⋯ 應該採取科學實測數據來做比較,才能改變傳統習慣,逐漸影響住宅市場,進而改變業界建築工法,提高建築安全性能。
何況,延長建築壽命不僅保障人民生命安全,也是增建民眾財產價值。而未來鋼結構拆除也不造成日益加重之「營建廢棄物稅」,現今地球環保意識抬頭,「碳足跡」將是RC老屋拆除的高昂的負擔(可以說是土地的負債),如此台灣住宅發展才能迎合21世紀之國際主流。
以下為鋼結構住宅各部構造的性能數據:
耐震:壽命長、韌性強,延展性佳,建築用鋼材在台灣分成兩大體系,一個是美國標準,如ASTM,A36、A572、A992⋯⋯等,另一個是台灣的標準CNS,分為一般結構用鋼材(SS系列)、銲接結構用鋼(SM系列) 以及建築結構用鋼(SN系列),其中SN鋼材就是建築結構用鋼之標準(註5),最能符合耐震設計性能需求。SN鋼材對化學成分的控制相對嚴謹,其碳、磷及硫等元素含量都比其他鋼種低很多。
鋼構韌性設計:國立台灣科技大學陳生金教授在執行「行政院國家科學委員會」時研究計畫之研究成果,以「梁翼梯形高韌性梁柱接頭」之發明,同時獲得台灣、美國、日本及歐盟等國際性專利。後續也有相關研究開始展開,至今仍為鋼結構韌性剛構架梁柱接頭之主流。
防火:
當鋼材遭遇火災時,鋼材表面溫度達300~400℃後,強度和彈性模量會明顯降低,當達500~600℃時,強度接近零,且恐導致整個建築物倒塌,因此,鋼構需要採取保護措施。一般業界在鋼構上會採取防火被覆保護,或施作防火毯、防火板、混凝土、膨脹性防火塗料或噴覆式防火材料,以提高鋼材之防火時效。
防鏽:
主要結構鋼梁鋼柱從工廠預製時,運至工地吊裝,不對鋼材做表面防鏽處裡,主要目的是讓防火被覆材料完全附著於鋼材表面,使之產生更加黏著力,包覆鋼材時更加緊密阻隔水分與空氣層達到對鋼材的防鏽功能。
防水:
利用本發明專利可將外牆與樓板結合,RC止水敦與RC樓板結合,截斷水的路徑,位於多水區:陽台、浴室、廚房,採RC地板表面貼磚,外牆面掛混凝土板乾式施工,板材接合貼抗裂層,外加防水層,表面採天然塗料。
另外,當RC牆發生漏水現象時會產生毛細管原理,使得維修上難以阻絕,(俗稱抓漏)因而產生壁癌,使外牆掉磚,失去保護加速混凝土中性化,進而加速鋼筋腐蝕,破壞結構,惡性循環。而鋼構外牆為乾式施工,內部有空氣阻斷水的路進,更容易維修(容易抓漏)
隔音:
外牆與隔戶牆之隔音性能:
隔音是指對聲音於物質間傳遞以隔音建材來阻隔,可防止外來噪音進入室內或室內聲音往外傳遞
我國對於高性能防音綠建材也有相當嚴謹的規範存在,有一套評定標準來審查其建材是否符合防音標準,主要先依照評定項目分為隔音材:(一)外牆、屋頂板、分戶牆、分間牆(二)門、窗(三)樓板表面材。吸音材則檢測建物內部如天花板面、牆面、地板面,其所用的材料或構造組件,評定項目為吸音材,例如穿孔石膏板、穿孔木板、玻璃棉、岩棉、穿孔鋁板、噴附木纖維、噴 附岩棉、噴附玻璃棉、礦纖板、微孔板及空間吸音體如垂吊吸音筒、吸音垂板、吸音簾等。 而評定方式須要由內政部認可之綠建材相關機構,或建材測試報告的提供,同樣依照防音的三項能力劃分(取自內政部建築研究所)
本發明專利乾式外牆及隔戶牆作法:
1.無機混凝土板1.2公分厚兩側(板厚提高至1.5cm效果極佳),(空氣層+岩棉,性能超越15RC Wall),內部60K岩棉5公分厚雙層..隔音性能51dB(RC15公分-48-50Db,1b磚牆-35dB)
2.內部填塞岩棉也具備空氣層,可阻斷外牆板結構,聲音產生的振動傳導(類似熱傳導物理現象)。當外牆得到隔熱、隔音效果時,同時也綠建築之「日常節能指標」重要的外牆構造方式。
隔熱:
一般住宅RC結構會產生白天吸熱、晚上放熱的現象,使室內空氣一直維持高溫悶熱,而鋼構造住宅因為外牆採乾式施工。
內部填塞岩棉也具備空氣層,可阻斷結構體吸熱所產生的熱傳導(類似音傳導物理現象)。當外牆得到隔熱、隔音效果時,同時也綠建築之「日常節能指標」重要的外牆構造方式。
有利推動住宅營建自動化、系統化
鋼結構系統採用高精度,可利用程式控制的機器生產,這表示所有的構構建築都是透過準確的電腦機械製造生產,並在工廠內部進行拼裝後,運至工地現場進行組裝。工地一次性組裝也能克服都市小基地施工困難,施工重機具及車輛進出動線亦能比傳統工法相對容易克服。
乾式工法讓施工更便捷
綠色環保塗料取代傳統貼磚:
台灣大樓外牆掉磚頻傳,為何新建案還是依賴貼磚?(註6)
因為台灣的住宅大樓度部分都是RC構造,而RC外牆皆採濕式工法,也就是泥作打底,因而產生兩種原因:
1.人工打底不平整,導致建商不敢做塗料。
2.因為泥作打底的關係,導致鷹架汙染嚴重,如果採塗料,可能會造成完工後拆架時的汙染或破壞。
鋼構造外牆則採密集C型鋼固定,外牆安裝混凝土板,因為為乾式施工的關係,平整度足夠,也無泥作汙染問題,所以表面即能以天然塗料為主,貼磚的部分也只有在陽台處貼磚,使用的外牆磚吸水率必須低於0.2%,其餘皆採天然石製成的外牆塗料,並在水平處設置滴水線,讓建築外關永保如新,維修保養容易,混凝土板本身材料為無機,質地堅固,是採集自天然之石材如天然大理石、石英石…等,因此,當外牆塗料因日積月累而附著在表面的灰塵與泥砂,經過表面洗滌後即可滾刷一次後,新材料與舊材料完全可以密合。
本發明專利不建議外牆表面外掛石材或金屬鋁板,主要原因在於石材自重大,不利結構輕量化,石材為開採之礦山在許多國家是禁止開採的,如土石流、水保、生態等環境保護問題,被歸類為不環保材料。另外一個新穎的材料金屬板-鋁板,其表面烤漆含有大量有機揮發物(VOC),對環境污染極嚴重,浪費能源,雖然氟碳烤漆有許等級但畢竟還是有一定的使用年限,因為鋁板表面無法重新烤漆。
另外這兩者材料接合如果採空縫,則無法保護內部鋼材(如果是RC結構則無法保護混凝土)如果採填縫,矽利康壽命15年,日後劣化不易更新(接縫點過大)。
所以無論是石材或鋁板,或是貼磚(有掉磚問題)皆不易維修或更新,除了工程浩大,施工昂貴,且不符合鋼構環保訴求!
施工快速、安全、環保:
由於本發明專利創造了鋼構外牆結合的工法,施工程序簡單、安全、快速。除了免除傳統RC工班彼此的干擾,(因為模板和鋼筋板紮有前後順序與搭配)和天候影響之外:
1.鋼構施工快速優於傳統RC主要原因在於,鋼結構梁柱單元在工廠預製完成後,立即運至工地組裝,梁柱結構及鋼承板安裝組立完成後,即可配筋並澆置混凝土完成樓地板。
2.可搭鷹架施工.傳統鋼構建築外牆為帷幕牆系統或預鑄PC板,外部施工時採塔吊式以及搭配爬升式安裝外牆,因此外部無法搭傳統鷹架施工,本發明專利施工步驟提供了安裝外牆結合工法與並且能與鷹架安裝至拆除,工序與安全皆能夠執行。
步驟:樓板完成後可立即搭建外部施工鷹架,即可施作防火被覆,及後續組裝乾式外牆及門窗,外牆塗料…等工序。
3.有利防火被覆效能(註7)
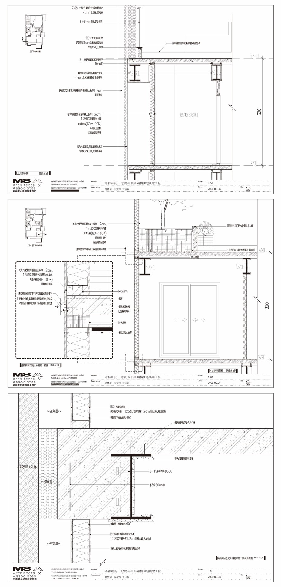
本發明專利125C密集型鋼桿式外牆能夠快速組裝完成封閉的空間,鋼材在不受潮濕的環境之下才能不做防鏽處理,讓防火被覆完全包覆鋼材,達到最佳防火與防鏽效果(美國原廠標準做法),如採傳統帷幕牆或預鑄外牆施工,通常鋼柱及鋼梁會上一層防鏽,因為施工順序的原因,使鋼材長時間暴露外氣中,鐵件表面容易生鏽,使防火被覆無法附著在鋼材上,所以必須多增加一到菱格網使之附著於表面。
同防鏽性能:主要結構鋼梁鋼柱從工廠預製時,運至工地吊裝,不對鋼材做表面防鏽處裡,主要目的是讓防火被覆材料完全附著於鋼材表面,使之產生更加黏著力,包覆鋼材時更加緊密阻隔水分與空氣層達到對鋼材的防鏽功能。(註8)
具體實施方式
外殼各部構造詳圖
(外牆除A-3圖之外全數乾式施工)
(A圖)-H鋼梁在室內側:
因建築基地之新建建築物外牆與鄰房外牆的施工距離條件產生了三種方案,以各剖面圖:
(A-1圖)-新建建築外牆與鄰房距離大於100cm-外牆乾式施工(有外部鷹架)
(A-2圖)-新建建築外牆與鄰房距離大於50cm,小於100cm-外牆乾式施工,(免外部鷹架)
(A-3圖)-新建建築外牆與鄰房距離小於50cm-外牆濕式施工,免外部鷹架
(B圖)-H鋼梁在戶外側:
(C圖)-H鋼梁在戶外側與陽台降版結合:
(D圖-BOX鋼柱與外牆結合:
(D-1圖)隔音區劃排除鋼柱/平剖詳圖(橫剖)
(D-2圖)包覆鋼柱/平剖詳圖(橫剖)
(D-3圖)隔音區劃排除鋼柱(柱在轉角處)/平剖詳圖(橫剖)
各部位名稱
a主結構鋼材
(a1)BOX鋼柱,(a2)H鋼梁,(a3)DECK鋼承樓板,(a4)DECK擋泥板
b鋼筋混凝土及混凝土(板)
(b1)DECK上方鋼筋(或點焊鋼絲網),(b2)各部配置鋼筋,(b3)混凝土,
(b4)外牆RC止水墩,(b5)混凝土外牆板,(b6)混凝土板戶外包覆鋼梁用,
(b7)矽酸鈣板室內包覆鋼梁用
c輕型鋼及各類金屬構件
(c1)125型C型鋼,(c2)Z型鐵件,(c3)特製鋁擠型條(橫料),
(c4)特製鋁擠型條(縱料),(c5)鋁企口天花,(c6)鍍鋅方管,
(c7)鋁窗固定構件,(c8)鋁窗框、門框,(c9)滴水線,
(c10)鋁格柵或沖孔鋁板,(c11)欄杆鐵件
d外飾面板及表面材
(d1)天然塗料,(d2)外牆丁掛磚,(d3)鋁板或沖孔鋁板,(d4)格柵,(d5)石材
e黏著劑、填塞材及防水層、防火層、防鏽層
(e1)乾式外牆填入岩棉60kg/m3,(e2)益膠泥,(e3)抗裂網,(e4)防水層,
(e5)外牆塗料,(e6)防火被覆,(e7)矽利康,(e8)防火填塞,(e9)門窗砍縫
f假設工程
(f1)牙條埋入件,(f2)牙條,(f3)螺帽,(f4)施工鷹架,(f5)鄰房板材固定端
(A-2圖)-H鋼梁在室內側:新建建築外牆與鄰房距離大於50cm,小於100cm-外牆乾式施工,(免外部鷹架)基礎結構完成後,放樣、吊裝⋯。
(A-3圖)-H鋼梁在室內側:新建建築外牆與鄰房距離小於50cm-外牆濕式施工,(免外部鷹架)基礎結構完成後,放樣、吊裝⋯。
(B圖)-H鋼梁在戶外側:新建建築外露梁與鄰房距離大於100cm
(有外部鷹架),基礎結構完成後,放樣、吊裝⋯。
(C圖)-H鋼梁在戶外側與陽台降版結合:新建建築外露梁與鄰房距離大於100cm
(有外部鷹架),基礎結構完成後,放樣、吊裝⋯。
高雄未來展望
最大港口城市 = 經濟首都
經濟首都 VS 政治首都
紐約 VS 華盛頓
上海 VS 北京
雪梨 VS 坎培拉
漢堡 VS 柏林
新加坡 VS 新加坡
阿姆斯特丹 VS 阿姆斯特丹
東京 VS 東京
高雄 VS 台北

港口,帶動城市的發展
港口,是國家競爭力的象徵之一,也一直是高雄的發展命脈,在上個世紀的歷程,它為工業服務、繁忙的吞吐量,是世界前三大港口,並擁有是世界最佳的地理位置…。
在未來,高雄港將肩負起商業活動、流行事業,以及日漸蓬勃的國際觀光。延續既有的雙港優勢加上自由貿易港區腹地,它將貢獻下個世代城市發展的能量。


前40年/重工業/台灣經濟奇蹟
高雄的文化,絕對不只是工業文化;世界上港口城市,皆能結合各方面強勢的商業優勢,像是新加坡、上海、紐約等…也是該國家的經濟首都!
如果能加以朔造港口優勢,便會使台灣這個最大「港口城市」更強大!
而不只是最大「工業城市」!

後40年/科技業/世界經濟奇蹟
如果說高雄的商業核心是「港口」;那麼高雄的文化之心就是「港口文化」
高雄即將轉為科技城市,歷經30年的「重工業城市宿命」,即將轉型為「高科技工業城市」,或許這就是偉大港口城市產業轉型必經之路…


城市建設的能量圍繞著都心!(同心圓理論)
市中心是城市發展的核心;新興、苓雅、前金區屬其範圍,位處於市中心,並擁有國際都市道路格局、捷運軸心、國際商圈、中央公園等公共建設…在都市規劃中屬於高強度容積,即為「商五、商四」最集中的區域。
然而,早期市中心土地便宜,南部人較習慣住透天,形成沿街式店面佔據大部分高容積土地,因此「高容積透天化」的現象導致市中心可開發土地短缺,迫使這二十年間開發商大量往北高雄發展,人口也快速往北移動,加上住宅區容積獎勵政策,導致「低容積高樓化」,造成高雄都市發展上一個畸形的現象,即「高容積低度使用、低容積高度使用」情形。
近期,南高雄重大建設一一動工、完成,例如高雄車站、鐵路地下化、輕軌環狀線、捷運延伸等交通建設,南高雄擴大都心區至亞洲新灣區是必然的發展走勢。
文知丘 / 明森丰川 / 沐河 / 沐光 / 沐海
許多人問,為什麼明森喜歡白色?
我們認為「建築」是人造物,有一個價值觀是創作者一開始就必須學習的核心思維…
即是「師法自然」!
我們必須向大自然學習、敬畏、順應自然法則!
一切的物理條件、氣候、乃至人造的都市、被破壞的環境..
我們要抓住有利因素,創造土地價值..
我們必須排除土地劣勢,規避環境的不利因素…
為什麼植物是綠色的?為什麼是藍天、白雲?為什麼太陽這麼熾熱?許多為什麼,因為這一切都是自然元素 ….
降低對環境的衝擊,做能當植物的背景 -白色,最沒封閉感-白色,當太陽照射在建築外觀時,應該讓立面產生陰影,白色較能反應立體感,而亞熱帶炎熱的天氣,最不吸熱,因此最能降低熱量,因為外觀顏色太深會過度吸熱而變成耗能建築 …
建築究竟還是人造「藝術品」,所以有一個重要的觀念 …不要太多無謂的裝飾,並且儘量採「型隨機能而生」理念 !
基本資料
基地座落 / 台灣/高雄市/前金區/成功一路vs民生二路
基地面積 / 395m² (119.5坪)
總樓地板面積 / 3995.18m² (1208.5坪)
公設比 / 33.95%
建築規模 / 地上13層,地下3層,樓高3.6m,三拼,共35戶。規劃33個倉儲車位、1個無障礙平面車位、32個機車車位。各戶權狀坪約: A戶43.57坪, B戶36.23坪,D戶23.09坪,S戶37.29坪。 (註:有關銷售面積、外觀、平面配置..等,僅供參考,實際以銷售合約為主。)
設計時間 / 2022年8月
完工時間 / 預計2026年第四季完工
建築構造 / SS(Steel Structure)純鋼構,鋼柱SN490C(B)鋼材、抗震、環保、綠能、耐久
區位條件
文教 / 高雄女中、前金國中、前金國小、大同國小
景觀、設施 / 前金國小校園、民生綠園道、愛河、壽山、中央公園、立德棒球場
機構、醫療 / 市立大同醫院、高雄地方法院、中央健保局
商圈 / 大立百貨、漢神百貨(本館)、大統、新崛江商圈
交通 / 捷運-O4前金(市議會)站(450m)、捷運-R9中央公園站(800m)
基本資料
基地座落 / 台灣/高雄市/三民區/建國三路vs自強一路
基地面積 / 493m² (149.1坪)
總樓地板面積 / 7556m² (2285.71坪)
公設比 / 33.44%
建築規模 / 地上15層,地下3層,樓高3.2m,六拼,共78戶住宅、1戶店鋪。共規劃33個車位,含13個平面車位(附車充)、20個機械車位、31個機車車位。各戶權狀坪約:A1戶24.31坪,A2戶25.91坪,A3戶32.55坪,B1戶25.78坪,B2戶17.74坪,B3戶26.19坪,S戶(店鋪)147.04坪。(註:有關銷售面積、外觀、平面配置..等,僅供參考,實際以銷售合約為主。)
設計時間 / 2022
完工時間 / 預計2026年第四季完工
建築構造 / SS(Steel Structure)純鋼構,鋼柱SN490C(B)鋼材、抗震、環保、綠能、耐久
區位條件
文教 / 高雄中學、前金國中、三民國小、河濱國小、建國補習街
景觀 / 三民國小校園、鐵路園道、中都濕地公園、幸福川、愛河、壽山
商圈 / 三民市場、三鳳中街、高雄車站商圈、建國電子商場
交通 / 台鐵-三塊厝站(550m)、捷運-O4前金(舊市議會)站(850m)
基本資料
基地座落 / 台灣/高雄市/苓雅區/河北路151號
基地面積 / 335㎡(101.34坪)
總樓地板面積 / 2164.77 ㎡(654.84坪)
公設比 / 34.78%
建築規模 / 地上10層,地下1層,樓高3.2m,三拼,共25戶,規劃24個倉儲車位。各戶權狀坪約: A1戶27.51坪、A2戶24.91坪、 B1戶25.05坪、B戶22.92坪 (註:有關銷售面積、外觀、平面配置..等,僅供參考,實際以銷售合約為主。)
設計時間 / 2022
完工時間 / 預計2025第四季完工
建築構造 / SS(Steel Structure)純鋼構,鋼柱SN490C(B)鋼材、抗震、環保、綠能、耐久
區位條件
文教 / 高雄師範大學、師大附中、英明國中、福東國小、五權國小
景觀 / 文化中心、凱旋公園
機構、醫療 / 高雄市衛生局、民生醫院、凱旋醫院、市立中醫醫院
商圈 / 中華市場、武廟商圈、光華夜市
交通 / 捷運-O8五塊厝站(350m)、輕軌-C32凱旋公園站(400m)、輕軌-C3衛生局站(450m)、中正交流道(1600m)
基本資料
基地座落 / 台灣 / 高雄市 / 苓雅區 / 光華一路100巷
基地面積 / 182㎡
總樓地板面積 / 999.51 ㎡
公設比 / 38.56%
建築規模 / 地上7層,地下1層,樓高3.2m,雙拼,共13戶。規劃10個機車車位。各戶權狀坪約: A戶26.99坪,S戶36.10坪,B戶(1F)20.90坪, B戶(2-7F)23.59坪。(註:有關銷售面積、外觀、平面配置..等,僅供參考,實際以銷售合約為主。)
設計時間 / 2022
完工時間 / 預計2024第四季
建築構造 / SS(Steel Structure)純鋼構,鋼柱SN490C(B)鋼材、抗震、環保、綠能、耐久
區位條件
文教 / 高雄師範大學、高雄高商、復華高中、五福國中、四維國小、光華國小
藝文、機構 / 文化中心、四維行政中心
商圈 / 光華觀光夜市、三多商圈、新崛江商圈
醫療 / 民生醫院、凱旋醫院、市立中醫醫院
交通 /捷運-Y12四維行政中心站(800m)、輕軌-C34五權國小站(900m)、捷運-O7文化中心站(1300m)
基本資料
基地座落 / 台灣/高雄/苓雅區/苓中路21巷
基地面積 / 280m² (84.7坪)
總樓地板面積 / 839.12m² (253.84坪)
公設比 / 37.55%
建築規模 / 地上9層,地下1層,樓高3.2m,雙併,共16戶。規劃5個機械車位,16個機車車位。各戶權狀坪約 :A戶(2-8F)-32.10坪、A戶(9F)-32.28坪、B戶-22.88坪。(註:有關銷售面積、外觀、平面配置..等,僅供參考,實際以銷售合約為主。)
設計時間 / 2022
完工時間 / 預計2024第四季完工
建築構造 / SS(Steel Structure)純鋼構,鋼柱SN490C(B)鋼材、抗震、環保、綠能、耐久
區位條件
文教 / 高雄女中、苓雅國中、成功國小、苓洲國小
景觀 / 高雄流行音樂中心、駁二藝術特區、星光水岸公園、海洋天堂公園
機構 / 港埠旅運中心、高雄展覽館、高雄市立圖書總館
商圈 / 三多商圈、漢神百貨、苓雅市場、自強夜市
醫療 / 阮綜合醫院、高雄基督教醫院
交通 / 輕軌-C9旅運中心站(350m)、捷運-Y15旅運中心站(450m)
白色是積極作為的顏色
白-就是外觀最佳的選擇,因為它是任何顏色的背景,接受各種光影的變化,所以是多彩繽紛的,是積極作為的顏色,也是最為純粹的建築表情 ...
我們必須接受和承認時間的流逝,但建築物必然讓人留下記憶 ....
明森建築會繼續朝這個方向前行,讓純粹的建築站慢慢地在都市的道路上多一點;
在這充滿著新舊交疊、五顏六色、雜亂無章、騎樓外推、老朽違章、廣告招牌…的台灣建築語彙裡,
還能夠安排一種質樸或是種一棵大樹,
無論是在都市繁華的大道上,或在新舊交織的狹小巷弄裡 !
備註說明:
(註1)台灣風土建築:
風土建築分兩個層面:
- 文化層面(人文、地文、水文):例如在地文化、民俗風情或地質與物種等等,因環境造成的建材選樣,影響建築特質、特色或形式。
- 氣候層面(物理量、地球科學):因台灣位處地震帶,且高溫、高濕多雨的亞熱帶氣候之海島型氣候。建築設計如果能夠呼應台灣環境物理條件,例如:多設計遮陽板、隔熱材、節能材、抗震結構系統、耐候材料或環保材料…等。
因此,當建築師在造型上或結構及材料運用,皆能滿足或呼應上述這兩大訴求,即可視為「風土建築」!
另外筆者認為,為何台灣房地產的住宅違反「風土建築」?原因就是建商無謂的「豪宅」訴求,大量石材雕塑、模仿歐洲古堡、巴洛克造型或大面積耗能的玻璃帷幕外牆…等。
(註2)台灣高層建築定義:
依台灣技術規則,建築高度50公尺或15層以上建築物為高層建築,而「超高層建築」其實並未有明確的規範,業界的共識是超過100公尺高的建築就屬於超高層建築,而建築高度120公尺以上,在申請建築執照時則需作環境影響評估,在結構方面,120公尺高度通常也是RC結構的極限值,普遍在120-150公尺則會考慮SRC結構,150公尺則以SS結構。
(註3)混凝土抗壓強度
一般而言,建築物每層混凝土用量是隨樓層而調整,由於低樓層必須具備較大的壓力及地震力,結構設計以最適強度與鋼筋配比達到平衡,韌性設計的結構才符合規範。
所以並不是混凝土強度愈強愈好,而是依據建築結構設計而定。
「混凝土設計強度」,單位是kg/cm2 (每平方公分可以承載多少公斤的重壓)。常見的混凝土設計強度為140~350kg/cm2 (公制單位),若換算成英制單位,則約是2000~5000 psi ,一般常見的透天厝用的混凝土設計強度大都是210 kg/cm2 (約3000 psi)。大樓七樓以上4000psi(280/cm2),以下和地下室連續壁5000psi(350kg/cm2)。
(註4)二氧化碳(CO2)在混凝土中的關係
混凝土發生中性化時,是由最外層漸漸向內侵入,當中性化層到達鋼筋時,腐蝕便開始進行。所以,中性化之進行速度決定了鋼筋腐蝕發生之時間。中性化之進行速度與甚多因素有關,但追根究底,則和二氧化碳(CO2)在混凝土中反應及擴散之速度有關。任何促進CO2擴散及反應之因素,會促使中性化之速度加快。中性化之速率和時間之關係式可以下式簡單示之:D=K開根號t/式中 D =中性化深度 K =中性化係數 t =時間由上式可以看出,當保護層愈厚,鋼筋表面混凝土中性化之速率便愈慢。而且每當保護層增加一倍,中性化速率便延緩四倍。K值則和二氧化碳滲透速度、混凝土中氫氧化鈣有關。綜合而言,影響混凝土中性化之因素約有下述數項:(1)外在環境;(2)水泥之成份;(3)混凝土中之水泥含量;(4)混凝土之滲透率;(5)混凝土之細密度;(6)混凝土中之裂縫;和(7)保護層厚度。(文獻5)
(註5)鋼材耐震性能
SN鋼材目前主要是用在房屋結構、廠房、車站等其他建築物,大樓及大型建築物已經使用普遍,使用等級為SN490B或C等級,如興建中的雲林高鐵,採用SN490B、C系列鋼材。但低矮層使用之SN400系列鋼材,國內雖有鋼鐵廠生產,但只有少數消費者知曉,以前都是以 SS400、SM400或ASTM A36興建,在日本低矮層建築使用鋼結構比例不低,但在阪神地震中,前述鋼材已被證實不具耐震能力,且之後設計之低矮層建築物都已SN鋼材,目前國內生產鏈已供應,將來設計者應優先採用SN等級之鋼材。
耐震建築結構鋼材規範國家標準
台灣內政部營建署自1997年起即參考日本SN鋼材標準,建立我國耐震建築結構鋼材規範國家標準(標準編號CNS 13812 G3262)。並自2003年起逐漸研修,擬對建築物之重要鋼骨結構,逐步引導使用SN等級的鋼材。在2014年,CNS 13812增添了降伏強度250 N/mm2等級的SN400YB、SN 400YC及降伏強度325 N/mm2等級的SN490YB、SN 490YC鋼材選項,作為耐震鋼材的標準。
台灣位於環太平洋地震帶,全球八0%的淺層地震都發生在這裡。九二一地震與阪神地震同屬淺層地震,都曾造成大規模的破壞性傷亡。因此,日本於阪神地震後,針對建築鋼材的耐震度與安全性制定更高標準,就是現今唯一符合耐震建築標準的「SN規格鋼材」。
SN鋼材全面提升鋼鐵「強度」、「韌性」、「銲接性」
H型鋼鋼材有分A36、A572G50、SS400、SM400A、SM490A、SN400YB、SN490B
(文獻6)
(註6)為何台灣大樓外牆磚常常掉磚?
台灣住宅大樓外牆磚掉落事件頻傳, RC結構外牆磚掉落的原因很多,除了本文上述提到的混凝土中性化問題之外,還有貼磚黏著性問題與磚本身材質的問題,而材質問題關鍵在於材料的「吸水率」。當在做貼磚作業時,打底粉刷層過分乾燥或丁掛磚本身的吸水性過大,導致磚膠泥的水份被吸收而失去接著強度:膠泥硬化所需的水份,如被底床或磁磚所吸收,則硬化不能完全,這是因為膠泥的硬化作用是水和反應,因此缺乏水份則效果盡失,造成外牆磚的脫落。
丁掛磚貼著用的膠泥因保水性差、乾燥快速,在磚貼附前即已硬化,缺乏接著強度:一般使用海菜粉調拌膠泥,此海菜粉就是保水劑,用來增長膠泥的塗裝時間 (Working Time) ,增加作業效率。但如果使用保水性差的海菜粉,會使膠泥在附著前就硬化。
加上台灣地震頻繁,相對溼度高,常有颱風,多雨,此時建商興建房屋時,如果選擇丁掛磚只重視表面質感,而不重視「吸水率」的數據,,將導致掉磚危險,當建築外牆失去表面層的保護也加速混凝土的劣化即「中性化」,進而造成掉磚現象。
補充說明:(低吸水率和燒窯時間成反比,即吸水率越低,燒窯時間越長。而燒窯時間和價格呈正比,即時間越長價格越貴。)
(註7)建築構造防火時效說明:
第三節 防火構造
技術規則第三章-建築物之防火/第六十九條表列建築物應為防火構造。建築物依使用類組,結構部位及總樓地板面積、建築樓高分別規定防火時效。
無論是RC、SRC、SS三種都是必須符合法規規範,防火性能是相對條件,依據建築技術規則的規定,防火時效由上至下逐漸增加。頂部四個樓層之時效為1小時;接下來的十個樓層為2小時;其餘均為3小時。
RC和SRC本身的鋼材以混凝土做為達到防火時效的材料,而SS係以防火被覆或防火漆作為保護,本發明專利以防火被覆為主要材料(材料防水性與保護性、耐久性佳,若加以利用混凝土板保護,使之不受外力,則能永久覆著於鋼材表面)。
(註8)鋼材的防火和防鏽有直接關連性:
防火被覆材料以台灣知名品牌為主,內含有水泥、蛭石及纖維與特殊之無機防火材料為主,物性優異,施工乾燥後堅固而質輕,耐衝擊、抗壓及抗彎能力更是高人一等,且內含抗裂纖維堅固而強韌,遭重擊而不剝落,即使經三小時火焰燃燒仍具相當物性,不粉化或鬆軟,可耐火場之對流風,並確保其防火力有利其防水性及耐候性。
防火漆和防火被覆比較
1.價格:
防火漆的價格是被覆的3-5倍,通常用在廠房,需要鋼構裸露的需求才會使用防火漆。
2.耐用度:防火漆壽命7-8年,如果無法在這方面得到良好的維護性,防火功能等同失效。而防火被覆如果不受外力破壞,可以永久使用,鋼構壽命多久,防火被覆就是多久。
3.防火被覆如果使用在住宅,無論要不要包覆,表面都要有一層透明保護漆,如果要裸露梁,可以再上一層壓克力漆。
參考文獻
(文獻1)林憲德/永續環境/今周刊/日期:2021-12-15
(文獻2):林盈秀/台達電子文教基金會
建築物生命週期評估 揪出高達28%被忽略的「隱含碳」
(文獻3):楊豐溢Feng-yi Yang
既有建築外殼改修構法之探討-以雙層壁為例
Improvement exterior wall original construction methods-A case study of double walls system
(文獻4):黃炎重Yen- Chung Huang
鋼鐵產業電子化採購系統之評估與建立
The Planning and Design of E-Procurement System of Steel Making Industrial
(文獻5):徐耀賜、茍昌煥、吳東昇
混凝土橋梁檢測時常見之結構損傷模式(三)
(文獻6):維基百科&陳正平/技師報No.46建築結構用軋鋼料SN系列鋼材特性






































